8月22日,金华市开发区洋埠镇湖前村、后彰陈村、大坟头村村庄规划公示同时发布。

洋埠镇湖前村

村庄规划公示

打开网易新闻 查看精彩图片
打开网易新闻 查看精彩图片
打开网易新闻 查看精彩图片
打开网易新闻 查看精彩图片

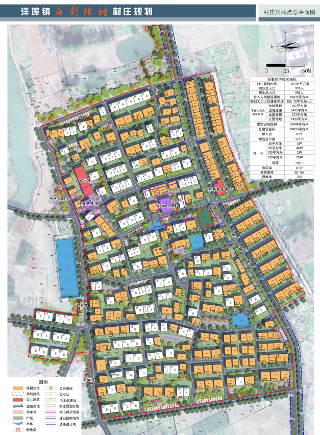
洋埠镇后彰陈村

村庄规划公示

打开网易新闻 查看精彩图片
打开网易新闻 查看精彩图片
打开网易新闻 查看精彩图片
打开网易新闻 查看精彩图片

洋埠镇大坟头

村庄规划公示

打开网易新闻 查看精彩图片
打开网易新闻 查看精彩图片
打开网易新闻 查看精彩图片
打开网易新闻 查看精彩图片

来源:金华开发区官网等综合