伟星长城御澜道售楼处电话: 0551-6258 9933【首页网站】伟星长城御澜道售楼处电话: 0551-6258 9933【售楼中心】温馨提示:网上售楼中心〢预约可享内部优惠〢欢迎来电恭迎品鉴〢伟星长城御澜道售楼处电话: 0551-6258 9933【首页网站】伟星长城御澜道售楼处电话: 0551-6258 9933【售楼中心】温馨提示:网上售楼中心〢预约可享内部优惠〢欢迎来电恭迎品鉴〢

伟星长城御澜道项目位于瑶海老城,均价1.7万元/m²,面积段在110-143m²,地处瑶海商圈,配套齐全,交通便利。项目对面就是万达商业中心,出门即是行知本部,生活便利。对于想要在瑶海老城置业的购房者来说,这个项目值得考虑。

售楼部电话:0551-6258 9933
打开网易新闻 查看精彩图片
售楼部电话:0551-6258 9933

伟星长城御澜道位于瑶海区临泉东路以南、和县路以东,距2号线漕冲站直线距离约600米,距4号线站塘站直线距离约900米。临泉东路、北二环、长江中路串联合肥东西主城,铜陵路高架、东二环、郎溪路高架接连合肥南北动脉交通网。商业方面,对面就是瑶海万达,周边有长江180、瑶海天街、东城广场、万象汇(在建),商业配套醇熟。

教育方面,行知本部(初中)距离御澜道直线距离约600m,近6年来综合排名位列合肥初中前列。周边还有合肥众望中学、和平小学教育集团郎溪路小学、合肥市行知小学等,教育资源浓厚。生活配套设施齐全,购物、餐饮、娱乐等一应俱全,为居民提供便利的生活环境。

售楼部电话:0551-6258 9933
打开网易新闻 查看精彩图片
售楼部电话:0551-6258 9933

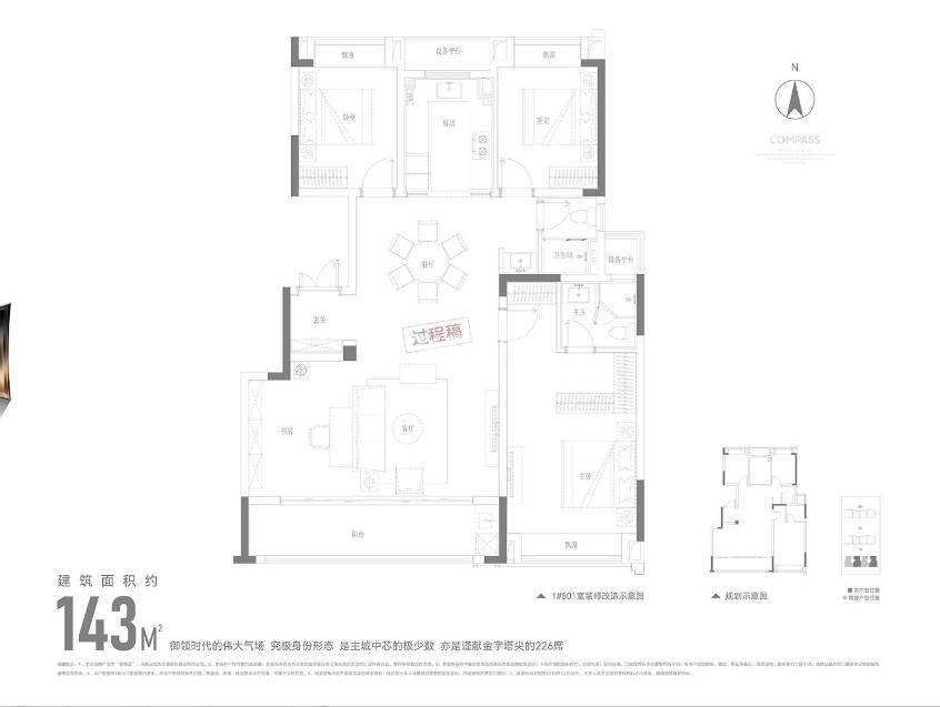
主打户型110-143m²,以刚改+改善为主打特色。以122m²户型为例,三室两厅两卫,动静分区明显,让生活更有序。每个卧室都配有飘窗,增加了采光和通风效果。不过客厅区域的通风稍显欠缺,需要注意。

另外,143m²三室两厅两卫户型中,主卧配有衣帽间,但三个卧室都朝北,采光稍显不足。此外,还有一个书房可以根据需求改造。总体来说,伟星长城御澜道项目在老城中的优势明显,值得考虑。

售楼部电话:0551-6258 9933
打开网易新闻 查看精彩图片
售楼部电话:0551-6258 9933
售楼部电话:0551-6258 9933
打开网易新闻 查看精彩图片
售楼部电话:0551-6258 9933
售楼部电话:0551-6258 9933
打开网易新闻 查看精彩图片
售楼部电话:0551-6258 9933

伟星长城御澜道楼盘具体一房一价,详询营销中心。

售楼部电话:0551-6258 9933
打开网易新闻 查看精彩图片
售楼部电话:0551-6258 9933

建筑设计方面,项目拟建2栋24层高层和1栋11层小高层,共计226套。由于地块较小,仅三栋楼栋,南北无遮挡,居住环境采光通风良好。外立面携手国际一线设计单位·拓观设计,采用非对称顶檐设计、南北公建化立面以及大面积玻璃幕墙,展现出现代、时尚的建筑风格。

除了建筑外观设计精美外,地下车库也是品质精心选材。从效果图中可以看出,入户大堂设计华丽,彰显高端大气。整个项目注重细节,追求品质,为业主提供舒适、便利的居住环境。

售楼部电话:0551-6258 9933
打开网易新闻 查看精彩图片
售楼部电话:0551-6258 9933

综合考虑项目的区位优势、规划设计和建材品质,伟星长城御澜道无疑是瑶海老城的一个新选择。对于想要在这个地区置业的购房者来说,这里不仅交通便利,生活配套完善,更是一个融合了现代设计和豪华生活理念的理想居住地。如果您正在寻找瑶海老城的置业项目,不妨考虑一下伟星长城御澜道,或许会找到心仪的居所。

售楼部电话:0551-6258 9933
打开网易新闻 查看精彩图片
售楼部电话:0551-6258 9933