来源:设计先锋队(ID:toot8448)

这里已获得授权

打开网易新闻 查看精彩图片

Using architecture as a pen, Splyce Design writes a symbiotic poem between the coast and the forest. The reimagined Shoreline House is both a gentle reawakening of a 1960s home and a dialogue between "man-made" and "natural wildness," allowing residents to experience the dual warmth of time and ecology while surrounded by mountains and sea.

以建筑为笔,在海岸与森林间书写共生诗 ——Splyce Design 重塑的 Shoreline House,既是对 1960 年代老宅的温柔唤醒,更是一场 “人工造物” 与 “自然野趣” 的对话,让居者在山海环抱中,触摸到时光与生态的双重温度。

打开网易新闻 查看精彩图片
打开网易新闻 查看精彩图片

Driving through suburban streets, where the neat lines of single-family homes give way to the jagged shoreline, Shoreline House emerges nestled between the rocky reef and the firs and oaks. The colonnaded staircase leading to the main entrance serves as a prologue to the design: the stone steps clatter softly against the rock as you step. Looking up, you'll see the new extension clad in light-colored cedar, a gentle, wood-like structure nestled against the dark cladding of the existing house. The dark color perfectly echoes the granite shoreline, as if the house itself had grown from the reef.

车子驶过城郊街道,当独栋住宅的规整线条渐渐被嶙峋的海岸线取代,Shoreline House 便藏在岩礁与冷杉、橡树的缝隙间。通往正门的柱廊阶梯是设计埋下的 “序章”:脚步踏过石材台阶时,能听见鞋底与岩面的轻响,抬眼可见浅色雪松包覆的新扩建部分,像一块温润的木石,轻轻靠在深色饰面的老宅旁 —— 那深色恰是对花岗岩海岸线的呼应,仿佛老宅本就从礁石中生长而出。

打开网易新闻 查看精彩图片
打开网易新闻 查看精彩图片

Upon entering, the spatial narrative unfolds through a play of light and shadow. In the morning, the sun streams into the living room through frameless floor-to-ceiling windows. The lattices obscure the boundaries, allowing the ocean's shimmer to "spread" directly onto the floor, leaving even the breath wrapped in a salty, moist sea breeze. In the afternoon, the master suite's windows precisely frame a 180-degree bay view, allowing you to watch cloud shadows drift across the surface from bed. The ingenuity of this expanded space goes far beyond this: a recessed concrete foundation avoids excessive excavation, allowing the building to "float" above the terrain. The 13-foot-high roof, suspended above the cantilevered screen wall, preserves the ecological integrity of the marine sanctuary while creating a sense of lightness, "perched on the coast."

推门而入,空间的叙事感随光影流动。清晨,朝阳透过无框落地窗漫进客厅,窗棂隐去了边界,让海面的波光直接 “铺” 在地板上,连呼吸都似裹着咸湿的海风;午后,主卧套间的窗精准框住 180 度海湾景致,躺在床上便能看见云影在海面游走,而这处扩建空间的巧思远不止于此 —— recessed concrete(嵌入式混凝土)地基避开了过度开挖,让建筑像轻踮脚尖般 “浮” 在 terrain(地形)上,13 英尺高的屋顶悬于悬挑屏风墙之上,既保留了海洋保护区的生态完整,又给居者营造出 “栖于海岸之上” 的轻盈感。

打开网易新闻 查看精彩图片
打开网易新闻 查看精彩图片

The outdoor landscape design seamlessly weaves the natural and the man-made. Native vegetation flourishes in the cracks between the terrace's flagstones, and as you walk along the winding path, you can feel pine needles falling on your shoulders. In the evening, as the family gathers on the terrace, the inlet in the distance shimmers in the twilight, and the shadows of nearby oak trees cast upon the dark walls of the old house, the outlines of new and old gradually soften in the setting sun. This "non-intrusive" design philosophy is reflected in every detail: preserving the original structure to reduce its ecological footprint, using contrasting materials to echo the texture of the mountains and the sea, and allowing windows to serve as frames rather than barriers. Splyce Design doesn't attempt to "conquer" the site, but rather to make the house a part of nature, just as the 1960s house was when it first appeared.

室外的景观设计,是自然与人工的无缝编织。露台的石板缝隙里,本土植被肆意生长,踩过蜿蜒的步道时,能触到松针落在肩头;傍晚时分,家人围坐在露台,远处的 inlet(海湾)泛着暮色,近处的橡树影子落在深色老宅墙面,新与旧的轮廓在夕阳里渐渐柔和。这种 “不打扰” 的设计哲学,藏在每一处细节:保留老宅结构以减少生态足迹,用材质对比呼应山海肌理,让窗户成为 “取景框” 而非 “阻隔”——Splyce Design 没有试图 “征服” 场地,而是让房子成为自然的一部分,就像多年前那栋 1960 年代的老宅初现时一样。

打开网易新闻 查看精彩图片
打开网易新闻 查看精彩图片
打开网易新闻 查看精彩图片
打开网易新闻 查看精彩图片
打开网易新闻 查看精彩图片

This respect for local context is also evident in the team's collaborative work: Mdrn Built's construction ensured the precise implementation of the "lightly suspended" structure, Andrew van Egmond's landscape design fostered a symbiotic relationship between vegetation and architecture, and Aspect Structural Engineers employed technology to safeguard the fragile balance of this ecologically sensitive area. When residents wake to the morning light and watch seabirds skitter over the water; when children chase squirrels in the courtyard, their footprints trailing along the pine needle-strewn path; when families relax on the terrace at night and listen to the crashing waves—Shoreline House is no longer simply a building; it is a vessel for living and connecting to nature. It makes the dream of "living by the coast" a gentle and sustainable reality.

这份对 “在地性” 的尊重,也藏在团队的协作里:Mdrn Built 的建造让 “轻盈悬浮” 的结构精准落地,Andrew van Egmond 的景观设计让植被与建筑共生,Aspect Structural Engineers 则用技术守护了生态敏感区的脆弱平衡。当居者在晨光中醒来,看海鸟掠过海面;当孩子在庭院里追逐松鼠,脚印落在混着松针的步道上;当夜晚全家人在露台听浪声 ——Shoreline House 早已不是一栋单纯的建筑,而是承载生活、连接自然的容器,它让 “住在海岸边” 的梦想,以一种温柔且可持续的方式,照进了现实。

打开网易新闻 查看精彩图片
打开网易新闻 查看精彩图片
打开网易新闻 查看精彩图片
打开网易新闻 查看精彩图片

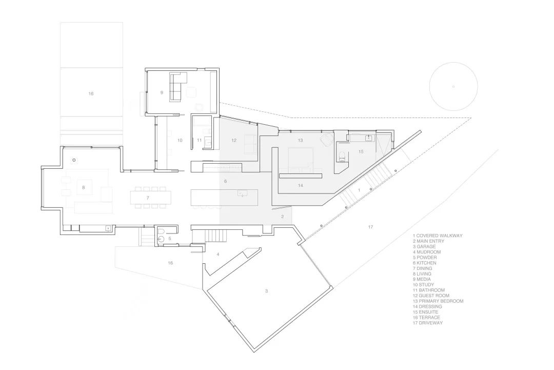
△平面图

编辑:夏边际

撰文:豆宝宝

校改:吴一仁

编排:布忠耀

本文素材图片版权来源于网络,

如有侵权,请联系后台,我们会第一时间删除。

- end-

内容合作:微信chenran58,

|免责声明|

本文转载自:设计先锋队

尊重知识产权,版权归原创所有,本站文章版权发现其他,转载或出自网络整理,如内容涉及侵犯、版权问题时,烦请与我们联系,我们会及时做删除处理。