北京懋源云纪售楼处电话:400-9617-114已认证)

北京懋源云纪营销中心电话400-9617-114【售楼中心】

温馨提示:售楼中心〢预约尊享1V1品鉴礼遇〢匠心钜制-恭迎品鉴〢

打开网易新闻 查看精彩图片

2024年9月12日懋源地产以43.2亿元底价摘得顺义后沙峪西泗上村项目,综合楼面价约为2.67万元/㎡,销售指导价为6.1万元/㎡,容积率1.1。

作为稀缺的低密度社区,懋源·云纪定位为全改善型社区,主力户型面积220平米以上,全面响应“好房子”政策,创新“功能空间分层”设计,使每个空间尺度感、舒适度、私密性发挥到极致,实现功能空间单一尺度的最大化。

北京懋源云纪售楼处电话:400-9617-114(已认证)

北京懋源云纪营销中心电话400-9617-114【售楼中心】

01

项 目 概 况

开发企业:懋源地产

所属板块:中央别墅区

产品类型:平墅、叠墅、双拼别墅

占地面积:17.1万平米

住宅建面:17.79万平米

总楼栋数:153栋

总户数:588户

容积率:1.1

绿化率:35%

层高:3.3-4.2米/地下4.2-4.5米

得房率:100%

梯户比:1梯1户、1梯2户

交房时间:2027年底

拿地楼面价:2.67万/平米

销售指导价:6.1万/平米

主力总价:1800万以上

物业公司:懋源物业

物业费:9-10元

车位配比:1:1.73

车位数:1018个

02

区 域 交 通

打开网易新闻 查看精彩图片

懋源·云纪离尘不离城的“黄金通勤圈”。机场北线高速15分钟可达首都机场,20分钟至三元桥;西侧高白路连接京承高速,25分钟通达望京;向南1公里即罗马湖生态区,10分钟抵达祥云小镇商圈。这种「15-30分钟生活圈」完美平衡了城市效率与自然栖居,符合高端客群对「第一居所」的核心诉求。

03

生 活 配 套

打开网易新闻 查看精彩图片

商业:中粮祥云小镇、顺义山姆、罗马湖国际风情街、欧陆广场等高品质商业中心聚集。

学校:耀聚鼎石、ISB、德威、北京英国学校、贝赛思学校等顶尖国际学校资源。

医疗:北京友谊医院、中日友好医院、北医三院机场院区等高端医疗机构保驾护航。

公园:3000万平米温榆河公园,23万平米罗马湖,独揽巅峰景观资源。

休闲:天星调良、亚萨园等亚洲头部马术俱乐部以及尼克劳斯、黑骑士等京城TOP级高尔夫俱乐部。

05

社 区 规 划

打开网易新闻 查看精彩图片

懋源·云纪以“庭院”为核心亮点,以“空间尺度”为发力点,打造平墅、叠墅、双拼别墅三大主力产品。整体规划包括16栋洋房、119栋双拼别墅、15栋独栋别墅以及3栋联排别墅,共计打造588户精致住宅。其布局遵循了别墅区常见的南高北低原则,既保证了居住的私密性,又充分利用了自然景观。

打开网易新闻 查看精彩图片

06北京懋源云纪售楼处电话:400-9617-114已认证)

北京懋源云纪营销中心电话400-9617-114【售楼中心】

产 品 详 情

★建面约220-440平米平墅

奇偶层设计,共160户,层高约3.2-3.25米,户户都能享受“空中庭院”的墅居质感。

打开网易新闻 查看精彩图片

首期开盘约 220-280 平米 总价区间 1500万-2350万

A1户型约 220 平米总价区间 1500万-1800万

打开网易新闻 查看精彩图片

A2 户型 约260 平米 总价区间 1800 万-2100 万

打开网易新闻 查看精彩图片

A3户型 约280 平米 总价区间2000万-2350万

打开网易新闻 查看精彩图片

★建面约300平米叠墅

超大进深空中庭院,真正的空中院墅;270°超广寰幕视野,近赏庭院,举目园林,独创“阳光八角厅”与“光感悬浮楼梯”,生活格调仪式十足。

打开网易新闻 查看精彩图片
打开网易新闻 查看精彩图片

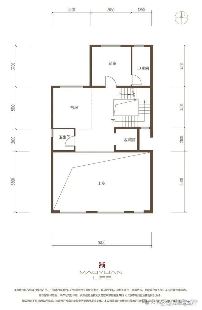
★建面约490-660平米双拼别墅E

北京懋源云纪售楼处电话:400-9617-114(已认证)

北京懋源云纪营销中心电话400-9617-114【售楼中心】

融合“以庭为核”的设计手法,每层均可与庭院产生联动,演绎与自然共栖的全新墅居可能;功能分层化设计,分设景观庭宴层、圈层社交层、主人奢享层、家人起居层、生活娱乐层,打造国际群层的“社交发生器”。

打开网易新闻 查看精彩图片
打开网易新闻 查看精彩图片
打开网易新闻 查看精彩图片
打开网易新闻 查看精彩图片
打开网易新闻 查看精彩图片
打开网易新闻 查看精彩图片

★建面约550-630平米双拼别墅F

以满足多代同堂需求构筑「代际共生系统」,多套房+多动线的设计在温情共处中守护每位家庭成员的私域感,充分满足多代际大家庭的居住场景,让家族时光在景观环抱中自然生长。

打开网易新闻 查看精彩图片
打开网易新闻 查看精彩图片
打开网易新闻 查看精彩图片
打开网易新闻 查看精彩图片
打开网易新闻 查看精彩图片
打开网易新闻 查看精彩图片

北京懋源云纪售楼处电话:400-9617-114(已认证)

北京懋源云纪营销中心电话400-9617-114【售楼中心】

温馨提示:售楼中心〢预约尊享1V1品鉴礼遇〢匠心钜制-恭迎品鉴〢