武汉天创元萃售楼处电话:400-002-9578转2222【已认证】
武汉天创元萃售楼部电话:400-002-9578转2222【专人接听】
武汉天创元萃售楼中心电话:400-002-9578转2222【售楼中心】
武汉天创元萃营销中心电话:400-002-9578转2222【官方网站】
温馨提示:网上售楼中心〢预约可享内部优惠〢匠心钜制-恭迎品鉴〢
免责声明:(本文章所用信息图片来源于网络,如有侵权请联系本网站及时删除)

打开网易新闻 查看精彩图片

一、小而精的改善盘

开发商:天创地产(汉阳区国企)联合贝好家(贝壳旗下C2M平台)

位置:武昌区中山路与解放路交汇处(武昌古城核心,紧邻昙华林)

规模:4栋10-13层小高层,仅159户,容积率2.0(内环罕见!)

车位配比:1:1.07(共170个车位)

交房时间:预计2026年底(以合同为准)

159户!这规模在内环简直是“熊猫盘”,私密性没得说!但车位配比只是刚好够用,家里有两辆车的朋友可能得斟酌下~

打开网易新闻 查看精彩图片

二、老武昌的烟火气与便利兼得

地段稀缺性:正武昌内环,古城核心板块,紧邻昙华林历史街区,出门就是老武昌的“根脉”。

交通超便利:距离地铁5号线昙华林武胜门站约100米,真正的“地铁上盖”!

商业:步行可达司门口商圈、粮道街(网红美食聚集地),日常购物、觅食超方便。

教育:根据拿地要求,适龄儿童入学对口中华路系小学,初中预计对口粮道街中学积玉桥校区。

医疗:距离湖北省中医院(三甲)约700米。

生态:步行约340米可达武昌江滩,饭后散步吹江风太惬意了。

城市界面老旧:周边多是老小区,城市更新需要时间。

缺乏大型商业体:像梦时代、楚河汉街等大型商圈需要一段距离,依赖自驾或地铁。

邻近加油站:项目西北角有加油站,部分购房者可能会介意。

住这里最大的享受就是“烟火气”!早上粮道街吃碗热干面,晚上昙华林喝杯咖啡,这才是老武昌的生活~但对追求崭新城市界面的朋友来说,可能需要适应一下。

打开网易新闻 查看精彩图片

三、低密社区的匠心细节

建筑布局:纯板楼结构,1梯1户或1梯2户,保证每户的通透性和私密性。部分楼栋采用弧形大窗设计,颜值很高!

打开网易新闻 查看精彩图片

园林设计:虽然社区不大,但规划了水景和立体园林,3号楼2单元首层还做了架空层泛会所,增加了公共活动空间。

打开网易新闻 查看精彩图片

开发模式创新:引入贝好家C2M模式,通过大数据分析用户需求来定制产品!比如户型功能、装修偏好等,更“懂你”。

打开网易新闻 查看精彩图片

在内环能做2.0容积率的小高层,开发商确实下了血本!弧形大窗和架空层会所这些细节,能看出是想认真做产品的~

四、每一款都有亮点!

约127㎡ 四房三卫 (入门改善之选)

作为项目的起步户型,它是三开间朝南的设计,以保证充足的采光。考虑到项目的改善定位,采用大横厅设计,连接南向阳台,最大化空间感和采光。设计两个南向套卧,并通过飘窗等提升空间利用率。

打开网易新闻 查看精彩图片

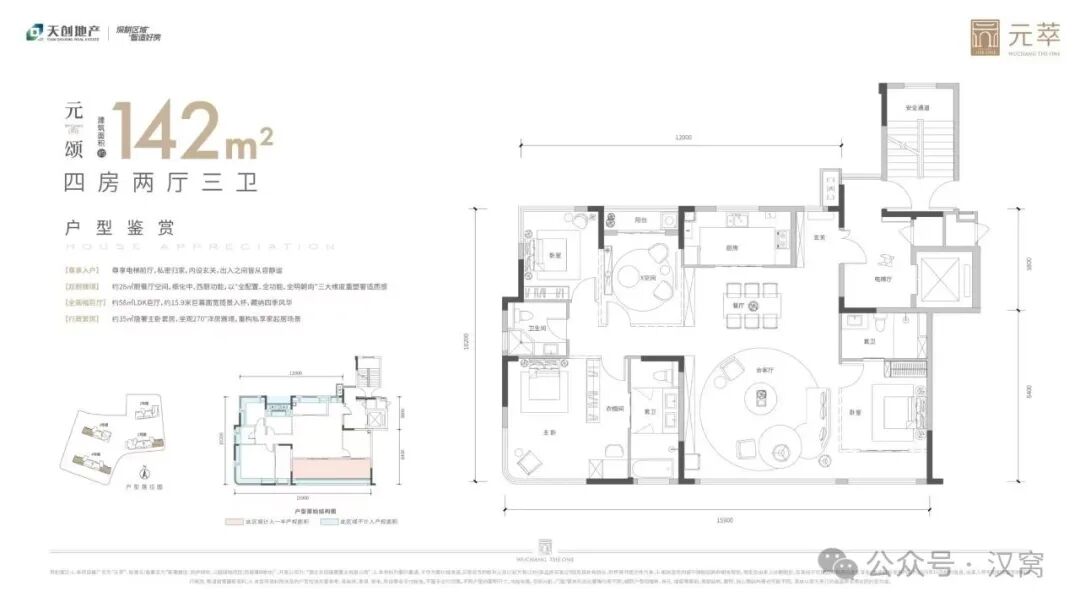
约142㎡ 四房两卫

采用大横厅设计,连接南向阳台,最大化空间感和采光。实现双套房设计(主卧和老人房均带独立卫生间),保障多代居住的私密性。独立电梯厅或入户玄关等提升归家仪式感,三开间朝南,功能布局将更为从容。

打开网易新闻 查看精彩图片

武汉天创元萃售楼处电话:400-002-9578转2222【已认证】武汉天创元萃售楼部电话:400-002-9578转2222【专人接听】武汉天创元萃售楼中心电话:400-002-9578转2222【售楼中心】武汉天创元萃营销中心电话:400-002-9578转2222【官方网站】温馨提示:网上售楼中心〢预约可享内部优惠〢匠心钜制-恭迎品鉴〢免责声明:(本文章所用信息图片来源于网络,如有侵权请联系本网站及时删除)