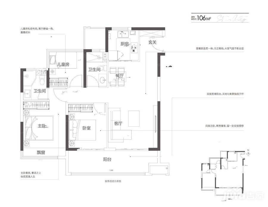
信达碧桂园项目地处肥东和睦湖板块,由信达地产和碧桂园集团联手打造,是一处高品质的住宅项目。项目位于酿泉路与日出路交口,距离在建地铁2号线东延线约1.5公里,交通便利。整个项目分为两期开发,主打高层产品,中间还分布着5栋洋房,户型方正纯粹,让居住者享受舒适的生活体验。信达碧桂园的建面约为95-118平方米,合理的空间功能分区和优越的面宽进深比例,让每一位居民都能拥有舒适的居住空间。 信达碧桂园项目地铁2号线延长线在侧,便利出行;周边有惠宜品购物中心等商业配套,满足基本日常需求;同时,东城实验*、安师大附属*等丰富的教育资源,为孩子提供一站式教育体系。项目还拥有和睦湖公园、肥东体育公园等生态资源,让业主在闲暇时享受赏景、散步的乐趣。 信达碧桂园的户型设计致力于提供高品质的居住体验。建面95-118平方米的户型充分考虑了居住者的需求,合理分区功能,视野采光俱佳的通透户型,带来舒适的生活感受。特别是3+1房的户型格局,不仅保证了居住品质,更在空间设计上营造出个性化的生活空间。精心设计的户型不仅满足了实际的居住需求,更能在物理与精神层面上实现全新的提升,让居住者享受到独特的居住体验。 信达碧桂园楼盘具体一房一价,详询营销中心。 信达碧桂园注重品质,建筑设计精良,采用优质材料,保证房屋质量和耐久性。项目内设有儿童乐园、健身房、社区花园等配套设施,为居民提供便利的生活体验。这些设施为居民提供了休闲、娱乐和健身的场所,让居住者享受更加丰富多彩的生活。 信达碧桂园项目由信达地产和碧桂园集团联合开发建设,地处肥东和睦湖板块,拥有高品质的住宅产品和丰富的周边配套设施。项目的户型设计合理,让居民享受舒适的居住体验;周边交通、教育、医疗和商业设施完善,生活便利无忧。信达碧桂园致力于打造高品质生活,让每一位居民都能享受到舒适便利的居住环境。

信达碧桂园售楼处电话☎:0551-6258 9933【售楼中心】24小时电话(已认证)楼盘详情介绍,位置、小区环境、房价、周边商业配套、户型等楼盘详情!

售楼部电话:0551-6258 9911
打开网易新闻 查看精彩图片
售楼部电话:0551-6258 9911
售楼部电话:0551-6258 9911
打开网易新闻 查看精彩图片
售楼部电话:0551-6258 9911
售楼部电话:0551-6258 9911
打开网易新闻 查看精彩图片
售楼部电话:0551-6258 9911
售楼部电话:0551-6258 9911
打开网易新闻 查看精彩图片
售楼部电话:0551-6258 9911
售楼部电话:0551-6258 9911
打开网易新闻 查看精彩图片
售楼部电话:0551-6258 9911
售楼部电话:0551-6258 9911
打开网易新闻 查看精彩图片
售楼部电话:0551-6258 9911
售楼部电话:0551-6258 9911
打开网易新闻 查看精彩图片
售楼部电话:0551-6258 9911
售楼部电话:0551-6258 9911
打开网易新闻 查看精彩图片
售楼部电话:0551-6258 9911

信达碧桂园售楼处电话TEL:0551-6258 9933【营销中心】

✥✥来电预约登记__VIP热线售楼中心_〢尊享一对一专业置业热情服务〢

预约优惠___〢售楼中心置业顾问为您买房保驾护航〢___匠心钜制恭迎品鉴⇈