奉贤奉城 佳源·名人公馆——尚优玛特购物广场(奉城店)——超市+台球厅商铺出售-2590㎡,总价2280万

上海市奉贤区奉城镇兰博路3069弄佳源·名人公馆

单价8800/m²沿街大转角整体出售

★★预约热线:先拨打400 9939 116听到提示音后再拨分机号900【预约看房】

客服经理:134-0209-6359(微信同号)加微信请备注楼盘名称:【奉贤尚优玛商铺

预约看房——欢迎来电咨询〢——预约看房错峰接待,谢谢配合!

打开网易新闻 查看精彩图片

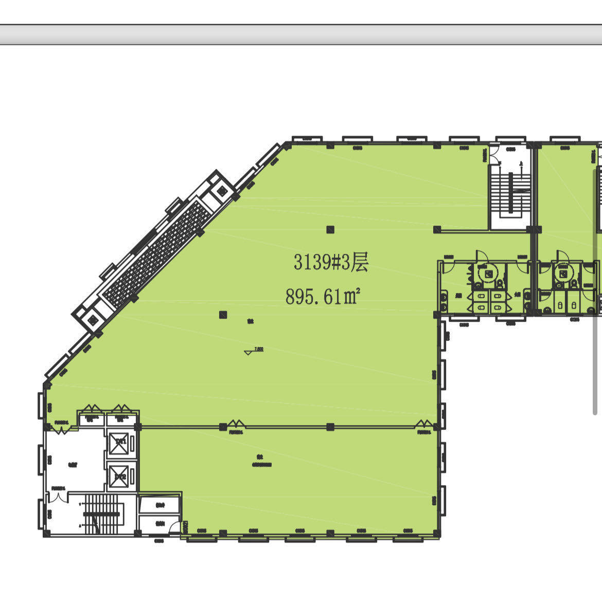
面积:2590m² (一层772m² 二层922m²三层895m²)

原价:3100万

一口价:2280万

层高:一楼4.2米 二楼3.3米 三楼3.3米

打开网易新闻 查看精彩图片

卖点

1.11开间 超30米大展示面

2.商家稳定 带租约出售

3.95%以上超高得房率 户型方正

4.路口大转角 自带停车位

5.通燃气可做重餐饮

6.500米内超5000户固定小区人口

7.品牌商家 租金可查

8.商家已经营8年以上 25年重新装修 租约稳定

租金计算方式:

超市租金表(下方表格扣除109.79m²不计算租金)

打开网易新闻 查看精彩图片

台球厅租金表

打开网易新闻 查看精彩图片
打开网易新闻 查看精彩图片
打开网易新闻 查看精彩图片
打开网易新闻 查看精彩图片

1-2层商家实景照片

打开网易新闻 查看精彩图片
打开网易新闻 查看精彩图片
打开网易新闻 查看精彩图片
打开网易新闻 查看精彩图片

3层商家实景照片

打开网易新闻 查看精彩图片
打开网易新闻 查看精彩图片
打开网易新闻 查看精彩图片
打开网易新闻 查看精彩图片
打开网易新闻 查看精彩图片

奉贤奉城 佳源·名人公馆——尚优玛特购物广场(奉城店)——超市+台球厅商铺出售-2590㎡,总价2280万

上海市奉贤区奉城镇兰博路3069弄佳源·名人公馆

单价8800/m²沿街大转角整体出售

★★预约热线:先拨打400 9939 116听到提示音后再拨分机号900【预约看房】

客服经理:134-0209-6359(微信同号)加微信请备注楼盘名称:【奉贤尚优玛特商铺】

预约看房——欢迎来电咨询〢——预约看房错峰接待,谢谢配合!

打开网易新闻 查看精彩图片

以上内容仅供参考,实际以售楼处销售为准。(免责声明:本篇分享所涉及的图文资料仅供参考,具体以最终签订的买卖合同为准,部分图片素材来自网络,如有侵权请联系小编删除,感谢支持)