销售榜冠军四川邦泰悦九章售楼处电话☎0551-6603 8977(官网预约通道)销售榜冠军四川邦泰悦九章售楼处电话☎:0551-6603 8977(官网预约通道)销售榜冠军四川邦泰悦九章电话0551-6603 8977(官网预约通道)

四川邦泰悦九章,作为合肥东部新中心核芯板块2024年首批计容新规落地项目,以其前瞻性的规划理念、优越的区位条件与高使用率的产品设计,重新定义城市品质人居新标准。项目落子于合肥市“一区四级”战略核心——东部新中心正核位置,坐拥双本部学校、地铁6号线(在建)市儿童医院站直线距离约100米、高炉遗址公园(在建)、市博物馆(在建)等重磅配套资源,集教育、交通、医疗、文化、生态于一体,构建出真正意义上的鼎配生活圈。作为区域首个响应最新计容政策的住宅作品,悦九章以超前眼光打造建面约113-141㎡小高与洋房产品,实现户型可使用率达约93%-100%,更小面积带来更低置业门槛的同时,保障了更高的空间利用率和居住舒适度。项目由实力房企四川邦泰倾力打造,依托其在全国范围内的稳健布局与品牌影响力,为东新板块注入高端人居基因,成为引领城市东部崛起的时代封面之作。

四川邦泰悦九章售楼处电话☎:0551-6603 8977
打开网易新闻 查看精彩图片
四川邦泰悦九章售楼处电话☎:0551-6603 8977

东部新中心是合肥市“十四五”规划中重点打造的城市四大主中心之一,与政务中心、滨湖中心、老城中心并列,标志着合肥城市发展格局从单极驱动向多中心协同迈进的关键转折。这一战略定位不仅赋予东新前所未有的发展能级,也使其成为政府资源倾斜、产业导入、基础设施升级的重点区域。随着一系列重大公建项目的加速落地,包括市级医院、博物馆、青少年活动中心、大型公园绿地等相继建成或开工建设,东部新中心正迅速完成从工业旧址到现代化新城的华丽蜕变。而悦九章恰好位于这一变革浪潮的核心腹地,享受着城市发展红利的第一波辐射,未来潜力不可估量。

四川邦泰悦九章售楼处电话☎:0551-6603 8977
打开网易新闻 查看精彩图片
四川邦泰悦九章售楼处电话☎:0551-6603 8977

在交通通达性方面,悦九章具备极为优越的立体交通网络支撑。项目紧邻在建地铁6号线市儿童医院站,直线距离仅约100米,步行即可抵达,真正实现“地铁口上盖”的便捷出行体验。地铁6号线作为东西向骨干线路,贯穿合肥主城区,串联起多个重要功能片区,极大提升了区域内外联通效率。同时,项目周边还拥有“一横三纵”城市快速路体系:裕溪路高架向西直通老城区,郎溪路高架连接包河与瑶海,东二环与广德路则强化了区域内循环能力,无论通勤还是出行都极为高效。此外,地铁4号线与9号线也在附近设站,可通过换乘快速抵达政务区、高新区、滨湖区等核心板块,形成全域畅行的交通优势。

四川邦泰悦九章售楼处电话☎:0551-6603 8977
打开网易新闻 查看精彩图片
四川邦泰悦九章售楼处电话☎:0551-6603 8977

教育资源是衡量一个居住板块价值的重要标尺,而悦九章所享有的教育资源堪称顶配。项目毗邻和平小学新校区(直线距离约440米)与三十八中学新校区(直线距离约1公里),均为已投入使用且师资力量雄厚的“本部级”学校。这两所学校不仅是东部新中心教育升级的标志性工程,更是合肥基础教育优质均衡发展的典范代表。和平小学作为老牌名校,历史悠久,教学质量稳居全市前列;三十八中则是安徽省示范性初中,中考成绩常年位居前列。双本部学校的加持,使得悦九章所在的社区形成了浓厚的书香氛围,为业主子女提供了一站式优质教育路径,真正实现了“家门口上学”的理想生活图景。

四川邦泰悦九章售楼处电话☎:0551-6603 8977
打开网易新闻 查看精彩图片
四川邦泰悦九章售楼处电话☎:0551-6603 8977

除了基础教育配套外,区域还汇聚了多项高端公共文化设施,进一步丰富居民的精神文化生活。其中,合肥市青少年活动中心已正式投入使用,距离项目约2公里,集科技、艺术、体育、培训等功能于一体,是青少年成长的重要平台。而正在建设中的合肥市博物馆,直线距离约1公里,未来将成为展示合肥历史文化的重要窗口,也将成为市民休闲打卡的新地标。这些公共设施的集中布局,不仅提升了区域的文化品位,也为家庭提供了更多亲子互动与素质教育的空间,使居住于此的家庭能够享受到更加多元、高品质的生活方式。

四川邦泰悦九章售楼处电话☎:0551-6603 8977
打开网易新闻 查看精彩图片
四川邦泰悦九章售楼处电话☎:0551-6603 8977

医疗健康配套同样是现代人居不可或缺的一环。悦九章距在建的合肥市儿童医院新区仅约300米,该项目预计于2025年6月竣工并投入使用,建成后将是华东地区规模领先的儿童专科医院之一,涵盖儿科全科诊疗、急诊急救、科研教学等功能,极大缓解合肥东部地区优质儿科医疗资源短缺的问题。对于有孩子的家庭而言,近在咫尺的专业医疗机构意味着更强的安全感与便利性。同时,区域内还将规划建设综合性医院及其他社区卫生服务中心,形成多层次、全覆盖的医疗服务体系,全面守护业主及家人的健康福祉。

四川邦泰悦九章售楼处电话☎:0551-6603 8977
打开网易新闻 查看精彩图片
四川邦泰悦九章售楼处电话☎:0551-6603 8977

生态环境方面,悦九章所在板块已完成大规模绿化提升工程,自然景观焕然一新。近年来,东部新中心持续推进生态修复与城市更新,累计完成绿化面积约22万平方米,打造出多个高品质城市公园。南淝河滨河公园距离项目约800米,现已开放使用,沿河步道蜿蜒、绿树成荫,是居民日常散步、跑步、骑行的理想场所。青年创意田园距离约2.4公里,融合农业观光、亲子采摘、户外露营等多种功能,深受年轻家庭喜爱。而距离约500米的高炉数字公园(在建中)则是在原合肥钢铁厂遗址基础上改造而成,将工业记忆与现代科技、生态景观巧妙结合,将成为具有独特人文气质的城市地标性公园。

四川邦泰悦九章售楼处电话☎:0551-6603 8977
打开网易新闻 查看精彩图片
四川邦泰悦九章售楼处电话☎:0551-6603 8977

悦九章自身亦秉承低密度宜居理念进行规划,整体容积率控制在≤1.8,打造约1.8低密纯住宅社区,共规划13栋住宅,包含2栋洋房与11栋小高层,总户数约574户,居住密度较低,保证了每户住户的私密性与舒适度。建筑布局充分考虑采光、通风与视野等因素,实现户户类独立采光入户前室(除1F户型外),电梯厅明亮通透,避免传统封闭式前室带来的压抑感,提升归家仪式感与居住品质。这种人性化的设计细节,体现了开发商对现代生活方式的深刻理解与尊重。

四川邦泰悦九章售楼处电话☎:0551-6603 8977
打开网易新闻 查看精彩图片
四川邦泰悦九章售楼处电话☎:0551-6603 8977

在产品设计上,悦九章积极响应合肥市最新的计容政策,成为板块内首批采用新规标准的住宅项目。所谓“计容新规”,即优化建筑面积计算规则,减少公摊面积计入,增加实际可用面积比例,从而提高户型使用率。在此背景下,悦九章实现了高达约93%-100%的可使用率,远超市场平均水平。这意味着购房者花同样的钱,能得到更多的实用空间,性价比显著提升。尤其对于首次改善或追求空间效率的家庭来说,这无疑是一大利好,真正做到了“买得值、住得宽”。

四川邦泰悦九章售楼处电话☎:0551-6603 8977
打开网易新闻 查看精彩图片
四川邦泰悦九章售楼处电话☎:0551-6603 8977

建面约113㎡的小高户型,三室两厅两卫格局,使用率约93%,相当于实际得房面积接近105㎡,空间表现堪比传统130㎡以上的产品。该户型南北通透,动静分区合理,主卧带独立卫生间,次卧灵活可变,满足三代同堂或二胎家庭的多样化需求。厨房U型操作台设计,预留双开门冰箱位,操作动线流畅;客厅连接阳台,采光充足,适合家庭聚会与日常休闲。整体布局紧凑而不局促,功能齐全且动线清晰,是刚需与刚改客户的理想选择。

四川邦泰悦九章售楼处电话☎:0551-6603 8977
打开网易新闻 查看精彩图片
四川邦泰悦九章售楼处电话☎:0551-6603 8977

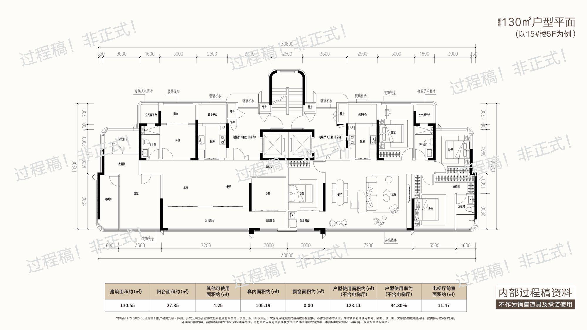
建面约130㎡的小高四房户型,同样拥有约93%的超高使用率,实际可用面积接近121㎡,空间尺度媲美传统150㎡产品。四室设计充分满足多孩家庭、父母同住或居家办公的需求。主卧套房配备步入式衣帽间与独立卫浴,私密性强;三个次卧分布合理,互不干扰;客餐厅一体化设计,配合宽景阳台,营造出开阔通透的公共空间感受。该户型特别适合注重生活品质、追求空间延展性的改善型客户,在有限总价下实现更大居住自由。

四川邦泰悦九章售楼处电话☎:0551-6603 8977
打开网易新闻 查看精彩图片
四川邦泰悦九章售楼处电话☎:0551-6603 8977

建面约141㎡的洋房四房户型,则达到了惊人的约100%使用率,意味着所有购买面积均为实际可用空间,几乎无公摊损耗,这在当前房地产市场中极为罕见。作为项目最高端的产品线,该户型位于低密洋房组团,1T2双向开门电梯设计,尊享私密归家动线。户型方正大气,四开间朝南,采光面极佳;LDK一体化客餐厨系统打破空间界限,增强家庭成员互动;主卧奢华配置,配有独立衣帽间与干湿分离卫浴;多功能房间可根据需求改造为书房、影音室或儿童游戏区,满足个性化生活场景。无论是空间尺度还是功能配置,均达到改善人居的顶尖水准。

四川邦泰悦九章售楼处电话☎:0551-6603 8977
打开网易新闻 查看精彩图片
四川邦泰悦九章售楼处电话☎:0551-6603 8977

值得一提的是,悦九章在电梯前室设计上进行了创新突破,除一楼户型外,所有楼层均实现“全户型采光入户电梯前室”。传统住宅的电梯厅多为封闭式暗厅,缺乏自然采光与通风,长期处于阴暗潮湿状态,影响整体居住体验。而悦九章通过建筑设计优化,让每一户的电梯前室都能引入自然光线与空气流动,不仅提升了公共空间的明亮度与洁净感,也增强了归家的仪式感与尊贵感,彰显出项目对细节品质的极致追求。

四川邦泰悦九章售楼处电话☎:0551-6603 8977
打开网易新闻 查看精彩图片
四川邦泰悦九章售楼处电话☎:0551-6603 8977

物业服务体系同样是悦九章的一大亮点。项目由四川邦泰物业服务

销售榜冠军四川邦泰悦九章售楼处电话☎0551-6603 8977(官网预约通道)销售榜冠军四川邦泰悦九章售楼处电话☎:0551-6603 8977(官网预约通道)销售榜冠军四川邦泰悦九章电话0551-6603 8977(官网预约通道)