近日,萧山一网友在萧内网App发帖:

银隆天桥要开工了!C座都快要造好了……

打开网易新闻 查看精彩图片
打开网易新闻 查看精彩图片

据了解,今年10月银隆天桥(萧彩街公共人行天桥项目)发布招标公告,计划建设一座连接银隆B座与C座、上跨萧彩隧道的人行天桥

12月3日,项目中标结果出炉,工期270天——

打开网易新闻 查看精彩图片

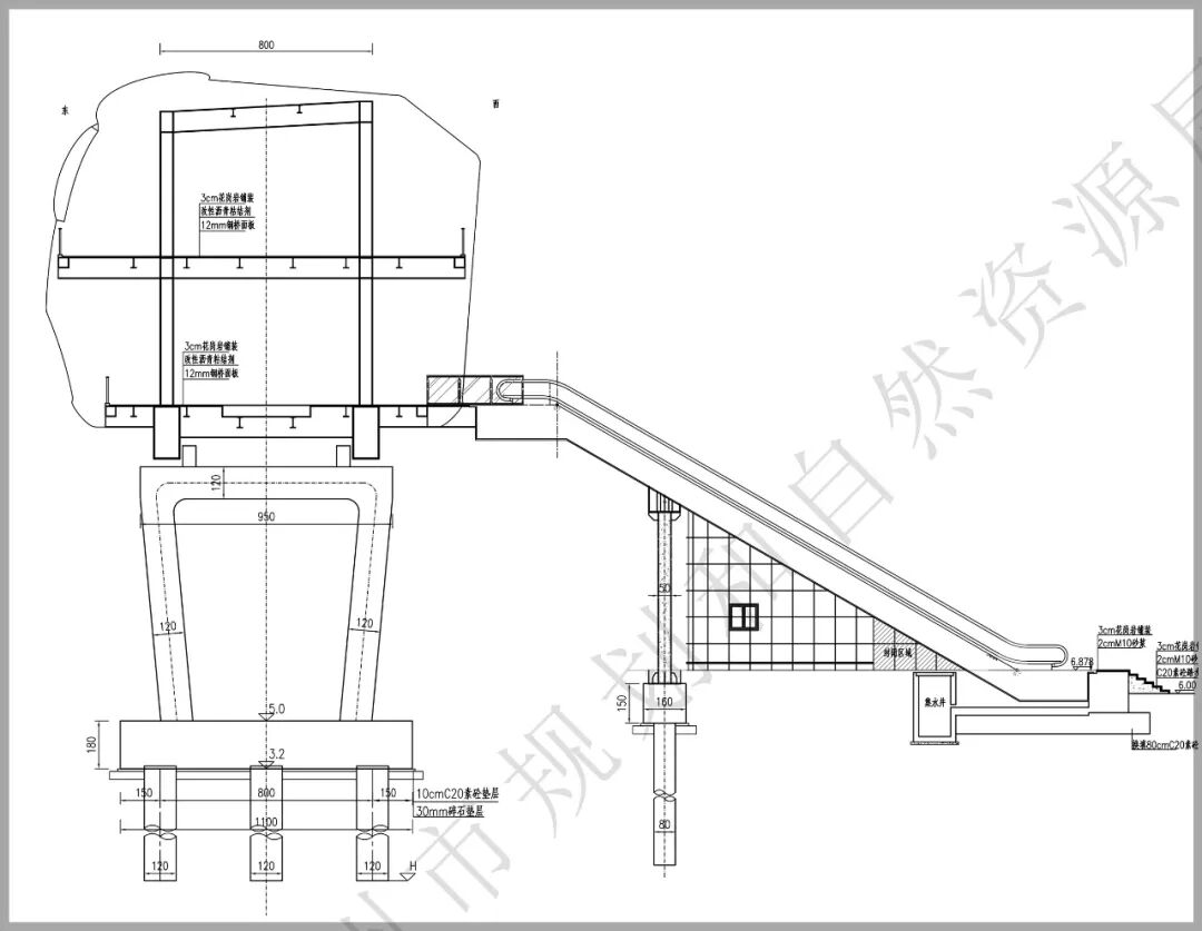
12月4日,杭州市规划和自然资源局官网发布萧彩街公共人行天桥项目建设方案公示——

杭州萧山城市基础设施建设有限公司在杭州市萧山区北干街道上跨萧彩街隧道在银隆百货B座与C座三层间建设萧彩街公共人行天桥项目。建设单位已委托设计单位完成方案设计,现将设计总平面图及横断面图、鸟瞰图予以公示。

现定于2025年12月05日至2025年12月15日在萧山区政务服务中心一楼东大厅、北干街道办事处、所在社区项目现场及杭州市规划和自然资源局网站进行公示。如有意见请于12月15日前来电或书面意见给杭州市规划和自然资源局及相关职能部门。涉及重大利害关系的,利害关系人如需申请听证,请在公示期间提出书面申请。

打开网易新闻 查看精彩图片
打开网易新闻 查看精彩图片
打开网易新闻 查看精彩图片
打开网易新闻 查看精彩图片
打开网易新闻 查看精彩图片

据报道,银隆百货C座于2022年动工建设,总投资约7亿元,占地约20亩,建筑面积为7万多平方米。

这座空中天桥将银隆百货A、B、C三座连为一体,总面积将达22万平方米。

据了解,银隆百货C座目前已结顶。

网友@hhjjj

银隆百货C座最新进展

打开网易新闻 查看精彩图片
打开网易新闻 查看精彩图片

网友评论

网友@萧山杂谈:萧山版“杭州大厦”。

网友@葡挞:什么时候造?好期待。

网友@thx3639:黄金地段,萧山心脏。

网友@CheneyChen:杭州大厦的那个天桥。

网友@恐龙特急:居然是两层的天桥,别的地方没见过。

网友@大聪明:跟杭州大厦那个连接通道差不多吧。

网友@合肥春天:萧山人自己的杭大。

网友@草叶:看上去很漂亮!

网友@回不去的岁月:造型还挺好看的。

网友@十月:C座外立面石材差不多挂好了。

网友@永远都是萧山人:不知道会不会对彩虹高架通行造成影响,现在走通城高架都要从那边上去。

来源:萧内网友、浙江省公共资源交易服务平台、杭州市规划和自然资源局官网

扫码下载萧内App

30万人都在用的本地App

感谢您的关注与点赞