云上润府是福海A208-0991宗地,项目总占地约3.09万㎡,建面约13万㎡,其中包含住宅11.4万㎡(含约2.29万㎡的保障性租赁住房)、商业6000㎡、一所约3000㎡的9班幼儿园以及各项公共配套,规定容积率≤4.2。预计25年5月交付精装交府。

打开网易新闻 查看精彩图片

其中住宅506套,户型面积约为97-135㎡,备案均价约4.79万/㎡,单价区间约4.1-5.3万/㎡,总价区间约402-702万/套;商铺42套,户型面积约为34-154㎡,备案均价约4.3万/㎡,单价区间约1.5-6.6万/㎡,总价区间约66-1022万/套。

华润云上润府_Vip Tel:400-855-2986(官方)中介勿扰

打开网易新闻 查看精彩图片

小区一共有9栋住宅加一所9班幼儿园:

其中1栋,2栋1.2.3单元,3栋1.2.3.4单元为商品房,

2栋4单元为公共租赁和自持租赁住房,4栋为幼儿园。

主力建面约:98㎡-132㎡-135㎡

打开网易新闻 查看精彩图片

约98㎡三房二卫该户型为传统竖厅三房二卫设计,亮点在于大阳台设计和巧妙利用到墙面凹凸位放冰箱,还有次卧的双飘窗取光。

打开网易新闻 查看精彩图片

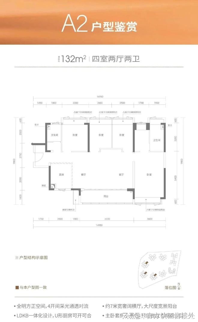
约132㎡四房二卫该户型为横厅大四房二卫设计,空间感拉满,符合年轻人爱好的横厅和主卧还有衣帽间空间的设计,的确有点意思。

打开网易新闻 查看精彩图片

约135㎡四房二卫该户型为南北通透的大四房二卫设计,严格来说可以算是一个4+1房了,户型设计方面没有缺点,比原关内150㎡的设计更优。

打开网易新闻 查看精彩图片

区域•地段价值介绍

福海地处宝安中部城区核心位置,作为深圳西部工业重镇,集萃超4000家高新企业,经济总量居全区前列。2022年以高标准谋划“一核两翼”新格局,打造集国际化城市中心、战略性新兴产业的“新一代产业都芯”,为福海注入磅礴发展动能

三大国家战略叠加,福海迈进黄金发展期,政策利好叠加资源禀赋,擎动城市“跃迁式”升级,一个高质量发展的湾区样本跃然已现

大前海战略:前海合作区,“大湾区核心战略支点”+“世界级湾区会客厅”,以8倍扩容之势,迈进约120K㎡万亿大前海版图

大空港战略:空港枢纽城,约95平方公里粤港澳大湾区新城、国际一流空港都市区,推动西部经济崛起的创新引擎

大会展海洋战略:会展海洋城,宝安“五大发展极核”之一,凭借“会展新城+海洋新城”双核规划,打造双千亿级产业高地

打开网易新闻 查看精彩图片

深港先进制造业合作区:宝安十四五规划唯一带深港合作概念片区,以世界先进制造示范区为定位,助推福海片区6.9平方公里规划建设,打造深港产城融合前沿阵地

大族激光智能制造产业基地:全市15个重中之重工业项目之一,打造千亿级激光智造产业集群基地

环立新湖产业基地:深圳战略性新兴产业聚集区,打造为全国知名的智能装备制造产业基地和全球激光产业基地

平安高科技城:总投资约150亿,引入平安集团各大资源,建设成为平安科技金融与智慧城市创新中心

打开网易新闻 查看精彩图片

项目自带9班制幼儿园,护航孩子成长。与深圳市福海中学一街之隔,约1公里范围内分布幼儿园、小学及中学10+所,其中桥头学校为九年一贯制公立学校,福海小学(建设中)拟设24班1080个学位(具体入学条件以教育部门及学校当年公布的招生政策为准)

约9万㎡华强城商业Shopping Mall(建设中)、约30万㎡高端名品奥特莱斯(规划中)等大型商业体环伺,举步可达三大品质社区商街,悦见都会醇熟生活场

毗邻福海足球体育公园、福海文体中心(规划中),周边福海公园、凤凰山森林公园、立新湖公园及海洋新城红树林休闲区(规划中)等环绕;项目所在街道规划多个儿童友好型公园,为亲子互动提供专属空间

距地铁11号线桥头站直线距离约1公里左右、12号线桥头西站直线距离约1000米;1号线、20号线、18号线(规划中)、26号线(规划中)及30号线(规划中)

打开网易新闻 查看精彩图片

深圳华润云上润府售楼处电话:400-855-2986 (1对1专线)欢迎来电咨询我们官方最新动态、房价、在售房源、交楼时间等信息,“请务必注意”甄别,我们营销中心只有一个号码,不需要转换分机。
看房请务必提前预约,避免临时无人接待, 感谢您的配合!
宝安福海·云上润府欢迎您-预约看房,置业顾问一对一对接在售户型图丨项目介绍丨房源丨_周边配套丨详细解答
温馨提示:项目没有所谓的“分机号”注意保护个人隐私!谨防上当!看房请务必提前预约,避免临时无人接待,感谢您的配合!