项目位于前湾片区听海大道旁,靠近前湾中央绿轴,在前湾中轴上,临近产业区,附近是商业办公用地和公共服务用地。

『一湾臻邸』由5座商品住宅楼和2两栋租赁住宅楼合围呈U字形组成,其中1栋2单元、3栋1-4单元这5座是商品住宅楼,商品房层高在30-31-39F,目前在售98-157㎡3-4房,其中98㎡的实际使用率能达到80%左右。

招商·壹湾臻邸_Vip Tel:400-855-2986(官方)中介勿扰

打开网易新闻 查看精彩图片

『一湾臻邸』占地约2.4万㎡,建面约11.9万㎡,其中住宅11万㎡,共7栋,5栋商品房(645套)+1栋租赁人才房(140套)+1栋自持租赁房(560套);还有4000㎡商业,以及配建有一所12班幼儿园、社区菜市场、小型垃圾转运站等公共配套;容积率为4.92,停车位1150个。Vip Tel:400-855-2986(官方)中介勿扰

打开网易新闻 查看精彩图片

项目自带4000㎡商业,距离前湾商业中心约500m,附近还有中集前海国际商业、前海嘉里中心商业。自驾5分钟或一个地铁站能到万象前海、壹方汇、前海K11;5公里范围内还有前海山姆、壹方城、欢乐港湾等大型商业配套。

打开网易新闻 查看精彩图片

距离地铁5、9号线前湾站约500米,步行需6分钟左右。

自驾方面:听海大道连接滨海大道及广深沿江高速,地面交通网,20分钟内可到深圳湾、蛇口、科技园。

附近还有深惠城轨怡海站,可从前海通达西丽、北站、坂田、龙岗、惠州,未来交通枢纽还会有穗莞深轻轨和深港西部快线接入。

打开网易新闻 查看精彩图片

项目隔壁就是一所规划的9年一贯制公立学校,目前还没有确定是哪家教育集团办学。

距离项目900米是在建的南二外前海教育集团(前湾学校)前期上学会在这所学校,国际学校有哈罗公学。

打开网易新闻 查看精彩图片

「一湾臻邸」645套房源98-115-155㎡的3-4房户型。房子整个使用率都比较高,大部分不算飘窗也能达到79-80%,算上飘窗有90%多。Vip Tel:400-855-2986(官方)中介勿扰

打开网易新闻 查看精彩图片

A户型:建面约98㎡,是传统竖厅,动静分区,带宽体阳台的三房两厅两卫,除了3栋1单元外,其它4栋都有分布,有东北、西南、东南三种朝向。这种户型是最常见的了,比较传统也没有明显槽点,98㎡做的三房,舒适性应该是非常好的。

打开网易新闻 查看精彩图片

B户型:建面约115㎡,是独门独户、竖厅、半动静分区,带宽体阳台的四房两厅两卫,分布在1栋2单元和3栋1单元这两栋,有西南和东南两种朝向。户型跟98㎡相似度较高,只不过各功能间的开间要宽一些,公卫的位置会不一样,客厅背景墙后面会多一个卧室。

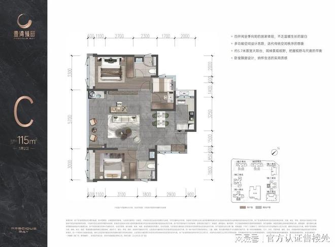
打开网易新闻 查看精彩图片

C户型:建面约115㎡,是独门独户、传统横厅、带宽景阳台、主卧套间设计的四房两厅两卫,除了3栋4单元外,其它4栋都有分布,有东北、西南、东南三种朝向。横厅的优势就是室内廊道与餐客厅融为一体,实用性更佳,视觉感受更好,但同时它也牺牲了居家

打开网易新闻 查看精彩图片

D户型:建面约155㎡,是独门独户、传统横厅、带宽景阳台的四房两厅两卫,除了1栋2单元外,其它4栋都有分布,有东南、东北两种朝向。这个户型跟116㎡横厅户型结构高度相似,在各功能间放大的基础上多了隐私性较好的入户玄关、主卧不仅开间更大了,而且还是通透的。

打开网易新闻 查看精彩图片

区域价值介绍

【三湾C位,价值尽聚】前湾占位前海三湾C位,纵向与桂湾、妈湾联动,横向与宝中、深圳湾后海互通,大前海发展全方位的价值资源聚拢于此。

妈湾:定位为保税港区和商贸中心,港口物流用地占比较大,现阶段的大部分空地都是用做物流仓、集装箱、码头货运之用途。这次只官宣了供地规模,具体指标尚不得而知,人居价值如何奔向顶流还存在一定的不确定性。

桂湾:定位为前海国际金融城,拥有前海最大的核心商业区,摩天大楼鳞次栉比,拥有前海最巍峨最壮观的天际线,成为前海最具烟火气的区域。

前湾:定位为综合配套发展区,重点打造信息服务、科技服务。汇聚前海石公园、前海国际会议中心和国深博物馆等顶流配套,拥有大量的教育用地、河海公园、公共文化设施、低密度的创新创意空间等。

打开网易新闻 查看精彩图片

项目核心作为“特区中的特区”,前海是承载了经济特区,粤港澳大湾区,深圳先行示范区,自贸试验区和深港合作区的国家核心战略平台,是湾区最浓缩最精华的核心引擎,也是中国对话世界的力

打开网易新闻 查看精彩图片

前湾片区作为整个前海最特殊的中间位存在,承上启下,主打公共服务和科创,是深港合作的重要基地。

这里有不少行政部门(法制大厦、一巡法庭、信息枢纽)和公共设施(国深博物馆、国际会议中心、行政服务单位)以及科创园区(深港青年梦工场、深港创新中心、企业公馆

深圳招商·壹湾臻邸售楼处官方电话:400-855-2986 (1对1专线)欢迎咨询官方最新动态、房价、在售房源、交楼时间等信息,“请务必注意”甄别,我们营销中心只有一个号码,不需要转换分机。
看房请务必提前预约,避免临时无人接待, 感谢您的配合!
南山前海·壹湾臻邸欢迎您-预约看房,置业顾问一对一对接在售户型图丨项目介绍丨房源丨_周边配套丨详细解答
温馨提示:项目没有所谓的“分机号”注意保护个人隐私!谨防上当!看房请务必提前预约,避免临时无人接待,感谢您的配合!