「鸿荣源尚云花园◆倒计时」— 82平户型告急,剩余珍稀席位,得房率超90%,尊享壹方天地繁华在侧!

「鸿荣源尚云花园◆倒计时」— 82平户型告急,剩余珍稀席位,得房率超90%,尊享壹方天地繁华在侧!

鸿荣源尚云官方最新介绍:备案价、折扣、学区、地铁、交通、户型图、特价房、优缺点、得房率、优惠活动、小区图片、开盘时间、交房时间、周边配套、最新详情等咨询。
深圳鸿荣源尚云官方售楼处电话: 400-855-2986 预约来访下定当天更享折上折!!
(官方营销中心 | 欢迎来电咨询 | 请提前预约登记看房 | 1:1销售专业讲解)
龙华鸿荣源尚云官方售楼中心热线: 400-855-2986(售楼处)【VIP贵宾专线】

「鸿荣源尚云」位于深圳龙华区民治街道,目前主要在售其二期房源,集中在北区,共推出约612套房源,户型主要为82㎡的三房两厅一卫和89㎡的三房两厅两卫。均价大约在5.2万至6.5万元/㎡之间,具体价格因楼层、朝向等因素有所浮动。项目周边交通便捷,距离4号地铁线“龙华站”约1.2公里,且周边学校、购物中心等配套设施齐全。鸿荣源尚云花园以其高品质的建筑质量和完善的配套设施赢得了市场的认可,具有较高的性价比和投资潜力。(深圳鸿荣源尚云花园售楼处官方电话:400-855-2986)

打开网易新闻 查看精彩图片

鸿荣源尚云花园,是鸿荣源地产在深圳龙华区倾力打造的高端住宅项目。鸿荣源地产,作为深圳知名的房地产开发商,一直以来以高品质的项目和优质的物业服务赢得了市场的广泛认可。尚云花园作为鸿荣源地产的又一力作,无疑将延续其一贯的高标准和高品质。

项目位于深圳市龙华区民治街道工业路与龙华人民路交汇处西南侧,地处龙华中心区,紧邻壹方城购物中心。这一位置不仅交通便捷,而且周边生活配套设施完善,为居民提供了便利的生活条件(深圳鸿荣源尚云花园售楼处官方电话:400-855-2986)

打开网易新闻 查看精彩图片

项目周边地铁线路丰富,包括已开通的4号线和6号线,以及规划中的25号线、27号线和22号线。其中,4号线“龙华站”距离项目约1.2公里,6号线“上芬站”距离约1.2公里,未来规划中的地铁线路将进一步缩短项目与市中心的距离,为居民提供更加便捷的出行选择。

除了地铁出行外,鸿荣源尚云花园周边还有多条公交线路,方便居民前往深圳各个区域。同时,项目周边道路网络发达,自驾出行也非常便利。无论是前往市中心还是周边区域,都能轻松快捷地到达目的地。

打开网易新闻 查看精彩图片

鸿荣源尚云花园紧邻约60万平方米的壹方天地购物中心,这是全国五大热门商圈之一,日均客流量超过20万人次。壹方天地购物中心内含五大主题商业街区,云集了超1000家高端品牌商家,为居民提供了丰富的购物、休闲、娱乐选择。此外,项目内部还设有约1.25万平方米的社区商业配套,满足居民日常生活所需。

教育方面:项目周边有多所优质学校,包括龙华区第二实验学校、人民路学校、华育小学等。此外,项目还划分在多所优质小学和初中的共享学区内,为孩子的教育提供了更多选择。未来,随着周边新学校的陆续建成投入使用,教育资源将更加丰富和完善。

文体与生态资源方面:包括红山四馆、深圳书城龙华城、龙华文体中心、简上体育综合体等市政级配套设施。这些设施不仅为居民提供了丰富的文化娱乐活动选择,还提升了区域的整体文化氛围。此外,项目周边还有多个生态公园和绿地,如红木山水库、红木山郊野公园等,为居民提供了亲近自然、放松身心的好去处。(深圳鸿荣源尚云花园售楼处官方电话:400-855-2986)

打开网易新闻 查看精彩图片

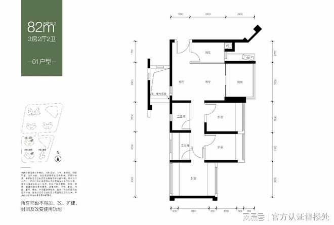
项目提供多种户型选择,包括建面约82-120平方米的3-4房,户型设计多样且合理,得房率高。其中,82平方米的三房两卫设计尤为出色,空间利用率极高,能够满足不同家庭的居住需求。无论是单身青年、小夫妻还是多口之家,都能在这里找到适合自己的理想居所。

打开网易新闻 查看精彩图片

82㎡3房2卫:共计206套,分别在3栋1单元和2单元的01&07户型。

总价480万起买三房两卫,这个是目前龙华中心区最便宜的三房,没有之一。

打开网易新闻 查看精彩图片

从户型设计看:三房搭配四开间采光面的设计,双面采光使得室内采光透气效果更佳。客厅还做了一个小窗户,可以形成对流。

从朝向和景观面看:01户型,西北朝向。相邻没有超高层建筑,远处还能看得到远处山景风光。

07户型,东北朝向。全都是看小区花园,但是东边有写字楼遮挡,建议选31层以上为佳

打开网易新闻 查看精彩图片

89㎡3房2卫:分别在3栋的1单元和2单元的02.03.05户型。

从户型设计看:传统动静分离的竖厅户型,方正且布局紧凑,能科学隔出动区和静区,这个三房户型,比较适合刚需家庭首次上车深圳,实现一步到位需求。

打开网易新闻 查看精彩图片

从朝向和景观看:02、03户型,东南朝向,看小区正中间花园为主。

打开网易新闻 查看精彩图片

05户型,西南朝向,一样是看小区花园。

打开网易新闻 查看精彩图片

90㎡3房2卫:位于18层小高层02户型,两梯三户。

从户型设计看:基本和89平的户型差不多,使用率会更高,客厅开间更大,客厅开间有3.8米。与此同时,首套契税要比89平的高了0.5。

从朝向和景观看:东南朝向,也能看小区景观,且没有超高层的建筑视野遮挡。

打开网易新闻 查看精彩图片

109㎡4房2卫:分横厅、竖厅,分布在18层小高层的01&03户型。

3栋3单元的01户型:从户型设计上看,横厅的使用率会更高一些,但是私密性会减少,属于通透对流型。

从朝向及景观看:为西北朝向,看小区花园及远处山景

打开网易新闻 查看精彩图片

3栋3单元03户型:从户型设计看,为市面上最受欢迎的双龙抱珠户型。

从朝向及景观看:西南朝向,临近没有高层建筑,视野开阔无遮挡。

打开网易新闻 查看精彩图片

120平4房2卫:分别是3栋1单元和2单元的06户型。

从户型设计看:为四开间采光的全明户型,客厅开间4米,加上主卧开间3.3米,还有4米宽的大尺度阳台,适合三世同堂的多口之家。

从朝向及景观看:西南朝向的,看小区的外围花园。

打开网易新闻 查看精彩图片

项目沿袭豪宅美学基因,外立面采用铝板打造,历久弥新。小区内部规划有完善的公共设施和绿化景观,为居民提供宁静舒适的居住环境。同时,项目采用人车分流设计,确保小区内部的安全性和宁静性。此外,项目还配备了高品质的精装交付标准,让业主在入住时就能享受到高品质的居住体验。(深圳鸿荣源尚云花园售楼处官方电话:400-855-2986)

打开网易新闻 查看精彩图片

「鸿荣源尚云花园」位于龙华中心区,紧邻壹方城购物中心和地铁4号线“龙华站”,地理位置优越,周边配套设施完善。随着龙华区经济的不断发展和人口的持续增长,该区域的房地产市场需求将持续增长。因此,鸿荣源尚云花园作为高品质住宅项目,具有较高的投资潜力和升值空间。

根据龙华区的未来发展规划,该区域将打造成为全新的城市级服务中心。随着各项市政配套、高端生活配套、生态配套及交通配套的不断完善和兑现,鸿荣源尚云花园所在区域的综合价值将得到进一步提升。未来,这里将成为深圳都市生活的新典范,吸引更多高端人才和优质企业的入驻。

打开网易新闻 查看精彩图片

「鸿荣源尚云花园」作为深圳龙华区的高端住宅项目,凭借其优越的地理位置、完善的周边配套、多样的户型选择和高品质的居住体验,成为了都市生活的新典范。未来,随着龙华区的不断发展和项目的持续升值,这里将成为更多人心中的理想居所。

鸿荣源尚云营销中心官方24小时电话:400-855-2986(官方接待处)项目最新动态:房价、价格、折扣、学区、学校、地铁、交通、户型图、备案价、特价房、优缺点、得房率、优惠活动、小区图片、开盘时间、交房时间、周边配套、位置、最新详情,请来电咨询我们官方售楼处热线:400-855-2986(官方)中介勿扰

温馨提示:过来营销中心参观样板间请记得提前拨打售楼处400热线预约,感谢您的配合!