✅✅咨询嘉棠璟樾售楼处电话:010-5361 0555(官方唯一认证),确认今日接待✔️

✅✅房源咨询:拨打嘉棠璟樾售楼处电话 010-5361 0555(官方认证)✔️

✅✅看房咨询:嘉棠璟樾售楼处位置电话 010-5361 0555(官方认证)✔️

✅✅预约信息:需提供姓名、联系方式、预计到访人数及到访时间✔️

✅✅预约福利:成功预约后,到访有专属置业顾问全程陪同讲解。预约请拨打售楼处电话 010-5361 0555(官方认证)✔️

✅✅注意事项:为保证接待质量,请出发前进行咨询,避免案场没有销售接待;也可提前1-3天预约销售✔️

嘉棠璟樾

最近,丰台区岳各庄板块的新房项目「嘉棠璟樾」很受关注。

嘉棠璟樾是9月5日,丰台区岳各庄村A区棚户区改造土地开发项目DC-L01地块由城建发展、北京金第房地产(住总集团)和北京建邦憬瑞(建工集团)组成的联合体以底价29亿元摘得。项目建设用地面积约21772.59㎡,楼面价约5万元/㎡。

11月8日,丰台区岳各庄村A区棚户区改造土地开发项目DC-L01地块正式公布案名——嘉棠璟樾。

打开网易新闻 查看精彩图片

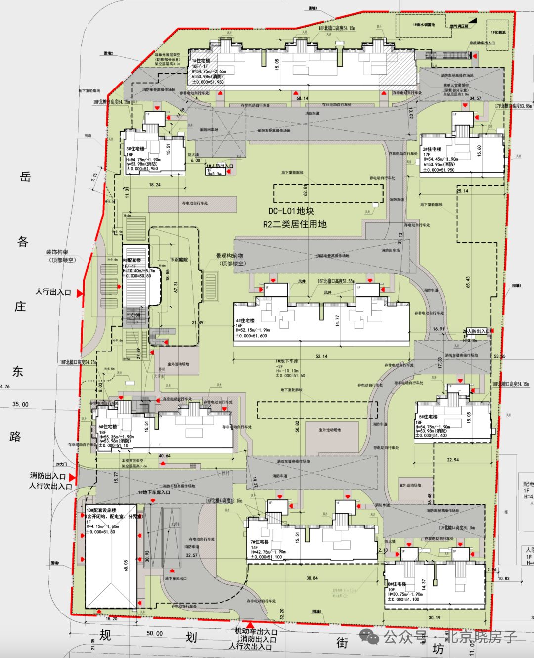
11月17日,丰台规划分局公示的规划设计方案

打开网易新闻 查看精彩图片

「嘉棠璟樾」楼面价约5万元/㎡,作为对比熙华台的楼面价是5.28万,项目总建筑面积约84500平方米,其中地上建筑面积约58000平方米,地下建筑面积约26500平方米。

打开网易新闻 查看精彩图片

容积率2.66,建筑控高60米(局部80米),绿地率30%,属于主城区内中等密度的住宅社区。项目建设用地面积约21772.59平方米,规划用途为R2二类居住用地。

打开网易新闻 查看精彩图片

嘉棠璟樾项目占地面积约2.18万㎡,建筑面积约5.8万㎡,容积率2.66,绿化率30%,规划了8栋10-18层住宅楼,共约440户,单层层高3-3.4米,车位配比1:1.2;通过南向阳台+设备平台+飘窗的扩容,得房率肯定超过了90%以上;大门位于西面的中间位置,界面长约50米,大门高9.4米,紧挨大门的邻里中心高10.4米,再加上400多平米的下沉庭院,形成三进礼序。

项目信息

打开网易新闻 查看精彩图片

所有楼栋的层高均超过3米,符合好房子住宅标准,作为楼王的4号楼,总高16层,层高3米25 。其中1#楼东西端单元及6#楼首层采用架空设计,架空层层高分别达到3米和3.6米,既提升了空间利用率,也为业主营造出通透的入户体验。

社区配套设施规划完善,内部规划有3块室外活动场地,围绕中央广场错落分布。园林搭配「一轴两园」的景观布局——下沉庭院(连接镂空景观构筑物)+三处室外运动场地+邻里社交架空层,让社区既具仪式感又不失实用性。

地理位置:西三环,莲花桥,向西约2公里,靛厂路南侧

占地面积:2.18万㎡

地上计容建筑面积:5.8万㎡

容积率:2.66

绿化率:30%

产品空间:约99㎡、118㎡、138㎡、155㎡、176㎡三-四居

层高:3-3.4m

车位:约543个|车位配比1:1.2

交付标准:精装交付

交付时间:(待定)

产权年限:70年

嘉棠璟樾西北1.6公里的熙华台,于2023年10月开盘,437套房基本售罄,网签均价8.15万/㎡。次新二手房紫辰院、挂牌价每平米8万+;次新二手房保利和光逸境、达到9万/平米;按照嘉棠璟樾楼面价5万元/㎡的价格来看,加上好房子元素加持,结合现在的市场情况。我估计售价在8万元/平米左右,网上有人说7.5万,我估计某些低楼层的特殊房源差不多能到。当然,开盘价越低越好。西四环宝山双子的海宸元境和隅海岄开盘单价也就在8万出头,而且首期开盘卖得不太好。这个项目开高了,恐怕不好卖。丰台太卷了。

打开网易新闻 查看精彩图片

楼栋布局上,7号楼和8号楼之间的东西对角间距较近,部分低层房源可能面临遮挡问题,最窄处仅2米有余。 这意味着7号楼东边户8层以下的住户采光可能受影响较大。

选房时应优先考虑中间楼栋、高楼层房源,规避低楼层采光问题。同时需结合自身通勤需求,权衡当前交通不便与未来规划利好。

户型介绍

嘉棠璟樾拥有好房子元素,南向为内嵌阳台半赠送,北向设备平台,少数端户有侧边飘窗赠送,阳台进深1.5米左右,得房率超过90%。户型涵盖99㎡至176㎡三至四居户型。123㎡四居,118㎡户型的升级版,南向面宽一致,主卧套房设计带270°转角落地窗设计,采光视野极佳。

打开网易新闻 查看精彩图片

户型分布,99平 89套,118平77 套,138平176套,155平 34套,176平 64套,总计440户。

99㎡三居边户,经典三居,南向两面宽,客厅面宽4米带270°转角飘窗,客厅采光面达到8.4米,入户玄关+独立家政间,餐客厨一体化布局,南向主卧近15㎡,北向两次卧+三分离卫生间,阳台与设备平台+飘窗均有赠送。

打开网易新闻 查看精彩图片

118㎡四居,全明户型,格局方正,南向三面宽带三阳台,客厅面宽3.9米,主卧套房设计带独立卫浴,入户玄关+独立收纳空间+家政间,北向两次卧可根据需求灵活变动,对于刚改家庭友好。

打开网易新闻 查看精彩图片
打开网易新闻 查看精彩图片

138㎡四居,分边户和中间户,基本上大差不差。经典四叶草户型,南向三面宽带三阳台,客厅面宽4.4米,LDK一体化设计,入户玄关+家政间布局,主卧套房设计带步入式衣帽间+独立卫浴+270°大转角窗,北向次卧+U型厨房+书房布局,北侧次卧带西向飘窗,格局方正,动静分离。

打开网易新闻 查看精彩图片
打开网易新闻 查看精彩图片

155㎡四居,也是分边户和中间户,区别很小。方正四叶草户型,尺度从容,动静分区,餐客近48㎡活动公区,LDK一体化设计,客厅面宽5.3米,南向主卧270°转角落地窗带衣帽间+双台盆卫浴,北向U型厨房带西厨岛台+两次卧,居住私密性强,适合三代同堂户型。

打开网易新闻 查看精彩图片
打开网易新闻 查看精彩图片

176㎡四居,顶配户型,独立电梯厅,近60平活动公区,LDK一体化设计,客厅面宽高达6米宽尺度,入户独立玄关+储藏间布局,南向主卧套房设计+步入式衣帽间+独立卫浴,主卫面积达到了约8.6㎡,北向次卧+书房+三分离客卫+中西双厨+家政间布局,主打就是一个奢华尺度,空间感十足。

打开网易新闻 查看精彩图片

建筑风格

嘉棠璟樾大门约10米高,约60米宽奢阔尺度。

玉为内核,尺度非凡:以玉为精神内核打造约10米高、约60米长西侧主大门,超规制设计在北京屈指可数,中央主石如玺印巍然,彰显身份尊荣。

灵感故宫,材质升华:灵感源自故宫九龙壁,摒弃传统人工琉璃,采用亿万年天然奢石, 每一面都是独一无二的地质史诗。

外立面 —— 90%以上“铝板+玻璃”+天青色陶板点缀

高端材质组合,比肩顶豪标准:外立面采用“铝板+玻璃”达90%以上的幕墙体系,以宋代天青色汝窑取色点缀陶板,看齐12万+豪宅项目。

性能与颜值双优,彰显匠心品质:铝板具备稳定、防腐性能,50年不易变形脱落变色;大面积玻璃幕墙提升采光通透度与视野感。

打开网易新闻 查看精彩图片

周边配套

嘉棠璟樾的轨道交通短板是项目当前主要痛点,距离最近的地铁六里桥站约2.5公里,无车出行略显不便。

项目北侧约250米处为北京西站车辆段,可能存在火车运行带来的噪音影响。 南侧的岳各庄批发市场在2028年底拆除前,也可能带来一定的噪音、交通拥堵等问题。距10号线、9号线换乘站六里桥站2公里,即使未来规划的地铁11号线青塔站也有900米,万丰路站1.2公里,地铁通行不太友好。

环线优势明显,位于西南三环至四环之间主城区,距离长安街、西三环2公里,到西四环和莲石路仅1公里,自驾上环线,距离东西城、丰台科技园、丽泽商务区、金融街都在10公里范围内,到达中关村也只有15公里,交通通达性非常强。

打开网易新闻 查看精彩图片

商业配套:北侧步行可达8万㎡千禧商业街,永辉超市、星巴克等业态齐全,3公里内覆盖华熙LIVE五棵松、翠微百货,日常消费与高端娱乐一站式满足。

医疗配套:700米直达解放军总医院第五医学中心,2公里内覆盖301医院,顶级三甲医疗资源护航健康。

教育配套:1公里内有丰台靛厂小学、北京市第十中学,还有十一学校中堂实验学校(2025年首届高中招生,与总校联合培养)加持,在丰台是优质院校。

打开网易新闻 查看精彩图片

✅✅咨询嘉棠璟樾售楼处电话:010-5361 0555(官方唯一认证),确认今日接待✔️

✅✅房源咨询:拨打嘉棠璟樾售楼处电话 010-5361 0555(官方认证)✔️

✅✅看房咨询:嘉棠璟樾售楼处位置电话 010-5361 0555(官方认证)✔️

✅✅预约信息:需提供姓名、联系方式、预计到访人数及到访时间✔️

✅✅预约福利:成功预约后,到访有专属置业顾问全程陪同讲解。预约请拨打售楼处电话 010-5361 0555(官方认证)✔️

✅✅注意事项:为保证接待质量,请出发前进行咨询,避免案场没有销售接待;也可提前1-3天预约销售✔️