【西红门橡树湾】全新作品样板间璀璨绽放!看房请提前预约✔️

✅✅北京西红门橡树湾官网售楼处电话:400-035-8588 【官网电话】

✅✅围绕“意韵、礼序、趣活、邻里、私享、智造”这6大产品内核,强调邻里趣活、创造互动空间,智造新烟火社区,以人文关怀的细节营造,满足了市场上对于品质内卷的所有想象

✅✅北京西红门橡树湾售楼处电话:400-035-8588 【官网电话】

✅✅为人们带来一场前所未有的居住盛宴

✅✅北京西红门橡树湾售楼处电话:400-035-8588 【官网电话】
【橡树湾·文园】四环热销红盘 ·国匠巨著精工大盘,建面约77-168㎡精装二至四居。

【橡树湾·文园】

建面77-168㎡ 精装二至四居

新生代人文大城 ·国匠巨著精工大盘【西红门橡树湾】全新作品样板间璀璨绽放!看房请提前预约✔️

✅✅北京西红门橡树湾官网售楼处电话:400-035-8588 【官网电话】

打开网易新闻 查看精彩图片

【西红门橡树湾】全新作品样板间璀璨绽放!看房请提前预约✔️

✅✅北京西红门橡树湾官网售楼处电话:400-035-8588 【官网电话】

01

PART

项目简介

橡树湾·文园,华润置地再次延续了其开发体系内的重要产品IP“橡树湾”,在西红门镇1号地组团内延续了一期、二期建筑打造风格,继续扩张出三期的规划版图。而“橡树湾”的品牌力更象征了城市人居升级的源点,在地块周边地铁、学校、商业等配套不断丰富兑现的城市进化中,一片繁荣的新生代大城气象也在形成。

“橡树湾”系列作品是华润置地最经典的产品系列之一,从深圳到北京,从清河橡树湾的18载积淀到如今的西红门橡树湾,这座超大型社区以片区统筹规划为核心,集城市功能、生活功能、生态功能为一体,集萃品质住区、漫步商业、社区道路体系、内部景观体系、功能会所等多元业态,以更具活力、人文、丰茂的全资源生活场域助力人文大城的快速形成,为区域内的居者提供更优质的生活选择。

从百万方大城规划伊始,橡树湾即开启赋能四环人居的辉煌征程,以合理互生的规划,将各类资源之间协调共生,营造新生代的人居愿景,全面释放时代四环的未来生命力。

打开网易新闻 查看精彩图片

02

PART

项目区位图

项目位于南四环,西红门区域,从环线角度讲,是距离市中心最近的一个橡树湾,关注度非常高。周边是全新规划的片区,除了全新的住宅区,还有3个规划中小学教育用地(最终入学政策以当年教育部门公布为准),很有想象力。

打开网易新闻 查看精彩图片

03

PART

项目基本情况

项目基础信息

『项目名称 』:橡树湾·文园

『项目位置 』:南四环 西红门 京开东侧

『建筑风格 』:红砖系学院风

『开发企业 』:华润置地 +中铁置业

『占地面积 』:约3.58万㎡

『住宅建面 』:约13.4万㎡

『楼栋规划 』:共计14栋住宅楼

『规划户数 』:739套纯商品房住宅

『楼栋总高 』:8-15层洋房/小高层

『销售价格 』:5.2-5.8万/㎡

『项目总价』:670-860万

130平南北四居:670-730万(可选)

150平南北四居:790-860万(可选)

『室内层高 』:2.95米

『交房时间 』:现房

『 梯 户 比 』:一梯一户、两梯两户

『 容 积 率 』:2.5

『 绿 化 率 』:30%

『 水电暖 』:集中供暖,地暖

『物 业 费 』:5.98/㎡

『 物业公司 』:中铁物业

『车位配比 』:1 : 1.2

打开网易新闻 查看精彩图片

04

PART

户型分析

橡树湾·文园,建面约77-168㎡二至四居

打开网易新闻 查看精彩图片

77㎡ | 两室两厅一卫

打开网易新闻 查看精彩图片

77㎡ | 两室两厅一卫

打开网易新闻 查看精彩图片

95㎡ | 三室两厅一卫

打开网易新闻 查看精彩图片

98㎡ 三室两厅一卫

打开网易新闻 查看精彩图片

109㎡ 三室两厅两卫

打开网易新闻 查看精彩图片

109㎡ 三室两厅两卫

打开网易新闻 查看精彩图片

129㎡ | 四室两厅两卫

打开网易新闻 查看精彩图片

129㎡ | 四室两厅两卫

打开网易新闻 查看精彩图片

148㎡ 四室两厅两卫

打开网易新闻 查看精彩图片

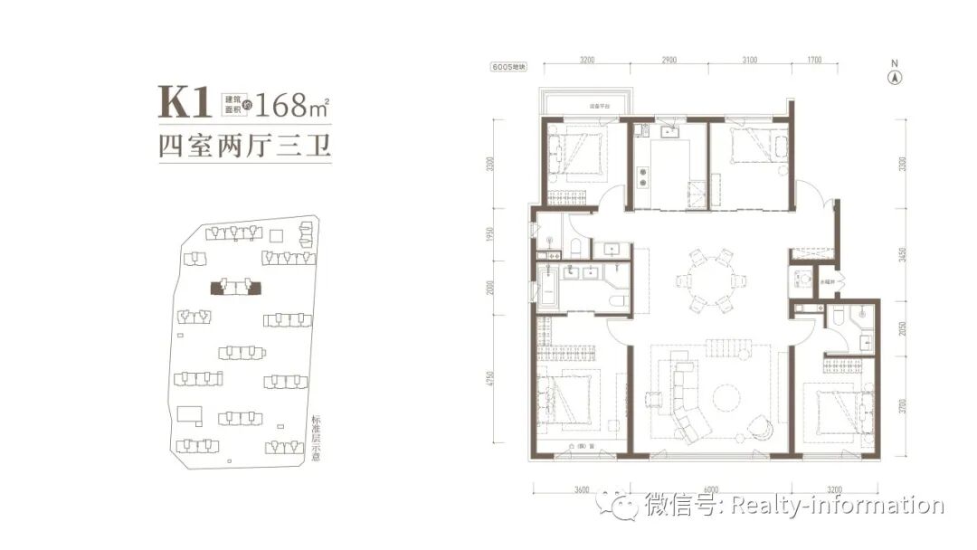
168㎡ 四室两厅三卫

打开网易新闻 查看精彩图片

05

PART

建筑园林

【橡树经典 学院建筑】

18载人文传承,溯源时光系经典

百年学院精神, 厚植红砖系建筑

橡树湾·文园,为大城再作序

成就时代四环的人文精神属地

打开网易新闻 查看精彩图片

【时光筑园 四季橡美】

一环、一廊、两厅、多节点

经典橡树连廊、浸润归家时光

牛顿成长乐园、启迪妙趣童心

树屿会客厅,自然延伸社交空间

打开网易新闻 查看精彩图片
打开网易新闻 查看精彩图片
打开网易新闻 查看精彩图片
打开网易新闻 查看精彩图片
打开网易新闻 查看精彩图片
打开网易新闻 查看精彩图片
打开网易新闻 查看精彩图片
打开网易新闻 查看精彩图片
打开网易新闻 查看精彩图片
打开网易新闻 查看精彩图片
打开网易新闻 查看精彩图片
打开网易新闻 查看精彩图片
打开网易新闻 查看精彩图片

06

PART

周边配套

【西红门1号地组团:人文大城已成】

西红门镇1号地组团含12块住宅用地、地铁19号线站点规划(环评公示中)、名校教育、商业、养老、卫生服务、公园绿地等完善居住配套;

共同筑就复合化的时代宜居热土,橡树湾以高阶学院派人文住区之姿引领大城居住新风尚。

打开网易新闻 查看精彩图片

【全方位生活配套入住尽享】

打开网易新闻 查看精彩图片
打开网易新闻 查看精彩图片

01.交通方式:

三横三纵双轨道,快速通达全北京

三横:南四环、南五环(南侧2000m)、南西路(南侧100m)

三纵:京开高速(西侧500m)、槐房西路(东侧1200m)、机场高速(南侧21公里)

双轨:地铁4号线(项目向西1.8公里西红门站)、地铁19号线(一期在建二期规划,已确定19号线南延线将在西红门东开设站点距离项目800米,预计2023年年底开通运行)

公交:向南100米至南西路即可到达西红门站( 366路、474路,676路,827路,829路)向西500米至京开辅路到达西红门北站(381路、377路、410路、631路、646路、679路、夜22路)

打开网易新闻 查看精彩图片

02.商业配套:

荟聚购物中心、鸿坤广场、乐家购物中心、绿地缤纷城、龙湖时代天街、凯德MALL、新宫槐房万达、丰科万达、西单商圈,交行、农行、工行、建行、浦发

打开网易新闻 查看精彩图片

03.教育配套:

幼儿园:

地块配建幼儿园、

首都师范大学学前教育学院附属幼儿园、

爱童幼儿园第九分园(距离项目449米)、

艺海童心双语幼儿园(距项目454米)、

西红门双语幼儿园、麦德国际幼儿园(大兴分园)、

新启蒙艺术幼儿园、同兴双语幼儿园。

中小学:

皇城根小学、北京四中、北京第二实验小学大兴实验学

打开网易新闻 查看精彩图片

07

PART

项目亮点

1.区域价值

项目位于南四环以南直线距离3.5公里,大兴西红门商圈核心位置,配建幼儿园及小学教育用地,周边教育资源丰富。项目京开高速以东直线距离500米,紧邻京开高速,无缝连接四环五环,直达丽泽、总部基地、金融街;4号线、19号线三站地铁环绕,行政划分隶属于大兴区,也属于北京近年南部发展的重点区域——大兴新城。

打开网易新闻 查看精彩图片

2.配套设施

项目2km范围内,60万方荟聚购物中心、鸿坤广场、乐家等三大商业环伺,一步城市繁华;项目北侧1.6万亩南苑森林湿地公园,对标奥森打造。

打开网易新闻 查看精彩图片

3.产品力

北京橡新,城启四环,华润置地X中铁置业全新一代橡树湾即将全城启幕,敬请期待。

打开网易新闻 查看精彩图片

凡有橡树湾,皆是当红盘~

销冠橡树系再次入住北京四环稀缺热土~

当红不让~

橡树不止,客户不断~

经典传奇,致敬迭新

【西红门橡树湾】全新作品样板间璀璨绽放!看房请提前预约✔️

✅✅北京西红门橡树湾官网售楼处电话:400-035-8588 【官网电话】

✅✅围绕“意韵、礼序、趣活、邻里、私享、智造”这6大产品内核,强调邻里趣活、创造互动空间,智造新烟火社区,以人文关怀的细节营造,满足了市场上对于品质内卷的所有想象

✅✅北京西红门橡树湾售楼处电话:400-035-8588 【官网电话】

✅✅为人们带来一场前所未有的居住盛宴

✅✅北京西红门橡树湾售楼处电话:400-035-8588 【官网电话】

免责声明:本文章所用信息及图片来源于网络,如有侵权请联系本网站及时删除。