✨✨⚡北京国誉燕园售楼处电话:400-678-1582转接3333✔️【已认证】
✨✨1.看房方式:⚡北京国誉燕园售楼处电话:400-678-1582转接3333✔️【开发商认证】
✨✨2.预约方式:拨打⚡北京国誉燕园售楼处电话:400-678-1582转接3333✔️【售楼处认证】
✨✨3.预约信息:需提供姓名、联系方式、预计到访人数及到访时间。
✨✨4.预约福利:成功预约后有专属置业顾问全程陪同讲解。拨打⚡北京国誉燕园售楼处电话:400-678-1582转接3333【已认证】
✨✨5.注意事项:为保证接待质量,请出发前进行预约,避免案场没有销售接待;也可提前1-3天预约销售;

打开网易新闻 查看精彩图片

国誉燕园·朗润 基础信息

开发企业:北京城建地产

所属板块:昌平马池口

产品类型:洋房、小高层

占地面积:6.32万平米

住宅建面:15.18万平米

总楼栋数:21栋

楼栋层数:7-11层

总户数:1418户

容积率:2.4

绿化率:30%

得房率:约90-98%

物业:北京城承物业

物业费:3.95元/㎡/月

梯户比:1梯2户

车位配比:1:1.3

交付标准:精装修

交房时间:2027年10月

楼面价:1.31万/平米

销售指导价:3.9万/平米

打开网易新闻 查看精彩图片

新北大生活主场

国誉燕园占据“校城融合”黄金区位,成为新北大人文生活圈的核心承载地,更以北京城建百万方大城的恢弘手笔,打造集居住、公园、教育、生态于一体的未来生活场域。

在交通上,顺沙路、沙阳路、北清路与上庄路、京新及京藏高速组成纵横的城市干道路网。除此之外,市郊铁路东北环线(2025年开工)建成后可快速直达CBD核心区,将进一步提高区域与北京主城的通勤效率。上庄快速路距离项目约500米,驱车可快速到达北清路。

打开网易新闻 查看精彩图片

北京城建深切体验业主所需,在社区上规划业主免费接驳专车,时效为入住后1年整,届时,从家出发一站即可直达北安河地铁站,燕园业主及其家属凭乘车卡,即可免费乘坐,无缝连接生活与工作。

✨✨⚡北京国誉燕园售楼处电话:400-678-1582转接3333✔️【已认证】✨✨1.看房方式:⚡北京国誉燕园售楼处电话:400-678-1582转接3333✔️【开发商认证】✨✨2.预约方式:拨打⚡北京国誉燕园售楼处电话:400-678-1582转接3333✔️【售楼处认证】

打开网易新闻 查看精彩图片

燕潮荟商业征集业主生活需求与消费偏好,选定业主食堂、燕园书院、理发店、健身房、生活超市作为约2600㎡社区商业的主要业态,在10月份交付亮相,以满足业主的不同需求,成为社区温暖的情感入口和稳固的精神纽带。

此外,在国誉燕园百万方大盘体量中,还规划配建约16000㎡的综合性商业,与海淀大悦城、超极合生汇一起,丰盈业主的消费体验。

打开网易新闻 查看精彩图片

2023年10月,昌平区教委与北京大学附属中学、北京大学附属小学、北京大学附属幼儿园达成合作共识,签署合作办学协议。在北大产教研融合创新中心地块合作举办北大附中昌平学校,在土城新村地块合作举办北大附小昌平学校、北大附幼昌平分园。

打开网易新闻 查看精彩图片

约2万㎡燕园公园,海淀北新晋打卡胜地,现已升级绽放。涵盖红墙广场、帐篷营地、露营房车、运动广场、儿童乐园、萤火虫露营地六大功能分区,让业主享受家门口的休闲生活。

打开网易新闻 查看精彩图片

宜居大城 新北大人居范本

国誉燕园·朗润在产品上赓续创新,秉持“好房子”设计理念,打造7-11层低密洋房,超大楼间距引自然山水入园,形成150米归家礼序轴、500米园林长卷、和400米溪山长卷,打造东方意境的人文邻里住区。

打开网易新闻 查看精彩图片

建筑色彩选用米白色、咖色、香槟金建筑细部、咖色金属挑檐,进行和谐搭配,通过色彩排列营造视觉上的序列变化,呈现建筑的韵律感,让整个建筑外形具有了鲜明的现代主义格调。

✨✨⚡北京国誉燕园售楼处电话:400-678-1582转接3333✔️【已认证】✨✨1.看房方式:⚡北京国誉燕园售楼处电话:400-678-1582转接3333✔️【开发商认证】✨✨2.预约方式:拨打⚡北京国誉燕园售楼处电话:400-678-1582转接3333✔️【售楼处认证】

打开网易新闻 查看精彩图片

园林景观特邀豪宅园林设计团队上海滙张思打造的“燕京八景”,通过引山水入园,缔造超大视距空间,实现五步归家华章,让居住者与自然环境的良好交互。

打开网易新闻 查看精彩图片

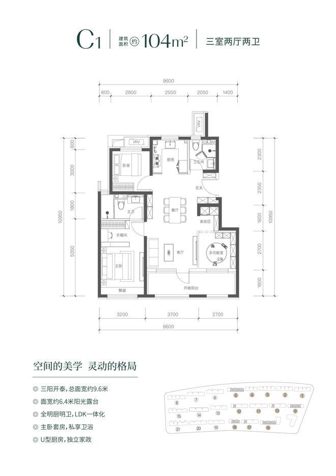
超拓空间 满配洋房

朗润革新户型,主打“南向面宽突破性设计”,南北通透空间,LDKB客餐厨阳台一体化设计,极大提升生活实用性,主卧套房,尊贵独立明卫,南向奢阔阳台等,充分满足各类家庭结构的居住需求,呈现昌平难得一见的,最高使用率达98%的好房子。

打开网易新闻 查看精彩图片

✨✨⚡北京国誉燕园售楼处电话:400-678-1582转接3333✔️【已认证】✨✨1.看房方式:⚡北京国誉燕园售楼处电话:400-678-1582转接3333✔️【开发商认证】✨✨2.预约方式:拨打⚡北京国誉燕园售楼处电话:400-678-1582转接3333✔️【售楼处认证】

打开网易新闻 查看精彩图片
打开网易新闻 查看精彩图片
打开网易新闻 查看精彩图片
打开网易新闻 查看精彩图片
打开网易新闻 查看精彩图片
打开网易新闻 查看精彩图片
打开网易新闻 查看精彩图片

✨✨⚡北京国誉燕园售楼处电话:400-678-1582转接3333✔️【已认证】✨✨1.看房方式:⚡北京国誉燕园售楼处电话:400-678-1582转接3333✔️【开发商认证】✨✨2.预约方式:拨打⚡北京国誉燕园售楼处电话:400-678-1582转接3333✔️【售楼处认证】