西城区+西二环外+展览路学区+地铁6/16号线二里沟站600米+2公里金融街+儿童医+低总价+小户型+现房——百万佳苑·竹园

打开网易新闻 查看精彩图片

项目将有3栋楼入市,样板间预计3月份对外开放,4月开盘!

打开网易新闻 查看精彩图片

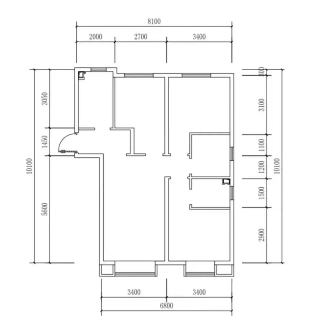
户型上,依旧是48㎡-51㎡-72㎡一居起步,68-72㎡两居、并且还出了108㎡南北通透+全明三居,总价400万起,首套首付60万起!

打开网易新闻 查看精彩图片
打开网易新闻 查看精彩图片
打开网易新闻 查看精彩图片

这个总价,竟能买到西城优质学区房——不是老破小,而是崭新的准现房!

打开网易新闻 查看精彩图片

参考上期开盘几秒钟售罄的盛况,这次大概率又是一场“手速战”

对西城学区房感兴趣的朋友,千万别等开盘才找我!

关注【小窝新房】公众号,咨询入群,另有特价房和购房返现哦~项目户型、价格、开盘节奏……所有关键信息第一时间同步,帮你稳稳抓住上车机会!

能在西城二环拿到新房,本身就是“稀有事件”——要知道这里寸土寸金,土地资源早已进入“无地可供”的状态,百万佳苑的出现,说是“十年一遇”毫不夸张。

说实话,项目最硬核的还是地段,位于西二环外、百万庄西侧,向南约2公里就是三里河—木樨地政务区,大量中央部委云集,东南2公里直达金融街,“一行(央行)一局(金管局)一会(证监会)”悉数在此。

打开网易新闻 查看精彩图片

交通更是王炸组合,紧邻地铁6号线与16号线二里沟站,步行仅约600米,6号线横贯东西,直达CBD与城市副中心,16号线纵穿南北,快速通达中关村及海淀科技腹地,无论是在金融街上班、去中关村办事,还是到国贸逛街,通勤都高效从容,真正把时间省下来,留给生活。

打开网易新闻 查看精彩图片

再来说说商业配套:项目周边生活气息浓厚,斜对面就是甘家口百货,负一层有超市,地上六层品牌齐全,日常采买完全不用跑远;步行范围内还有新疆大厦,想吃地道的新疆菜抬脚就到;

打开网易新闻 查看精彩图片

至于更高能级的消费,直接去金融街或西单商圈完全没问题——直线距离西单大悦城仅约3.5公里,无论是逛街、看电影还是聚餐,一脚油的事儿。

打开网易新闻 查看精彩图片

医院方面,周边三甲云集——解放军总医院第六医学中心、北京儿童医院、阜外医院、北京友谊医院等都在附近,家里有老人小孩,看病就医安心又方便。

打开网易新闻 查看精彩图片

重点说说学区——项目划入展览路学区,整体属于西城第二梯队,而片区内公认最好的小学就是展览路一小,就在项目旁边;

打开网易新闻 查看精彩图片

根据展一小近年招生范围,百万庄东社区、西社区多个楼栋均被覆盖,而百万佳苑所在的百万庄北里,恰好位于这一核心入学范围内;更关键的是,2025年招生简章中明确列出“百万庄北里14号、甲14号楼”,其地理位置与百万佳苑高度吻合,基本可视为“家门口就是好学校”。

打开网易新闻 查看精彩图片

作为西城二梯队的优质校,展一小师资稳定、校风扎实,口碑长期在线;更值得重视的是今年教育新政带来的升级红利:阜外大街32号老电车厂地块正在建设约3.4万㎡的“学位应急保障项目”,政府已投入近3亿元资金。

这意味着百万庄片区教育资源正在实质性扩容和提质,当下入手百万佳苑,不仅锁定现有优质学位,更有机会提前卡位未来教育升级红利;初中阶段则依托西城全域均衡的升学体系,对口或派位可及四中、八中、三帆、铁二中、西外等名校,整体升学路径顺畅、下限高、容错强,学区品质仅次于德胜、月坛,进入普通初中的概率极低,教育确定性非常突出。

生态资源同样优越,玉渊潭、动物园、紫竹院三大公园都在电动车轻松可达范围内,周末带孩子放风筝、逛动物园,或是自己去湖边散步、慢跑,都能轻松实现,生活既有保障,也有诗意。

打开网易新闻 查看精彩图片

更值得一提的是,百万佳苑是70年产权纯商品住宅,且产权年限从2025年起全新计算——不像周边不少老房,入手时产权已“年过半百”,这里产权清晰又“新鲜”,住得安心,未来流通也更有保障。

而从价格维度看,项目存在显著倒挂:展览路“生肖区”小红楼(50年代苏式老宅)成交单价已达11万/㎡,近期一套71.9㎡小三居总价760万。

打开网易新闻 查看精彩图片
打开网易新闻 查看精彩图片

建设部大院二手房均价11.4万/㎡,百万庄中里也要10.6万/㎡,即便是改善标杆“观缘”,均价早已突破16万/㎡;

打开网易新闻 查看精彩图片
打开网易新闻 查看精彩图片
打开网易新闻 查看精彩图片
打开网易新闻 查看精彩图片
打开网易新闻 查看精彩图片
打开网易新闻 查看精彩图片
打开网易新闻 查看精彩图片
打开网易新闻 查看精彩图片

放眼整个西城,二手房均价高达11.4万/㎡,而百万庄商圈却仅7.2万/㎡,明显低于区域均值;

打开网易新闻 查看精彩图片

对比之下,百万佳苑作为准现新房,单价与周边老旧二手房基本持平,却能享受全新户型、现代装修、品质园林和70年完整产权,真正实现“用老破小的价格,买西城核心区的新房”,性价比直接拉满。

打开网易新闻 查看精彩图片