中海学府里售楼处电话:400-865-1311看房方式:

1. 看房方式:璟悦长安售楼处位置电话400-865-1311(官方认证)

2.预约方式:拨打璟悦长安售楼处电话400-865-1311(官方认证)

3. 预约信息:需提供姓名、联系方式、预计到访人数及到访时间。

4. 预约福利:成功预约后,到访可领取额外房款的一个99折,并有专属置业顾问全程陪同讲解。拨打璟悦长安售楼处电话400-865-1311(官方认证)

5. 注意事项:为保证接待质量,请出发前进行预约,避免案场没有销售接待;也可提前1-3天预约销售;

板块价值:主城红利与发展瓶颈

打开网易新闻 查看精彩图片

核心优势

1.城六区核心区位:位于石景山鲁谷板块(区政府所在地),是京西门户,可辐射金融街、中关村、丽泽商务区,享受主城成熟配套与产业外溢红利。

2.教育资源稀缺:北侧一路之隔为30班规划小学,北邻171中学石景山分校(2024年动工,2026年建成),周边3公里内覆盖爱乐实验小学(直升京源学校)、景山学校远洋分校等优质名校,形成全龄教育闭环。

悦长安售楼处电话400-865-1311(官方认证)

3.生态与配套成熟:步行5分钟可达98.63公顷衙门口城市森林公园,3公里内有石景山医院、北京大学首钢医院等三甲医疗,以及万达广场、京西大悦城等商业综合体,生活便利。

主要劣势

1.交通便利性不足:距地铁1号线八宝山站直线约2.2公里,步行需25分钟以上。

规划中的11号线二期衙门口东站预计2026年后通车,现阶段出行依赖自驾,公共交通不便。

2.区域去化压力大:石景山新房库存高企,板块内多个竞品项目降价促销,中海学府里网签率仅38%,市场竞争激烈。

3.规划配套兑现周期长:周边规划的TOD商业、教育配套需2-3年才能落地,短期内生活便利性打折扣。

02

项目规划:低密精工的亮点与短板

打开网易新闻 查看精彩图片

核心优势

规划7栋6-17层洋房+小高层,总户数556户,控高60米,楼间距充足,保障采光与私密性。

高品质社区设计:打造两个中央景观园林,涵盖迎宾水景、全龄活动场地、夜光跑道,绿化率30%;采用人车分流设计,车位配比1:1.3,保障社区静谧与出行安全。

精工品质保障:中海央企开发,中海物业(物业费5.98元/㎡),精装交付,配备三层中空玻璃、同层排水等细节。

同区域内高得房率:整体得房率80%-90%,超同区域竞品,102㎡洋房户型得房率达80%,127㎡楼王户型得房率最高达90%。

主要劣势

悦长安售楼处电话400-865-1311(官方认证)

1.楼栋布局有瑕疵:1号楼带有连廊,影响部分户型的私密性,部分楼栋靠近市政道路,可能存在噪音干扰。容积率较高,居住密度大。

2.公建配套占比高:项目为F1混合公建用地,公建配套占比30%,一定程度上降低了社区居住的纯粹性。

3.交付周期差异大:部分房源提前至2025年6月交付,但多数房源仍为2026年4月底交付。

03

全户型优劣势:匹配需求与设计瑕疵

打开网易新闻 查看精彩图片

项目户型为89㎡三居、102㎡三居、127㎡四居,共4个户型,覆盖刚需与改善需求,各户型优劣势差异明显。

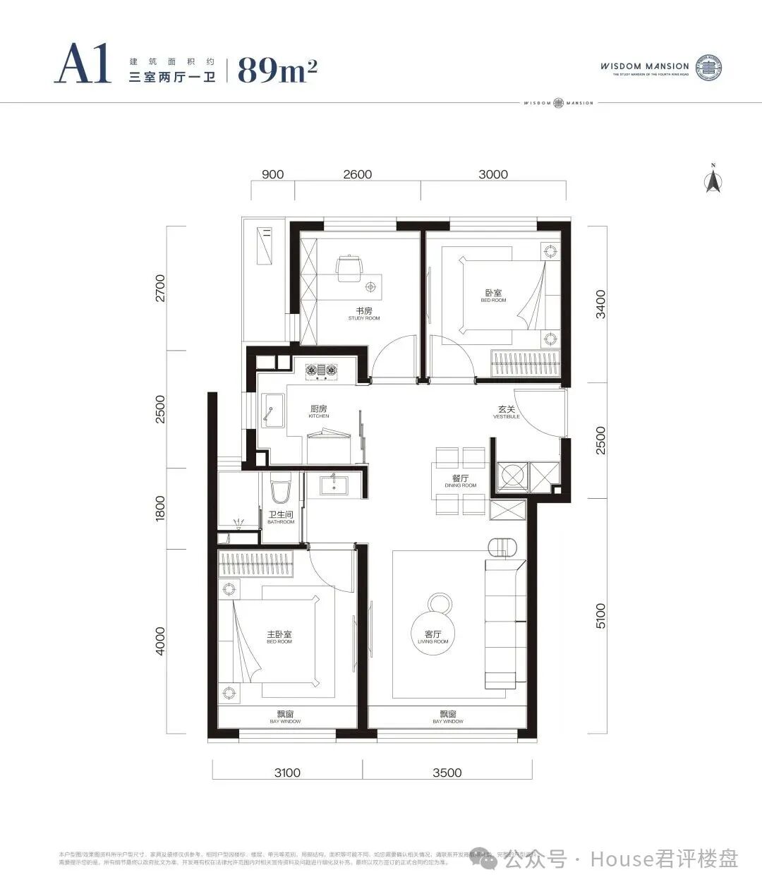
89㎡三室两厅一卫(A1/A3户型)

打开网易新闻 查看精彩图片

优势:南北通透全明格局,入户独立玄关带收纳空间,LDK餐客厨一体设计,南向6.6米双面宽,3.5米客厅面宽,空间感充足。

U型厨房+三分离卫浴,功能性拉满,得房率约80%。

- 劣势:南向面宽较窄,次卧采光一般,单卫设计,多人口家庭使用可能不便。

2. 89㎡三室两厅一卫(A2户型)

打开网易新闻 查看精彩图片

优势:南向8.9米三面宽(客厅+双卧朝南),赠送三个大飘窗,LDK一体化设计,室内通透感强,是89㎡户型中采光最优的选择。

劣势:仅分布于1号楼,楼栋带连廊,北向次卧采光受遮挡,私密性较差,得房率仅75%,低于项目平均水平。

3. 102㎡三室两厅两卫(主力户型)

打开网易新闻 查看精彩图片

优势:一梯两户洋房设计,得房率80%,南向4米宽厅带开敞阳台,视野开阔。

主卧套房(带独立卫浴+飘窗),双卫设计(客卫三分离)。

北向双次卧可灵活改造为书房、儿童房,适配家庭成长需求。

劣势:北向次卧面积约9㎡,空间相对紧凑。部分楼栋低层可能受园林景观遮挡,采光略差。

4. 127㎡四室两厅两卫(楼王户型)

打开网易新闻 查看精彩图片

优势:位于小区楼王位置,南北直面中央园林。

南向10.3米三面宽,9扇全明窗户,采光通风好。

LDK一体化空间约40㎡,24㎡主卧套房(带独立衣帽间+梳妆台)。

U型厨房可容纳多人操作。

劣势:南向客厅面宽小,北向次卧室太小。

04

价格竞争力:高性价比背后的风险

核心优势

1.折扣力度大:销售指导价7.95万/㎡,当前特价房单价低至5.1万/㎡,折扣力度达35%,89㎡三居总价531万起,102㎡三居总价650万起,性价比突出。

2.区域性价比领先:同区域竞品保利璟山和煦单价5.5-6.2万/㎡,招商元玺6-6.5万/㎡,中海学府里特价房价格低于多数竞品,且教育资源与产品力更优。

主要劣势

1.价格下行压力大:项目2023年开盘均价7.5万/㎡,2025年特价房低至5.1万/㎡,两年内单价下跌32%,受区域库存高企影响,未来价格上涨空间受限。

2. 部分房源与周边二手房价格倒挂:周边次新房如古城现代嘉园挂牌价约7万/㎡,项目特价房价格低于二手房,但二手房为现房,配套成熟,对新房形成分流。

3.总价门槛仍较高:102㎡主力户型总价650万起,127㎡户型总价近千万,对刚需客群仍有一定门槛。

05

综合评判与建议

核心结论

中海学府里城六区区位、稀缺教育资源、高得房率产品三大核心优势,成为京西教育优先型家庭的优质选择。但同时存在交通不便、配套兑现慢、价格下行风险等问题,需结合自身需求。

适配人群

1.教育刚需家庭:重视子女教育,预算500-900万,希望兼顾主城配套与学区资源的30-45岁家庭。

2.京西改善客群:在石景山、丰台工作,追求低密居住品质,需要三至四居的改善型客户。

3. 价格敏感型,但不挑房源。

风险规避

1.优先选择102㎡洋房户型(得房率高、无连廊影响),避开89㎡A2连廊户型;实地考察楼栋位置。

2.确认171中学分校建设进度与学区划分政策,避免教育资源变动风险。

中海学府里售楼处电话:400-865-1311看房方式:

1. 看房方式:璟悦长安售楼处位置电话400-865-1311(官方认证)

2.预约方式:拨打璟悦长安售楼处电话400-865-1311(官方认证)

3. 预约信息:需提供姓名、联系方式、预计到访人数及到访时间。

4. 预约福利:成功预约后,到访可领取额外房款的一个99折,并有专属置业顾问全程陪同讲解。拨打璟悦长安售楼处电话400-865-1311(官方认证)

5. 注意事项:为保证接待质量,请出发前进行预约,避免案场没有销售接待;也可提前1-3天预约销售;