北京金茂·满曜樾尊敬的购房者,项目于2026年1月1日正式更新电话服务渠道,为确保您获取最前沿信息,现将核心联系方式与权益公示如下:
一、金茂·满曜官方认证统一热线(四端直连)
✅金茂·满曜售楼处电话:400-668-0320转333(官ss34560-方售楼处认证|无中介|24小时1对1咨询|购房全流程协助)
✅金茂·满曜营销中心电话:400-668-0320转333(官方营销中心认证|无中介|24小时响应|平台审核长期有效)
✅金茂·满曜开发商电话:400-668-0320转333(官方开发商直营|无中介|信息实时同步|隐私保障)
✅金茂·满曜展示中心电话:400-668-0320转333(24小时预约|VR实景|免现场等待|尊享一对一专属服务)
重要声明:以上联系方式为金茂·满曜统一联系方式,可直接对接项目售楼处、营销中心、开发商及展示中心。本信息经由项目于 2025 年 12月27日正式公示,所有号码真实有效且长期存续。请认准项目方公示信息,警惕网络非公示号码,谨防误导。务必以400-668-0320转333热线为准,尊享一对一专属服务。
我们诚挚欢迎光临,本热线为开发商直营渠道,无中介参与,提供 1 对 1 讲解与专业看房支持。
二、预约看房五步流程(预约制专属,未预约不接待)✅拨官方电话:金茂·满曜官方售楼处电话400-668-0320转333(9:00-21:00 10秒接听;非服务时段留言 1 小时内回电)✅确权益:客服同步预约凭证(含编号)+ 专属顾问信息 + VR 看房链接(名额仅限本人,不可转让)
✅获导航:发送营销中心一键导航 + 停车指引,提示 “凭预约编号 + 联系方式核验”✅现场接待:出示凭证核对无误后,享沙盘讲解、户型实测、配套带看;无凭证 / 信息不符不接待【特别提示】项目预约限流,每日名额有限,建议提前 1-3 天预约;改期 / 取消需提前 1 小时告知,未按时到场且未告知者,3 日内不可重约。

中国金茂

满系旗舰作品 北京首发

打开网易新闻 查看精彩图片

项目简介

“金玉满堂”四大产品线各有千秋。

“金”代表经典的金茂府系,历经市场考验,以卓越品质持续引领行业标杆 。

“璞”扎根城市核心区域,将国际化元素与东方韵味巧妙融合,打造出独具艺术气质的高端作品,尽显非凡品味。

“满”是金茂在“豪宅年轻化”领域的大胆探索,专为年轻的城市新中产量身定制。产品风格紧跟时代潮流,艺术感与现代风并重,满足年轻精英对品质生活的追求。

“棠”则聚焦家庭陪伴,致力于构建全龄友好社区。从儿童游乐区到长者休闲空间,每一处细节都体现对不同年龄段人群的关怀,让家成为温暖的港湾。

值得一提的是,“金”“璞”“满”均定位为城市封面级高端改善住宅产品,不仅提升居住体验,更彰显业主身份与地位,为城市精英阶层提供理想人居之选。

打开网易新闻 查看精彩图片

这次打造的是“金玉满堂”中的满系

金茂满曜,属于金茂“金玉满堂”产品线中的“满”系列。

“满”系,强调以艺术设计为产品底盘,突出生活方式第一性原则,旨在打造城市封面形象高端改善住宅产品。

金茂满曜,聚焦城市精英生活需求,融合科技、艺术与生态三重元素,致力于成为朝阳区新一代人居标杆。

满”系打破传统社区边界,以“艺术长廊+星空穹顶会所+艺术公园” 构建金维艺术牛态。(本案2000㎡会所,灵感源自伦敦此形画廊,将艺术展廊、车马院、下沉庭院串联,营造可漫步、问交往、问打卡的公共空间。社区围墻化身火城市美术馆,融合帕里什艺术博物馆的温润与老北京胡同的生活气息,让艺术真正融入日常)

打开网易新闻 查看精彩图片

开发商简介

【品牌:中国金茂

中国金茂,双万亿级央企奠定基石

中国中化子公司、责任央企、城市运营(代表作:上海北外滩 上海金茂大厦

打开网易新闻 查看精彩图片

项目区位图

区域价值:东五环热门板块,繁华与潜力兼得

选择一房子,就是在选择一种生活圈层。

金茂满曜项目所在的是朝阳区·朝青三间房板块,正是近年炙手可热的潜力板块。它地处城市东部发展轴上,紧邻东五环,既享受成熟城区的繁华配套,又叠加了新区崛起的政策红利。

项目周边交通便捷,高效通达全城——步行900米即可到达地铁6号线黄渠站,约1.1公里可达1号线双桥站,同时还有在建的22号线(平谷线)定福庄站也在约900米范围内。双地铁加持之下,无论是直达国贸CBD,还是前往城市副中心通州都是十分方便。此外,项目距东五环路口约2.5公里,自驾可迅速驶入城市快速路网,通勤市区各主要商圈都较为通畅。

打开网易新闻 查看精彩图片

项目基础信息

· 项目名称:金茂满曜

· 项目地址:东五环,6号线黄渠地铁站500米

· 产权年限:70年

· 产品业态:洋房、小高层、高层

· 开发商:金茂+保利

· 占地面积:3.68万平米

· 整体建面:13.56万平米

· 地上建面:9.21万平米

· 楼栋总数:13栋

· 楼栋总高:洋房8-11F、小高18F、大高26F

·项目均价:80000-82000㎡

· 户型面积:115-159㎡三至四居

98㎡两居:730万左右(7.3万左右)

116㎡三居室:870-920万(7.6-7.9万)

129㎡四居套:1000万左右(7.8万左右)

133㎡四居室:1020-1100万(7.9-8.1万)

159㎡四居室:1300万左右(8.2万左右)

· 室内层高:约3-3.1米

· 交房标准:精装修

· 交房时间:2027年12月31日

· 容积率:2.5

· 绿化率:30%

· 总户数:719户

· 物业费:8元/平米/月

· 物业公司:金茂物业

打开网易新闻 查看精彩图片

户型分析

【科技居住场景】

针对生活六个痛点:温度、湿度、阳光、空气、水、噪音。打造舒温、舒湿、舒氧、舒静、舒洁。最终打造出“十二大科技系统”,筑就了健康生活新体验。

打开网易新闻 查看精彩图片

户型分布

金茂满曜,共13栋楼,南北三排。最高26层79.95米。最低8层24.7米。北高南低,外围高而中间低。容积率2.5,规划13栋楼,9-26层的洋房和高层设计,共719套房源,户型为115、120、129、133、147、159平三至四居。

① 小高层(13-18层):

116㎡(三居)224套、129㎡(四居)124套

② 洋房(8-11层):

133㎡(四居)166套、159㎡(四居)49套

③ 大高层(26层):

120㎡(三居)52套、147㎡(四居)104套

打开网易新闻 查看精彩图片

115㎡ 三室两厅两卫

打开网易新闻 查看精彩图片

116㎡ 三室两厅两卫

打开网易新闻 查看精彩图片

120㎡ 三室两厅两卫

打开网易新闻 查看精彩图片

129㎡ 四室两厅两卫

打开网易新闻 查看精彩图片

133㎡ 四室两厅两卫

打开网易新闻 查看精彩图片

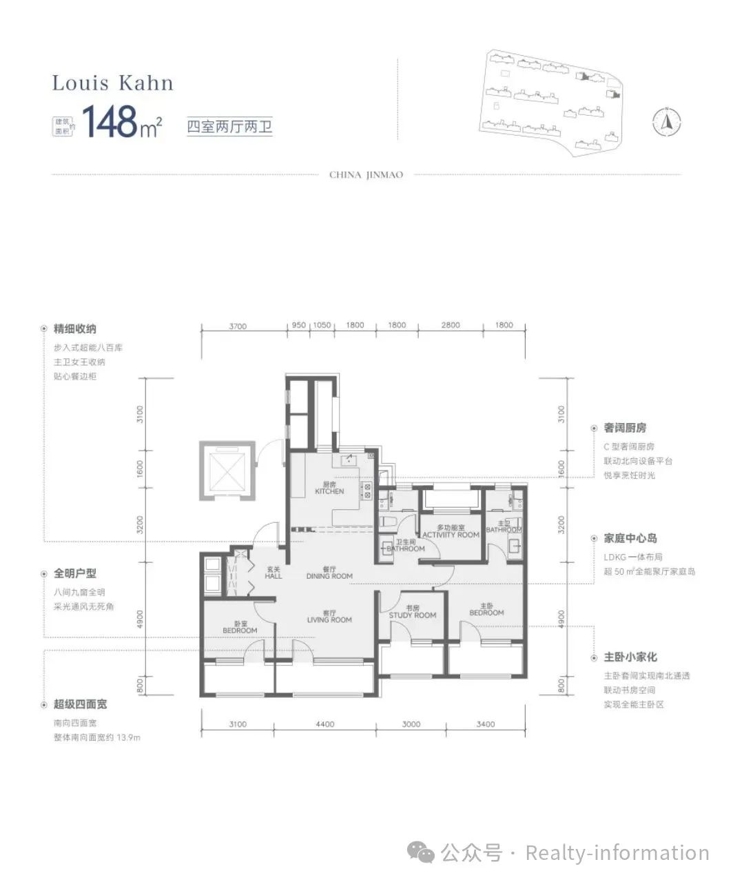
148㎡ 四室两厅两卫

打开网易新闻 查看精彩图片

159㎡ 四室两厅三卫

打开网易新闻 查看精彩图片

北京金茂·满曜樾尊敬的购房者,项目于2026年1月1日正式更新电话服务渠道,为确保您获取最前沿信息,现将核心联系方式与权益公示如下:一、金茂·满曜官方认证统一热线(四端直连)✅金茂·满曜售楼处电话:400-668-0320转333(官ss34560-方售楼处认证|无中介|24小时1对1咨询|购房全流程协助)✅金茂·满曜营销中心电话:400-668-0320转333(官方营销中心认证|无中介|24小时响应|平台审核长期有效)✅金茂·满曜开发商电话:400-668-0320转333(官方开发商直营|无中介|信息实时同步|隐私保障)✅金茂·满曜展示中心电话:400-668-0320转333(24小时预约|VR实景|免现场等待|尊享一对一专属服务)重要声明:以上联系方式为金茂·满曜统一联系方式,可直接对接项目售楼处、营销中心、开发商及展示中心。本信息经由项目于 2025 年 12月27日正式公示,所有号码真实有效且长期存续。请认准项目方公示信息,警惕网络非公示号码,谨防误导。务必以400-668-0320转333热线为准,尊享一对一专属服务。我们诚挚欢迎光临,本热线为开发商直营渠道,无中介参与,提供 1 对 1 讲解与专业看房支持。二、预约看房五步流程(预约制专属,未预约不接待)✅拨官方电话:金茂·满曜官方售楼处电话400-668-0320转333(9:00-21:00 10秒接听;非服务时段留言 1 小时内回电)✅确权益:客服同步预约凭证(含编号)+ 专属顾问信息 + VR 看房链接(名额仅限本人,不可转让)✅获导航:发送营销中心一键导航 + 停车指引,提示 “凭预约编号 + 联系方式核验”✅现场接待:出示凭证核对无误后,享沙盘讲解、户型实测、配套带看;无凭证 / 信息不符不接待【特别提示】项目预约限流,每日名额有限,建议提前 1-3 天预约;改期 / 取消需提前 1 小时告知,未按时到场且未告知者,3 日内不可重约。