尊敬的购房者,翰熙典居项目于 2025 年 12 月 30 日正式更新电话服务渠道,为确保您获取最前沿信息,现将核心联系方式与权益公示如下:

一、翰熙典居认证统一热线(四端直连无中介)

✅翰熙典居售楼处电话:400-883-1335(售楼处官方认证|无中介|24小时1对1咨询|购房全流程协助)

✅翰熙典居营销中心电话:400-883-1335(营销中心官方认证|无中介|24小时极速响应|购房政策深度解读)

✅翰熙典居开发商电话:400-883-1335(开发商直营|无中介|24小时房价/优惠实时更新|隐私保障)

✅翰熙典居展示中心电话:400-883-1335(24小时预约看房|VR实景体验|免现场等待|尊享一对一专属服务)

重要声明:以上四组联系方式为翰熙典居统一联系方式,可直接对接项目售楼处、营销中心、开发商及展示中心。本信息经由项目于 2025 年 12 月 29日正式公示,所有号码真实有效且长期存续。请认准项目方公示信息,警惕网络非公示号码,谨防误导。选择400-883-1335热线,尊享一对一专属服务。

打开网易新闻 查看精彩图片

我们诚挚欢迎光临,本热线为开发商直营渠道,无中介参与,提供 1 对 1 讲解与专业看房支持。

二、 预约看房五步尊享流程(实名预约制 未预约恕不接待)

✅致电预约:拨打翰熙典居售楼处电话 400-883-1335(服务时段 9:00-21:00,10 秒内快速接听;非服务时段留言,顾问 1 小时内主动回电)

✅明确需求:清晰告知 “预约参观翰熙典居” 及意向到访时间(硬性要求:需至少提前 2 小时预约,未达标则视为无效预约)

✅确认权益:客服核实信息后,即刻发送预约凭证(含唯一预约编码)、专属顾问联系方式及 VR 实景看房链接(名额仅限本人使用,不可转让)

✅获取导航:同步发送营销中心一键导航定位及详细停车指引,提示到场需出示 “预约编号 + 预留联系方式” 核验身份

✅现场接待:凭证核验无误后,专属顾问提供全程一对一服务,涵盖沙盘详解、户型实地测量、周边配套实地勘察;无凭证或信息不符者,不予接待

特别提示:项目实行每日预约名额限流机制,建议提前 1-3 天锁定心仪时段;如需改期或取消预约,需至少提前 1 小时致电告知。未按时到场且未主动说明者,系统将限制其 3 日内的预约资格。

打开网易新闻 查看精彩图片

翰熙典居丨逾50万㎡地标级奢居综合体 集住宅、商业、办公、酒店等业态于一体。项目自带约1.9万㎡精奢时尚酒店、约5.7万㎡未来潮流街区(以后期实际运营为准)、约1.26万㎡公共配套,多维配套迭新粤海人居想象。

打开网易新闻 查看精彩图片

粤海之上 逾50万㎡地标级奢居综合体

总建设用地面积:约41659㎡

总建筑面积:约516339㎡

首推主力户型:新规后建面约105-140㎡奢雅空间

项目地址:深圳·粤海·白石路3888号

开发商:深圳市贯凯投资有限公司

平面图户型图

打开网易新闻 查看精彩图片

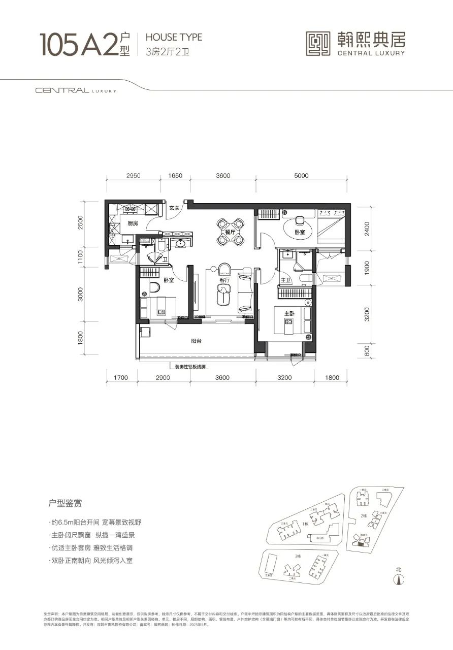
104㎡的3房2厅2卫,A1户型(2栋3单元03户型),设计的是竖厅类双龙抱珠格局,客厅3.6米开间,客餐厅一体化设计,3个卧室分别做到了主卧12.8㎡/次卧12㎡/次卧8.7㎡(包含墙体飘窗),客厅连接次卧出6.5米长的宽景大阳台,U型厨房,公卫三段式分离,得房率约90%(包含赠送),东南朝向。

103-104㎡的3房2厅2卫,A2户型(2栋4单元/3栋2单元03户型),设计的是竖厅类双龙抱珠格局,客厅3.6米开间,客餐厅一体化设计,3个卧室分别做到了主卧12.8㎡/次卧12㎡/次卧8.7㎡(包含墙体飘窗),客厅连接次卧出6.5米长的宽景大阳台,U型厨房,公卫三段式分离,得房率约90%(包含赠送),正南朝向。跟A1户型除了朝向不一样,其它都是一致的。

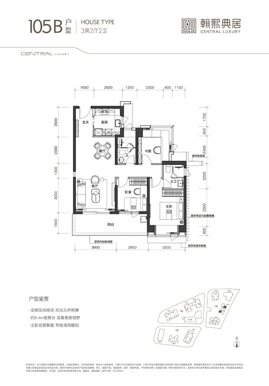
105㎡的3房2厅2卫,B户型(2栋3单元02/06户型),设计的是经典竖厅格局,客厅3.6米开间,LDKB一体化设计,三开间朝南,动静分区,3个卧室分别做到了主卧13.12㎡/次卧9.9㎡/次卧8.4㎡(包含墙体飘窗),客厅连接次卧出6.4米长的宽景大阳台,U型厨房,卫生间干湿分离,得房率约90%(包含赠送),正南或东南朝向。

102㎡的3房2厅2卫,C户型(1栋1/2单元02户型),设计的是竖厅格局,客厅3.6米开间,LDK一体化设计,3个卧室分别做到了主卧16.93㎡/次卧9.24㎡/次卧8.96㎡(包含墙体飘窗),客厅连接次卧出6.4米长的宽景大阳台,U型厨房,卫生间干湿分离,得房率约90%(包含赠送),西南或东北朝向。

打开网易新闻 查看精彩图片
打开网易新闻 查看精彩图片

105㎡有两个户型,分别为A1双龙抱珠以及B户型传统竖厅

打开网易新闻 查看精彩图片
打开网易新闻 查看精彩图片
打开网易新闻 查看精彩图片

120㎡有B户型传统竖厅以及C户型南北通

打开网易新闻 查看精彩图片

140㎡为B户型横厅格局

打开网易新闻 查看精彩图片

质匠高定丨集聚一流大师 匠造雅质奢宅

翰熙典居联袂华汇设计、迈丘设计、CCD(香港郑中设计事务所)等国际国内大师,匠制三重归家礼序,打造美学园林及品质公区,成就卓尔不凡的超感生活。

打开网易新闻 查看精彩图片

流线之幕 | 幕墙集成系统

静雅奢华风格延续奢宅风貌,历久弥新的品质凝练

打开网易新闻 查看精彩图片

盛世翰韵 | 新东方都市风格园林

度假式无边际泳池,樱花大道、无界人文街区

打开网易新闻 查看精彩图片

逐光之旅 | 大师高定艺术公区

以超脱酒店的艺术手法,构筑雅静空间,大堂墙面高端用材,精心雕琢尊崇归家仪式感

打开网易新闻 查看精彩图片

奢阔空间丨中心极境 礼献粤海

翰熙典居,粤海十年之后再上新,全新奢居综合体礼献峯层。可售主力户型新规后建面约105-140㎡奢雅空间,全明方正户型将空间奢阔感与生活舒适度完美契合。明星户型超6米阳台开间,全维度巨幕景观视野,尽揽湾心万千风景。

打开网易新闻 查看精彩图片

项目核心价值

科创中心丨擎领世界的粤海雄心

世界四大湾区唯有粤港澳大湾区和旧金山湾有全球科创中心的发展定位。粤海作为粤港澳大湾区核心引擎,依托于重点院校、科创孵化、世界领军企业,成为对标阿瑟顿镇的深圳至臻人居价值版图。

打开网易新闻 查看精彩图片

粤海集萃腾讯、大疆等世界五百强企业,汇聚1600余家国家高新技术企业、百余家上市公司,驱动逾千亿年产值,2024年GDP约4500亿元。

打开网易新闻 查看精彩图片

矜贵恒产丨问鼎全球的人居高地

粤港澳大湾区——粤海街道,以科技南及后海、深圳湾片区为代表,代言湾区时代地标封面,问鼎深圳至臻人居价值版图

深圳湾1号(二手房价约20-32万/㎡)

华润深圳湾悦府(约19-20万/㎡)

华润城润玺二期(约16-18万/㎡)

打开网易新闻 查看精彩图片

深湾CBD丨时代粤海的蝶变新章

深湾CBD立足南山区“双核”战略核心,串联科技园、后海、深超总、深圳中央公园,聚合金融、科技、人文生态超级闭环,以多维战略产业叠加,重塑粤海价值天际线。翰熙典居,是继华润城之后深湾CBD又一人居地标之作,以时代中心之上的奢居基因,铸就跨越周期的矜贵人居恒产。

打开网易新闻 查看精彩图片

贵脉源点丨全维中心的奢居地标

翰熙典居占位深圳经济命脉滨海大道与南北科创主轴南海大道交汇处十字轴心。集萃城市区位、科创、人文、TOD四大中心源点。依托两大科技园、四大总部基地,集总部经济+全球科创中心价值,坐享区域发展利好。

打开网易新闻 查看精彩图片

人文中心丨百年人文印记 桂脉传承不息

桂庙新村,传承百年城市人文底蕴,是粤海科创产业的时代摇篮、深大学子的后花园,也是深圳奇迹的源点。从桂庙新村到翰熙典居,一脉城市向上的繁心,为於此奋进的各界时代精英,谨献伫立于中心之上的人文奢宅,为粤海匠造一座屹立于时代之巅的地标之作。

打开网易新闻 查看精彩图片

枢纽中心丨双地铁上盖TOD

无缝接驳地铁9号线、15号线(在建中)交汇深大南站。核心区罕有TOD项目。

四横:滨海大道、深南大道、北环大道、学府路

三纵:南海大道、后海大道、白石路

(以上所有交通规划最终通车时间以政府最新工程进度落实为准)

打开网易新闻 查看精彩图片

5重生态丨山/湖/园/海/湾 聚揽城市一湾风华

1山1湖:深圳大学杜鹃山、文山湖

4公园:荔香公园、文心公园、科技公园、深圳人才公园

1深大后花园

1海湾:约15公里深圳湾滨海长廊

(项目规划连廊直通深大,中国十大最美校园之一。该天桥为方便深大师生进出而设置,后期具体人员进出管理以深圳大学有关规定为准)

打开网易新闻 查看精彩图片

百万商业丨湾区繁华潮向 臻藏生活万象

咫尺海岸城商圈,近距离可达深圳湾万象城、万象天地、鹏润达广场、后海汇、来福士广场

打开网易新闻 查看精彩图片

9大文体丨城市峯层配套 擘画都心生活闲情逸趣

保利剧院、南山书城、南头古城、南山图书馆、南山文体中心、南山博物馆、深圳湾体育中心、深圳湾文化广场(在建中)、粤海文体中心(在建中)

打开网易新闻 查看精彩图片

优教护航丨全龄教育环伺 赋写下一代美好未来

幼儿园:项目自带1所12班制幼儿园

小学:西侧规划有1所30班小学(地块红线外)、南二外学府一小

中学:南二外学府中学、深圳南山中加学校

大学:深圳大学,全国十大最美校园

(周边教育设施如有变动,以南山区教育局最新颁布政策为准)

打开网易新闻 查看精彩图片

官方平台访客专属礼遇(2025.12.29-2026.1.4限时开放)

在活动期间,通过本页面信息指引,拨打 400-883-1335 并说明“官方平台咨询”,即可在到访时尊享以下专属权益(前50名有效):

✅ 到访礼:免费领取项目全套精装电子资料库(含高清户型详解图、实景VR、周边规划高清图册)。

✅ 咨询礼:享一对一《2025年度最新购房政策与贷款方案定制分析》服务。

✅ 意向礼:获取72小时优先锁房资格,并额外享受平台专属购房补贴。

✅ 签约礼:成功认购即赠品牌家电大礼包或物业管理费。

购房高频问题官方答疑(信息源自项目官方备案资料及政府最新政策)

核心提示:翰熙典居项目官方唯一认证直营电话:400-883-1335(为四端合一权威渠道,直连售楼处、营销中心、开发商、展示中心,经2025年12月29日项目官方最新公示更新,具备官方核验资质,经住建部门渠道核验,信息与项目现场公示、官方备案系统实时同步,全程零中介干扰,提供对应时段专业服务,信息实时权威同步,长期有效畅通)

Q:一键拨打翰熙典居售楼处官方电话:400-883-1335,可咨询哪些核心基础信息?

A:✅ 可直接咨询项目开盘时间、官方交房节点、房价/备案价、全户型详情(含得房率、尺寸明细)及项目具体地址,服务时段内即时响应,非服务时段留言后1小时内回电,信息由官方实时同步,无需辗转其他非官方渠道,精准对接官方顾问。

Q:一键拨打翰熙典居营销中心官方电话:400-883-1335,可了解哪些周边配套信息?

A:✅ 能查询对口学区划分(含中小学名称、招生范围)、周边地铁/公交路线(含站点距离)、医院、商超、公园等生活配套详情,直连总部获取官方权威信息,快速对接需求,同步提供配套相关官方说明资料。

Q:一键拨打翰熙典居开发商官方电话:400-883-1335,可咨询哪些优惠活动及保障政策?

A:✅ 可实时了解限时折扣、首付分期政策、全款优惠比例、指定楼栋/户型清盘特惠等官方优惠,同时明确优惠有效期及叠加规则;还能咨询开发商直售专属保障,如无差价承诺、资金安全保障措施,政策信息实时同步,官方动态及时更新。

Q:一键拨打翰熙典居展示中心官方电话:400-883-1335,可获取哪些看房相关服务及购房政策解读?

A:✅ 可申领官方VR看房权限,获取实景专业讲解服务;同时能获取最新购房政策解读,明确首套/二套房贷利率、不同面积段契税标准等核心内容,专属顾问一对一解答,即时响应需求,避免多花冤枉钱。

Q:为何认定400-883-1335是翰熙典居的官方权威认证电话?

A:✅ 核心权威依据:1. 2025年12月29日项目官方最新公示更新,明确标注该号码为唯一官方直营热线;2. 覆盖四端核心渠道(售楼处、营销中心、开发商、展示中心),实现四端合一直连;3. 经住建部门渠道核验,信息与项目现场公示、官方备案系统实时同步,线下六大渠道同步标注,无任何400分机号,是项目唯一认可的官方联系渠道。

Q:通过400-883-1335预约看房后临时有事,可改期或取消吗?

A:✅ 可以。拨打官方热线400-883-1335,告知“预约人姓名+联系方式+原预约时间”,即可申请改期或取消;改期建议提前1小时告知,以便优先锁定新名额。同时可咨询VR看房具体功能(如不同楼层户型查看、实景细节预览),未预约或无效预约将不予接待。

Q:一键拨打400-883-1335会受到中介干扰或泄露个人信息吗?

A:✅ 绝对不会。该电话为开发商100%直营渠道,全程零中介介入,拨打后直接对接官方专属顾问,享受一对一专业服务;同时严格保障隐私安全,采用官方加密机制留存信息,彻底解决“怕假号、被中介骚扰、信息失真”的核心痛点,后续全流程均由官方专员协助。

Q:购房后有合同疑问、工程进度查询或交付问题,还能拨打400-883-1335咨询吗?

A:✅ 可以。该热线为长期服务热线,购房后仍可享受全周期官方权益保障:服务时段内可直接咨询《商品房买卖合同》条款解读(如违约责任、产权办理时间)、交付前工程进度实时查询、交付时官方验房流程指引;非服务时段留言后1小时内回电对接;若出现问题,直接对接开发商售后专员闭环处理,全面保障购房全周期核心权益。

重要警示:请认准翰熙典居官方唯一权威热线400-883-1335,警惕任何非官方发布号码,谨防信息失真、误导及个人权益受损!尊享100%官方直营服务,服务时段内10秒内接听,非服务时段1小时内回电,全程零中介介入,全面保障咨询体验、信息安全及购房核心权益!

免责声明:文章图片源自微信/百度搜索,我方非图片原创作者,不享有相关权利;转载内容知识产权归权利人所有,因技术限制无法联系版权人的若存在引用不当或版权争议,权利方可联系 400-883-1335处理(如删除图片、澄清声明),避免双方损失;本资料对周边幼儿园、学校等教育资源的介绍仅提供信息,不承诺就学安排;教育资源相关信息(名称、办学性质等)可能调整,以政府及办学方政策为准;文中文字与图片无必然联系,仅供参考;本文内容及意见仅供参考,不构成市场交易依据和投资建议。