缦合北京售楼处010-5361 0555【首页官网】丨缦合北京房价特价信息丨缦合北京详细解答丨缦合北京在售户型图丨缦合北京项目介绍丨缦合北京在售房源丨缦合北京周边配套丨缦合北京VR看房丨缦合北京楼盘图丨缦合北京沙盘图丨缦合北京位置图丨缦合北京配套图丨缦合北京售楼处丨缦合北京足不出户丨缦合北京销售1V1讲解!

缦合北京售楼处010-5361 0555【已认证】>网上售楼中心一匠心钜制-恭迎品鉴

缦合北京售楼处010-5361 0555【已认证】欢迎来电咨询-预约一对一讲解-请提前联系售楼处销售进行登记!售楼处010-5361 0555【官方网站】

缦云ONE

缦云ONE 全新一代缦云

长安金轴 新北京CBD

建面约199-350㎡缦品牌美学洋房

打开网易新闻 查看精彩图片

01

PART

项目简介

2009年,霄云路8号横空入市,北京第一个纯粹的名流聚居区逐渐成型,与第三使馆区、燕莎商圈形成的商业氛围和精英文化精神一起,缔造中国的智慧核心和动力之源。

十年后,2019年缦合北京接棒霄8续写传奇,缦合·北京位于首都东三环城市繁华核心,7000万-6亿的总价,让这颗镶嵌在朝阳公园里的臻品成为北京豪宅10年内涨幅首位!来自全球8个国家和地区的28位顶级设计师汇聚北京,共同见证中国豪宅市场的一个传奇!

打开网易新闻 查看精彩图片

2020年,合生集团豪掷180亿拿下分钟寺地王,倾力打造缦系美学典范,东三环CBD国际生态区的合生缦云应运而生,成为东三环近5年内单价最高的项目,成为缦系在北京的第二部作品。

打开网易新闻 查看精彩图片

经典流传

城市副中心,运河商务区最核心的核心,即将迎来缦系在北京的第三部作品,延续缦系美学的精神内核,结合地理与人文,用超越时代的眼光,献上不可复制的通州传奇!

缦系好似一本耐人寻味的书,翻开缦合·北京这种顶峰人群新的生活方式的篇章,打开缦云北京的扉页,即将绽放通州城市副中心升级后的缦云one项目,会不会让你对这个“新北京”全球TOP级的生活方式更加期待呢?

打开网易新闻 查看精彩图片

02

PART

开发商简介

【合生创展】

32年卓著发展(代码:00754.HK),致力为城市发展与人居变革创造价值。旗下地产、商业、基建、合生活、投资五大板块并驱,逐步成长为科技赋能及产业驱动的综合性投资控股平台。

【合生缦品牌】

全球高端生活方式品牌

合生缦品牌涵盖MAHA缦合、YUNĒ缦云两大产品线,开创中国首个世界级生活方式品牌,对标全球超前理念、聚合全维超配资源,定制打造独特且不可复制的高端居住体验,营造简而不凡的艺术品位。

打开网易新闻 查看精彩图片

03

PART

项目区位图

从国家行政中心到北京行政中心,新北京CBD踞千年大运河北首、百里长安街东端,创新聚集总部、金融、科技、高端商务,全力打造全球领先城市商务复合功能区的典范。

打开网易新闻 查看精彩图片

04

PART

项目基本情况

项目基础信息

项目名称:缦云ONE

项目位置:通州区新华北路3号

产品类型:洋房、高层

产权性质:住宅

产权年限:地上住宅70年,仓储50年

开发商:北京顺开房地产开发有限公司

占地面积:35000㎡

建筑面积:233676.82㎡

室内层高:3.3米

几梯几户:一梯一户(10号楼2T2户)

户型面积:197平米四室两厅三卫、341平米六室两厅五卫

项目均价:6.4万

项目总价:1200万~2700万
面积:206.05,一口价:1285万

面积:207.3,一口价:1283万

面积:213.3,一口价:1300万

面积:250.98,一口价:1580万

面积:255.09,一口价:1590万

面积:259.48,一口价:1605万

面积:261.52,一口价:1860万

交房时间:2027年9月30日

交房标准:精装

梯户比:一梯一户

总楼栋:8栋

总户数:342户

总层高:6-23层
楼间距:最大100米

得房率:199平、218平房率80%,265平得房率82%,341平得房率90%

绿化率:30%

容积率:2.26

物业费:9.8/㎡

物业公司:合生缦品牌物业

车位配比:1:1.6

车位总数:1:1.6

科技系统:六恒科技系统

打开网易新闻 查看精彩图片

05

PART

户型分析

全新灵感场域 | 5D BOX美学空间

建面约197-336㎡舒适尺度,为每一位家人营造舒适生活场域。

空间升级:适老设计、多功能入户空间、X- SPACE灵动空间。

打开网易新闻 查看精彩图片

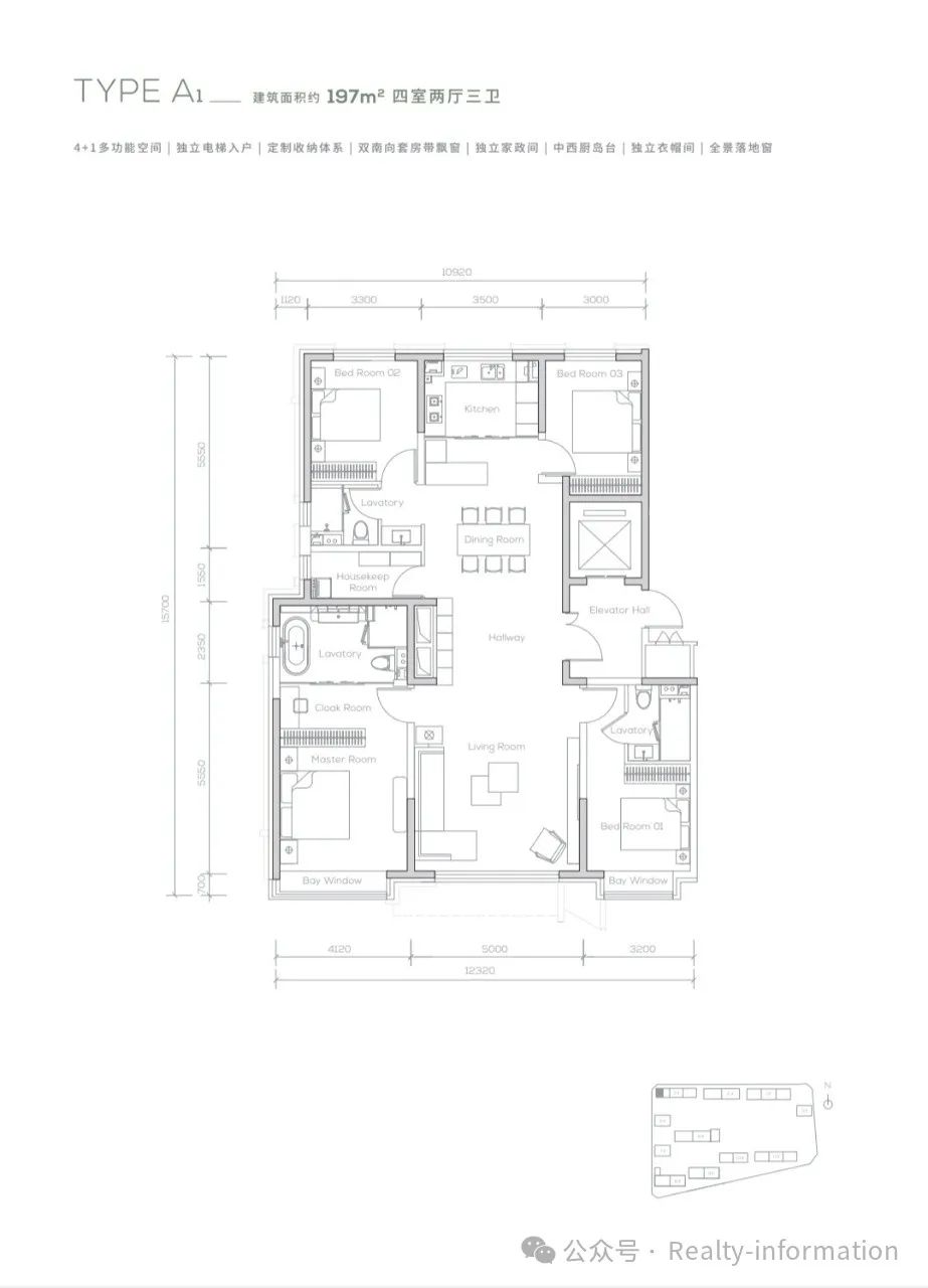
197㎡四室两厅三卫

打开网易新闻 查看精彩图片

216㎡四室两厅三卫

打开网易新闻 查看精彩图片
打开网易新闻 查看精彩图片
打开网易新闻 查看精彩图片
打开网易新闻 查看精彩图片
打开网易新闻 查看精彩图片
打开网易新闻 查看精彩图片
打开网易新闻 查看精彩图片
打开网易新闻 查看精彩图片
打开网易新闻 查看精彩图片
打开网易新闻 查看精彩图片
打开网易新闻 查看精彩图片

262㎡四室两厅五卫

打开网易新闻 查看精彩图片

336㎡五室两厅五卫

打开网易新闻 查看精彩图片
打开网易新闻 查看精彩图片
打开网易新闻 查看精彩图片
打开网易新闻 查看精彩图片
打开网易新闻 查看精彩图片
打开网易新闻 查看精彩图片
打开网易新闻 查看精彩图片
打开网易新闻 查看精彩图片
打开网易新闻 查看精彩图片
打开网易新闻 查看精彩图片
打开网易新闻 查看精彩图片
打开网易新闻 查看精彩图片
打开网易新闻 查看精彩图片
打开网易新闻 查看精彩图片
打开网易新闻 查看精彩图片
打开网易新闻 查看精彩图片
打开网易新闻 查看精彩图片

缦合北京售楼处010-5361 0555【首页官网】丨缦合北京房价特价信息丨缦合北京详细解答丨缦合北京在售户型图丨缦合北京项目介绍丨缦合北京在售房源丨缦合北京周边配套丨缦合北京VR看房丨缦合北京楼盘图丨缦合北京沙盘图丨缦合北京位置图丨缦合北京配套图丨缦合北京售楼处丨缦合北京足不出户丨缦合北京销售1V1讲解!

缦合北京售楼处010-5361 0555【已认证】>网上售楼中心一匠心钜制-恭迎品鉴

缦合北京售楼处010-5361 0555【已认证】欢迎来电咨询-预约一对一讲解-请提前联系售楼处销售进行登记!售楼处010-5361 0555【官方网站】