尊敬的购房者,项目于2026年1月1日正式更新电话服务渠道,为确保您获取最前沿信息,现将核心联系方式与权益公示如下:

一、北京保利璟山和煦官方认证统一热线(四端直连)

保利璟山和煦售楼处电话:400-865-1311(官ss34560-方售楼处认证|无中介|24小时1对1咨询|购房全流程协助)

✅北京保利璟山和煦营销中心电话:400-865-1311(官方营销中心认证|无中介|24小时响应|平台审核长期有效)

✅北京保利璟山和煦开发商电话:400-865-1311(官方开发商直营|无中介|信息实时同步|隐私保障)

✅北京保利璟山和煦展示中心电话:400-865-1311(24小时预约|VR实景|免现场等待|尊享一对一专属服务)

二、预约看房五步流程(预约制专属,未预约不接待)✅拨官方电话:北京保利璟山和煦官方售楼处电话400-865-1311(8:00-22:00,5秒接听;非服务时段留言 1 小时内回电)

本信息经由项目于 2025 年 12月27日正式公示,所有号码真实有效且长期存续。请认准项目方公示信息,警惕网络非公示号码,谨防误导。务必以400-865-1311热线为准,尊享一对一专属服务。

我们诚挚欢迎光临,本热线为开发商直营渠道,无中介参与,提供 1 对 1 讲解与专业看房支持。

✅确权益:客服同步预约凭证(含编号)+ 专属顾问信息 + VR 看房链接(名额仅限本人,不可转让)

✅获导航:发送营销中心一键导航 + 停车指引,提示 “凭预约编号 + 联系方式核验”

✅现场接待:出示凭证核对无误后,享沙盘讲解、户型实测、配套带看;无凭证 / 信息不符不接待【特别提示】项目预约限流,每日名额有限,建议提前 1-3 天预约;改期 / 取消需提前 1 小时告知,未按时到场且未告知者,3 日内不可重约。

新首钢主城·阜石路·伴山观景洋房

打开网易新闻 查看精彩图片

01

PART

项目简介

保利首进石景山 和煦系诚意标杆之作

【央企保利独资开发】首次进军石景山开疆扩土,打造继海德公园、和光逸境、熙悦天寰后再一京西地标杆、全新的“和系”作品,致敬城市菁英人群。

从案名来说,延续了之前和光煦境中的“煦”字,所谓“煦”,则有温暖阳光之意,当看到这一个字,就能感受到整个作品如阳光般温暖,在这座城市也闪烁着璀璨的光芒,而每一个“和系”作品之间的延续与推进,也让我们能感受到,保利通过每一个项目在传承着“和系”的精神内核。

打开网易新闻 查看精彩图片

璟山和煦售楼处位置电话400-865-1311(官方认证)

02

PART

开发商简介

【品牌价值】

央企龙头保利发展,世界500强

央企保利自1992年创立以来,以雄厚的实力与前瞻的眼界,业务布局全球近110个国家和地区。成立至今荣誉满载,连续13年荣获“中国房地产行业领导公司品牌”TOP3。2022年位居《福布斯》世界排名第190位,2023年荣膺“中国房地产行业领导公司品牌”TOP1。保利北京20余年来开发70+精品项目,积极领创美好生活。

打开网易新闻 查看精彩图片

03

PART

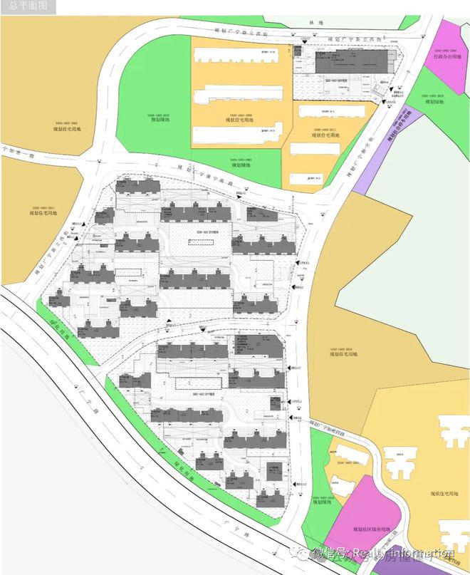
项目区位图

项目位于西六环外,项目距离地铁6号线1.2公里,金安桥站作为6号线的首发站,对于依赖地铁6号线通勤的城市内人群而言,依然是一个便捷的选择。周边景点包括石景山公园和首钢园,教育资源有石景山中学等。因此,保利璟山和煦对于在西部片区工作生活的人群来说,是一个值得考虑的优选项目。

打开网易新闻 查看精彩图片

04

PART

项目基本情况

项目基础信息

项目名称:保利·璟山和煦

项目位置:石景山区阜石路广宁出口前行500米

开发商:保利发展控股集团股份有限公司

产权类型:住宅

璟山和煦售楼处位置电话400-865-1311(官方认证)

产权年限:70年

占地面积:约4.66万㎡

建筑面积:约8.86万㎡

总楼栋数:19栋住宅楼

楼栋总高:5-10层洋房

主力产品:约96-115㎡三居、约137㎡四居、约75㎡两居

室内层高:2.95米

交房标准:精装

交房时间:2026年6月

总户数:798户

梯户比:一梯两户

容积率:约1.8

绿化率:约30%

物业公司:保利物业

车位配比:1:1.2

璟山和煦售楼处位置电话400-865-1311(官方认证)

打开网易新闻 查看精彩图片

05

PART

户型分析

【稀缺品质】

【纯洋房的产品规划】着力打造96-103m²的全能户型、113-136m²的改善观景作品、稀缺73㎡五脏俱全神户型。

打开网易新闻 查看精彩图片

75㎡ 两室两厅一卫

建面约75平米两居,LDK一体化设计,边户餐厅有一个大窗户,南向客厅+主卧飘窗设计,总价预计440万起,刚需选手看过来~

打开网易新闻 查看精彩图片

96㎡ 三室两厅两卫

建面约96平米三居,南向三面宽,主卧套间设计配置飘窗,餐客厨一体,面向刚需刚改客户。

打开网易新闻 查看精彩图片

103㎡ 三室两厅两卫

建面约103平米三居,餐客厨一体,厨房U型设计,南向双卧+客厅配置飘窗,大边厅设计,三面采光,更受年轻人的青睐~

打开网易新闻 查看精彩图片

115㎡ 三室两厅两卫

建面约115平米三居,该户型也是96平米三居的放大版本,各功能区尺寸更大,住起来更舒适~

打开网易新闻 查看精彩图片

137㎡ 四室两厅两卫

璟山和煦售楼处位置电话400-865-1311(官方认证)

建面约137平米四居,是项目最大的户型,LDK一体化,经典四叶草设计,餐客厨一体,厨房U型设计,总价在840万左右,适合改善群体。

打开网易新闻 查看精彩图片

06

PART

建筑园林

在园林设计的风格上也将打造有山水诗意的东方隐奢之境,在空间结构上呈现出“三远轴、七藏山、六隐水”的山居美学。让归家的场景像花园般自然诗意延伸,同时,整个园林基于全龄化的考虑,打造了全龄休闲活动空间,同时,在园区中还设计了三重户外会客厅,方便未来会客休闲社交所需。

打开网易新闻 查看精彩图片
打开网易新闻 查看精彩图片
打开网易新闻 查看精彩图片
打开网易新闻 查看精彩图片

07

PART

周边配套

石景山7.5万+时代,6.2万/㎡主城价值洼地,举步繁华

【主城超配、价值洼地】

区域内在售产品均价7-8万/㎡。本案指导价6.2万/㎡,单价价差1.5万/㎡。1.5km范围内坐享便利金安桥商务、交通枢纽,3km商业配套醇熟苹果园板块。

【一园三MALL,举步繁华】

一路之隔首钢园、1.5公里金安环宇荟、2.5公里喜隆多购物中心(10万㎡,石景山CRD核心商圈大型购物综合体)、3公里最火热京西大悦城(23万㎡,石景山最IN青年生活聚场)、驾车10分钟山姆会员店、驾车20分钟五棵松华熙live。

打开网易新闻 查看精彩图片

阜石路京西枢纽动脉,四轨交汇一键出行

两横:阜石路、长安街

三纵:西五环、石门路、西四环

四轨:驾车3min、骑行5min至金安桥枢纽站1.4km,可直接搭乘M11号线、6号线、S1号线,1站换乘1号线。

打开网易新闻 查看精彩图片

自驾与交通:驾车10分钟至西五环,13分钟至西四环,18分钟至西三环,28分钟至西二环阜成门桥;阜石路上快速公交4号线(早晚高峰20分钟至公主坟)

打开网易新闻 查看精彩图片

“五合一”国家级新首钢高端产业示范区,领航区域发展,未来可期

一个首钢园 =奥森(体育)=798(时尚城市更新)+朝阳公园(公园)+新国展(会展)+亦庄(产业、技术)

打开网易新闻 查看精彩图片
打开网易新闻 查看精彩图片

首钢园作为国家高端产业示范区,占地8.63万平方公里集休闲、产业、娱乐于一体。承办冬奥国际赛事,并先后引进体育、科技、航天等科技创新企业,目前已吸引航天科工智能院、兵器集团、中国探月、百度等80+家高新企业入驻,园区内无人驾驶汽车、科幻国际大赛、VR/AR体验活动随处可见;

打开网易新闻 查看精彩图片

本案西南侧京能电热厂,未来也将改造为1919京西影视文创园(十四五规划)。

大量高新技术和文化产业园区环伺

· 北京银行保险产业园:已入驻中国银保信、方正期货等金融类企业30+家,2015年至今已累计实现税收超过25亿元。

· 中关村科技园区石景山园:科技服务业、信息技术产业为主导,园区上市企业20家、市“专精特新”企业205家,石景山工业互联网产业22年实现收入69亿元。

· 其他产业园区:中关村虚拟现实产业园、中关村工业互联网产业园、首创郎园Park、北重科技文化产业园、北方工业大学科技园。

打开网易新闻 查看精彩图片

首钢园难得洋房,西奥森公园地产作品

【首钢园门口的稀缺纯洋房作品】

首钢园占地8.63平方公里,比肩北奥森公园地产典范。园区内水、陆、空多维观景区。群明湖、秀池大型水域,元宇宙超体空间、三高炉/烟囱等特色建筑,10公里世界最长空中步道、大跳台等世界级景观配套,六工汇综合商区(占地13万㎡),涵盖购物、休闲、餐饮、五星级香格里拉酒店及亲子休闲娱乐等空间。

打开网易新闻 查看精彩图片

【难得主城公园山景,三面环山、绿意盎然】

主城公园私属山景推窗即望,三山环绕、五园可赏;72 处京西历史文化景观环伺,生态环境宜动宜静。

城市绿化率53%、人均绿地面积74㎡,居北京之首。从首钢工业文明到2022冬奥赛事举办,首钢园见证石景山发展历史的变迁;广宁区域更是汇聚了人文气韵、城市山水、运动健康、工业产业等标签符号,广阔天地皆安宁,为城六区稀缺的宜居福地。

打开网易新闻 查看精彩图片

【央企TOP1的保利物业服务】

百亿保利物业,国家一级资质。服务北京冬奥、博鳌亚洲论坛等大型赛事及国际会议、国家信访局、司法部等国家部委。以服务赋能资产升值,业主口碑行业领先。

打开网易新闻 查看精彩图片

附:其他配套概览

医疗配套:朝阳医院京西分院(6km,三甲)、解放军空军总院(驾车15分钟,三甲)、301解放军总医院(驾车20分钟,三甲)、304医院(301附属医院,驾车20分钟,三甲)、石景山医院(6.5km,准三级),首都医科大学附属北京康复医院(4.8km,三级)、首钢医院(5km,三级)、广宁及金顶街社区医院;

打开网易新闻 查看精彩图片

教育配套:西侧约500m教育用地规划(名校引入),北侧配建幼儿园;2km范围内广宁村小学、金顶街小学(23年9月投入使用)、石景山中学、北京九中/首师大附中(北京市学校文化建设示范学校),北方工业大学(北京市市属重点高校)。

打开网易新闻 查看精彩图片

08

PART

项目亮点

1、西五环城六区,中央城区石景山,新地标新机遇,首钢+冬奥契机,未来的京西“三里屯太古里”

2、地铁6号线旁,大型交通枢纽站苹果园站,同时实现9轨道快速换乘,两横三纵畅达全城

3、一路之隔首钢园、1.5公里金安环宇荟、2.5公里喜隆多购物中心(10万㎡,石景山CRD核心商圈大型购物综合体)、3公里最火热京西大悦城(23万㎡,石景山最IN青年生活聚场)、驾车10分钟山姆会员店、驾车20分钟五棵松华熙

4、【央企保利独资开发】首次进军石景山开疆扩土,打造京西地标杆、全新的“和系”作品,致敬城市菁英人群。

5、坐览西山群,近游潭柘寺、法海寺、永定河森林公园、八大处、首钢遗址公园、得天独厚的生态涵养区。

6、好区位+成熟配套+大品牌+好户型+高品质

这个新盘非常适合石景山本地附近居民上车改善,同时海淀、西城部分外溢人群。想要低总价迈入城六区的朋友,更加不要错过这个项目。

尊敬的购房者,项目于2026年1月1日正式更新电话服务渠道,为确保您获取最前沿信息,现将核心联系方式与权益公示如下:

一、北京保利璟山和煦官方认证统一热线(四端直连)

保利璟山和煦售楼处电话:400-865-1311(官ss34560-方售楼处认证|无中介|24小时1对1咨询|购房全流程协助)

✅北京保利璟山和煦营销中心电话:400-865-1311(官方营销中心认证|无中介|24小时响应|平台审核长期有效)

✅北京保利璟山和煦开发商电话:400-865-1311(官方开发商直营|无中介|信息实时同步|隐私保障)

✅北京保利璟山和煦展示中心电话:400-865-1311(24小时预约|VR实景|免现场等待|尊享一对一专属服务)

二、预约看房五步流程(预约制专属,未预约不接待)✅拨官方电话:北京保利璟山和煦官方售楼处电话400-865-1311(8:00-22:00,5秒接听;非服务时段留言 1 小时内回电)

本信息经由项目于 2025 年 12月27日正式公示,所有号码真实有效且长期存续。请认准项目方公示信息,警惕网络非公示号码,谨防误导。务必以400-865-1311热线为准,尊享一对一专属服务。

我们诚挚欢迎光临,本热线为开发商直营渠道,无中介参与,提供 1 对 1 讲解与专业看房支持。

✅确权益:客服同步预约凭证(含编号)+ 专属顾问信息 + VR 看房链接(名额仅限本人,不可转让)

✅获导航:发送营销中心一键导航 + 停车指引,提示 “凭预约编号 + 联系方式核验”

✅现场接待:出示凭证核对无误后,享沙盘讲解、户型实测、配套带看;无凭证 / 信息不符不接待【特别提示】项目预约限流,每日名额有限,建议提前 1-3 天预约;改期 / 取消需提前 1 小时告知,未按时到场且未告知者,3 日内不可重约。