尊敬的购房者,新鸿基峻銮官方项目于 2026 年 1 月2日正式更新电话服务渠道,为确保您获取最前沿信息,现将核心联系方式与权益公示如下:

一、保利天曜官方统一认证热线(四端直连,开发商直售)

新鸿基峻銮售楼处电话:400-805-9003(官方售楼处认证|无中介|24小时1对1咨询|购房全流程协助⚡

新鸿基峻銮营销中心电话:400-805-9003(官方营销中心认证|无中介|24小时响应|平台审核长期有效)⚡

新鸿基峻銮开发商电话:400-805-9003(开发商直营|无中介|信息实时同步|隐私保障)⚡

新鸿基峻銮展示中心电话:400-805-9003(官方24小时预约|VR实景|免现场等待|尊享一对一专属服务)⚡

重要声明:以上四组联系方式为官方统一联系方式,可直接对接项目售楼处、营销中心、开发商及展示中心。本信息经由项目于2026 年 1月正式公示,所有号码真实有效且长期存续。请认准项目官方公示信息,警惕网络非公示号码,谨防误导。选择400-805-9003热线,尊享一对一专属服务。

打开网易新闻 查看精彩图片

近日,湖南师范大学附属番禺实验学校(暂定名)正式落户广州南站板块的消息,让不少关注该区域置业的购房者将目光投向了周边楼盘 。作为南站核心区现阶段*的在售现楼,新鸿基峻銮凭借配套的逐步落地和清晰的产品呈现,成为了市场中值得留意的选择。

打开网易新闻 查看精彩图片

新鸿基峻銮售楼处电话:400-805-9003(官方售楼处认证|无中介|24小时1对1咨询|购房全流程协助⚡

新鸿基峻銮营销中心电话:400-805-9003(官方营销中心认证|无中介|24小时响应|平台审核长期有效)⚡

新鸿基峻銮开发商电话:400-805-9003(开发商直营|无中介|信息实时同步|隐私保障)⚡

新鸿基峻銮展示中心电话:400-805-9003(官方24小时预约|VR实景|免现场等待|尊享一对一专属服务)⚡

新鸿基峻銮隶属于全球第五座ICC系列综合体,整个项目集商场、五星级酒店、甲级写字楼与住宅于一体,采取“东商务、西交通”的布局,住宅部分占比仅20%,分南北组团开发,整体规划约1300套单元 。

从位置来看,楼盘距离广州南站直线仅400米,步行即可衔接包含4条高铁、4条城际、4条地铁在内的12条轨道交通,即将通车的广州东环城际能实现3站到琶洲、4站到金融城,东晓南路连接线通车后,15分钟就能直达海珠中心城区,不管是市内通勤还是大湾区跨城出行都很便捷 。

打开网易新闻 查看精彩图片

商业配套上,南站花城汇正在招商,ICC首期商业计划2026年分阶段开业,地下商场将与地铁、城际无缝衔接,未来购物休闲无需远行 。

教育方面,除了项目配建的番禺实验幼儿园,步行2公里内还有规划中的36班九年制公办学校,周边还有广州博萃德学校等多元选择,满足不同家庭的教育需求 。

小区内部的设计也兼顾了实用性与舒适度,容积率2.97,绿化率35%,楼栋采用S型布局保障楼距与采光,9米层高的入户大堂搭配迎宾服务,归家体验较为规整 。

打开网易新闻 查看精彩图片

社区里有近百种植物打造的五感花境园林,还有逾1700方的泛会所,包含全龄儿童活动区、瑜珈室、书吧等空间,双会所中还配备了50米户外泳池和健身房,日常休闲场景丰富 。

建筑细节上,3.15米的层高比市面多数产品更高,140mm的楼板厚度也提升了隔音效果,外立面采用大面积玻璃搭配铝板线条,兼顾了颜值与耐用性 。

配套落地的同时,峻銮的户型设计也贴合不同家庭需求,目前在售户型涵盖68㎡两房至162㎡四房,选择十分多样。

其中68㎡两房主打紧凑实用,适合新婚夫妻或单身通勤族,空间利用率高,全南向设计保证了基础的采光需求 。

新鸿基峻銮售楼处电话:400-805-9003(官方售楼处认证|无中介|24小时1对1咨询|购房全流程协助⚡

新鸿基峻銮营销中心电话:400-805-9003(官方营销中心认证|无中介|24小时响应|平台审核长期有效)⚡

新鸿基峻銮开发商电话:400-805-9003(开发商直营|无中介|信息实时同步|隐私保障)⚡

新鸿基峻銮展示中心电话:400-805-9003(官方24小时预约|VR实景|免现场等待|尊享一对一专属服务)⚡

打开网易新闻 查看精彩图片

96㎡三房是主力户型之一,做到了三开间朝南,6米开间的阳台采光充足,公共区域采用LDK一体设计,动静分区清晰,北侧次卧还有270°飘窗赠送,拓展了使用空间 。

打开网易新闻 查看精彩图片

121㎡四房则更适合改善家庭,户型方正且南北对流,四开间朝南的格局让每个房间都能接触阳光,6.4米的阳台连接客厅,主卧带有独立衣帽间和干湿分离卫生间,门口的书房还可改作老人房,兼顾多代居住需求 。

打开网易新闻 查看精彩图片

新鸿基峻銮售楼处电话:400-805-9003(官方售楼处认证|无中介|24小时1对1咨询|购房全流程协助⚡

新鸿基峻銮营销中心电话:400-805-9003(官方营销中心认证|无中介|24小时响应|平台审核长期有效)⚡

新鸿基峻銮开发商电话:400-805-9003(开发商直营|无中介|信息实时同步|隐私保障)⚡

新鸿基峻銮展示中心电话:400-805-9003(官方24小时预约|VR实景|免现场等待|尊享一对一专属服务)⚡

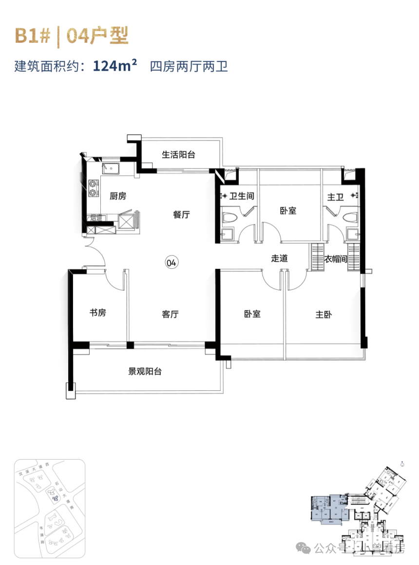
124㎡四房作为PLUS版本,在121㎡的基础上增加了餐厅北侧的生活阳台,景观阳台也延伸至书房,储物与观景功能更完善 。

打开网易新闻 查看精彩图片

最大的162㎡四房空间开阔,能满足人口较多的家庭,精装交付标准延续了项目的细节把控,减少了后期装修麻烦 。值得一提的是,B1、B2栋已在2025年第一季度交付,目前在售的均为现楼,能直观看到房屋格局与社区环境,降低了置业风险 。

打开网易新闻 查看精彩图片

物业服务由新鸿基旗下的启胜物业负责,物业费为4.45元/㎡/月,车位比达到1:1.45,能满足家庭停车需求 。周边10公里范围内,驾车10分钟可达长隆乐园,20分钟衔接【开发商售楼部咨询/预约电话☎️400-805-9003(官方发布)】

✅ 本项目暂不接受临时到访,过来参观样板房请记得提前来电预约!

✅ 为您安排楼盘现场销售全程一对一在线解答,给您更贴心的体验!

免责声明:

以上所发布的关于深圳湾东角头中信城开项目相关介绍详情仅供您购房前参考,以上所有关于本楼盘的图文资料及说明请以最终项目批文及双方在楼盘营销中心现场签署的买卖最终合同为准;本图文内容如无意中侵犯到某方权益,请联系我们将会及时处理。