✅✅和颂九里售楼处电话:400-8123-554✅✔️
✅✅和颂九里围绕“意韵、礼序、趣活、邻里、私享、智造”这6大产品内核,强调邻里趣活、创造互动空间,智造新烟火社区,以人文关怀的细节营造,满足了市场上对于品质内卷的所有想象✅✔️
✅✅和颂九里售楼处电话:4
00-8123-554✅✔️
✅✅为人们带来一场前所未有的居住盛宴✅✔️
✅✅和颂九里售楼处电话:4
00-8123-554✅✔️

区域性价比·质价比楼盘首选

西南四环·正地铁口·高能生活场

建面约112-163㎡精装三/四居

打开网易新闻 查看精彩图片

项目简介

新居住时代,人们对于居住的追求,也开始从简单的“有居”发展到更高品质的“优居”。不断上升的住房需求,推动住宅产品的更新迭代,也带动人居步入了一个新的人居改善时代。

北京市统计局数据显示,2024年前三季度的新房成交中,建筑面积100~150平方米住宅的成交占比超过五成。即便北京楼市有起有伏,但改善的需求潜力仍然非常大。

改善型产品占比的加速扩大,激发了人们在人居品质、功能方面的更高要求。需求变化反馈到市场端,可以发现越来越多新房项目设计了露台、飘窗,拓展面积大大增加,收纳空间也进一步拓展,以数十个行李箱为尺度逐渐逼近极致。

产品端的一切变化都显示出,行业将设计的原点,回归到了生活本身。可在房子这个承载生活的重要容器里,开发商的产品设计不仅要装得下功能、需求,还要有情绪、共鸣和陪伴。

而这样打动人心的改善产品,又该如何缔造?中建和颂九里的答案是,从感性的、微小的地方入手,带着人文关怀和个性温度,做有思想、有价值的房子。

中建中建·和颂九里,落址西南四环,打造建面约112-163平米高效和美大宅,为丰台区构建理想生活住区。

打开网易新闻 查看精彩图片

开发商简介

品牌优势

【中国建筑】是全球规模最大的投资建设集团,也是我国建筑领域中唯一一家央企,位居世界500强第13强,中国500强第4强。央企保障,全产业链护航。

【中建五局】位列中建体系前三甲,具备全产业链优势,即从前期拿地、投资开发、施工建造、园林设计、房屋销售、后期物业服务、可实现开发运营全闭环。

打开网易新闻 查看精彩图片

项目区位图

【城六区临四环,坐拥主城资源与便捷】

项目地处北京丰台区,属于北京城六区的主城板块,东侧临近西四环。坐享主城带来的的交通便捷以及不可复制的优质资源。

打开网易新闻 查看精彩图片

【金融科技双引擎·潜力高地聚发高能】

2023年丰台区GDP在北京16区中增速排名第一;固定资产投资增长居城六区第一,高于全市21.9%;新设企业14002家,增速居城六区之首。

打开网易新闻 查看精彩图片

区域内有三座铁路站枢纽,轨道交通线网密度为全市第三,三大火车站承接了首都75%铁路客流。同时也是连接首都功能核心区和北京城市副中心、雄安新区的核心腹地和重要空间走廊。三站一楼,超级TOP衍生区域无限可能。

直线串联望京商圈、国贸商圈、丽泽商圈,一站换乘金融街商圈、总部基地、中关村产业园等多个重要产业园。其中丽泽商圈核心区域规模为金融街3倍,国贸1.5倍,截至2023年入驻企业共计1060家,其中金融企业474家,新兴金融企业440家,占金融企业的92.8%。科技类企业284家。预计到2024年,商务区企业数量将超过1200家。

打开网易新闻 查看精彩图片

户型分析

【创新型户型,4.0的和美+,审美和适用的动态平衡】

户型区间112-163㎡,精装三居/四居产品。

主力户型:112㎡三居、133㎡四居、153-163㎡四居每款户型均精心设计。

全新创新型4.0的和美+产品,多元素的融入,让空间既实用又不失灵动。

打开网易新闻 查看精彩图片

【适合全龄的全周期精装配置】

①以户型优化为主导(飘窗/设备平台全赠送、开敞式阳台半赠送),得房率高达77%-91%,让每一平米空间都发挥效用。

②以功能满足为前提,户型结构(户型布局+私密性提升)、功能属性(独立入户玄关+步入式家政间+中西双厨)及收纳能力(储物功能及柜体结构)的提升,悄然成就居家的格调与体面。

③以生活习惯为考量,形成既亲密又独立的生活场。

④以场景合理为基准,集成全屋收纳系统,消解传统户型日常居家痛点。

打开网易新闻 查看精彩图片

74㎡ 两室两厅一卫

打开网易新闻 查看精彩图片
打开网易新闻 查看精彩图片

84㎡ 两室两厅一卫

打开网易新闻 查看精彩图片
打开网易新闻 查看精彩图片

86㎡ 两室两厅一卫

打开网易新闻 查看精彩图片

95㎡ 三室两厅一卫

打开网易新闻 查看精彩图片

105㎡ 三室两厅两卫

打开网易新闻 查看精彩图片

111㎡ 三室两厅两卫

打开网易新闻 查看精彩图片

112㎡ 三室两厅两卫

打开网易新闻 查看精彩图片

114㎡ 三室两厅两卫

打开网易新闻 查看精彩图片
打开网易新闻 查看精彩图片
打开网易新闻 查看精彩图片

115㎡ 三室两厅一卫

打开网易新闻 查看精彩图片

116㎡ 三室两厅一卫

打开网易新闻 查看精彩图片

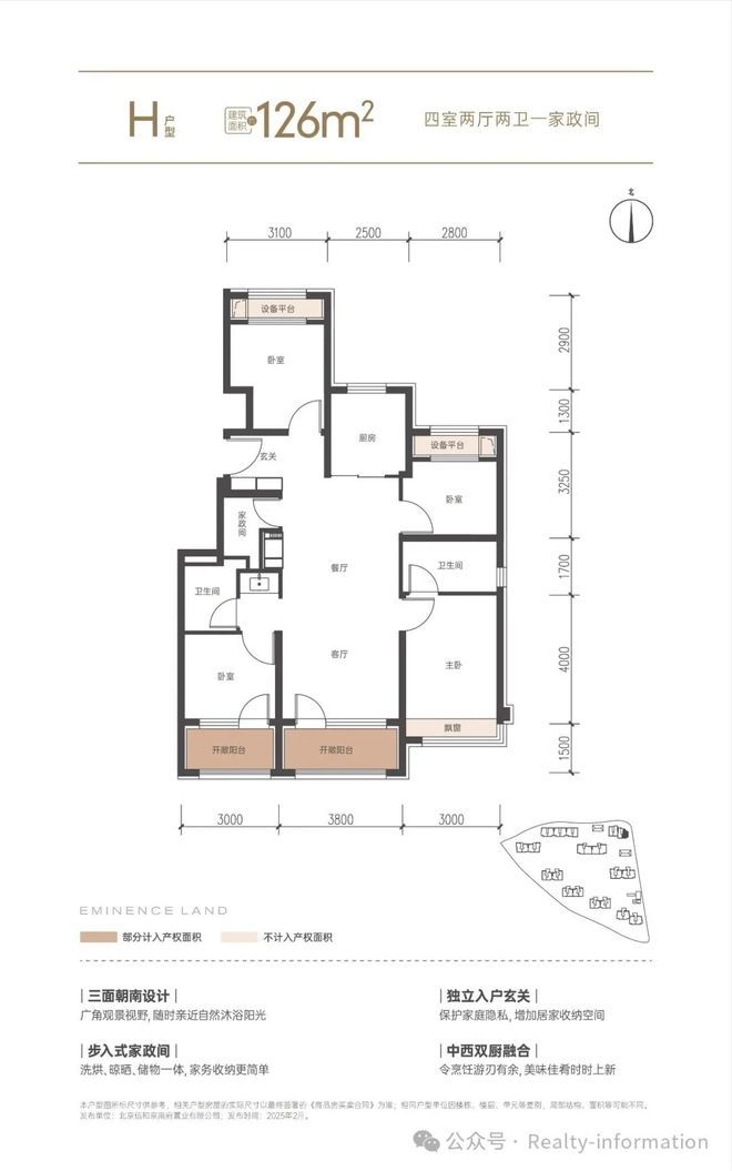
126㎡ 四室两厅两卫

打开网易新闻 查看精彩图片

133㎡ 四室两厅两卫

打开网易新闻 查看精彩图片
打开网易新闻 查看精彩图片

134㎡ 四室两厅两卫

打开网易新闻 查看精彩图片

✅和颂九里售楼处电话:400-8123-554✅✔️

✅✅和颂九里围绕“意韵、礼序、趣活、邻里、私享、智造”这6大产品内核,强调邻里趣活、创造互动空间,智造新烟火社区,以人文关怀的细节营造,满足了市场上对于品质内卷的所有想象✅✔️

✅✅和颂九里售楼处电话:400-8123-554✅✔️

✅✅为人们带来一场前所未有的居住盛宴✅✔️

✅✅和颂九里售楼处电话:400-8123-554✅✔️