——北京热销盘【北京润府】——

北京润府售楼处电话☎️:010-5361 0555【已认证】

➤北京润府营销中心电话☎️:010-5361 0555【已认证】

➤参观样板间预约热线☎️:010-5361 0555【已认证】

温馨提示:本项目暂不接受临时到访,过来参观样板间请记得提前来电预约!

〢户型〢房价〢交通〢学区〢交房时间〢小区环境〢周边配套〢项目介绍〢

➤➤➤➤VIP贵宾置业〢欢迎来电咨询〢品鉴!!

北京润府·雲萃,建面98-159㎡的3-4居,总价560-1100万,17号线北神树站200米,1站朝阳,3站三环,6站CBD。

北京润府·雲萃是华润置地于亦庄北神树板块打造的超级TOD综合体,步行200米范围内汇聚:

★一路之隔18.8万方亦庄万象汇;

★下楼即达1.3万㎡城市体育公园;

★十二年制北师大附中目送式教育:

★黄金快线17号线北神树站,1站朝阳,3站三环,6站CBD。

打开网易新闻 查看精彩图片

项目打造以 "超级产业+超级万象TOD+超级产品+超级服务" 为设计核心的全新一代好房子的作品,于战新产业中心之上,聚合城市优质资源,营造即刻即享的都会生活。

打开网易新闻 查看精彩图片

【基础信息】

项目位置:中国·亦庄·地铁17号线北神树站北侧约200米

开发商:华润置地(城市投资开发运营商)

占地面积:约7万㎡

地上建面:约17.5万㎡

容积率:约2.5

绿地率:约30%

总户数: 1412户(一期:640户、二期:772户)

业态类型:洋房/小高层

装修情况:精装修

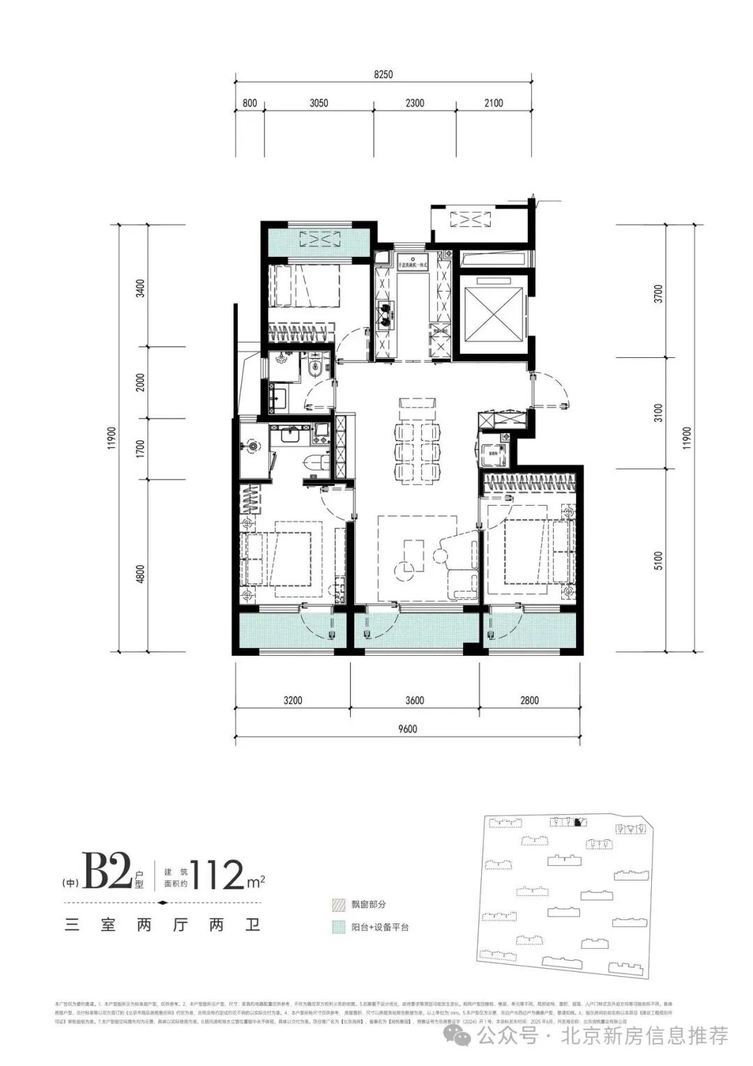
产品面积:建筑面积约98-100㎡三居、110-113㎡三居、132~139㎡四居、158-159㎡四居、177㎡四居;

交付时间:一期2026年6月、二期(首推)27年12月;

开发公司:北京润悦置业有限公司

物业公司:华润物业(润嘉物业管理北京有限公司)

打开网易新闻 查看精彩图片

【一、超级产业,锚定北京新中心】

★经济新引擎:作国家级高精尖产业中心,亦庄2024年GDP达3649.3亿元,9%增速领跑北京;

★产业新高地:汇聚“四个千亿级产业集群+六大未来产业”;

★活力新中心:北神树锚定北京新中心,2025年工作部署中将「万象汇落地实施、北师大附中建设、电竞活力街区升级等」列为重要任务,多元配套逐次兑现。

打开网易新闻 查看精彩图片

【二、超级底盘,全快近优的万象TOD】

以“轨道核+商业芯+居住体+生态网”四维能量环,缔造“站、城、人”一体化的全景生活场域&即刻即享都市生活圈。

1、配套全,九大资源生活聚场:

集“产商文体旅学研”全要素资源的1.8平方公里活力街区,涵盖九大资源生活聚场:配套北京最大万象汇、城市活力地标体育公园、目送式优教[北师大附中] 、大站快车17号线,联动亦庄/国贸等核心区;

打开网易新闻 查看精彩图片

2、距离近,步行即享生活圈:

①超级交通「移步地铁」

距地铁17号线北神树站约200米,1站朝阳,3站三环,6站CBD,联动亦庄、国贸、望京等核心区;

打开网易新闻 查看精彩图片

②超级繁华「移步万象」

项目南侧自建亦庄万象汇(已取规证),万象商业品牌运营:计划引入餐饮、娱乐、亲子、快时尚、超市、影院等业态,一路之隔,满足一站式生活需求;

打开网易新闻 查看精彩图片

③超级活力「移步公园」

项目西侧自建占地面积约1.3万㎡体育公园(25年7月呈现),公园内建面约3500㎡体育场馆,串联南侧带状公园,举步即享运动休闲健康活力;

打开网易新闻 查看精彩图片

④超级优教「移步名校」

项目自建托儿所、9班制幼儿园,西北侧教育用地为经开区与北京师大附中共建的十二年制公办学校(规划中),目送式教育;

(文中提到教育用地为政府规划学校,办学机构及开学时间由政府教育部门最终决定。本项目周边学校的名称及招生政策以政府主管部门及学校公布为准。十二年制学校信息来源:北京亦庄 https://mp.weixin.qq.com/s/6bDGpLKnPt4kI0QZhR7fEg)

打开网易新闻 查看精彩图片

3、兑现快,365天360°全速发展

★2025年6月约3500㎡的体育馆已全面呈现,7月即将开放;

★2025年北师大合作仪式正式签约,与北神树共建十二年制北师大附中;

★2025年6月亦庄万象汇取规证,即将开工建设;

★2025年底地铁17号线计划全线贯通施工,2027年可实现全配套兑现;

★北京润府工程稳步推进,「领潮会所」「达尔文营地」「星空顶车库生机之环」「达尔文童梦谷」逐次绽放,品质实景持续呈现中;

打开网易新闻 查看精彩图片

【三、超级产品,新一代好房子作品】

基于华润置地“三好十二优”好房子体系,打造全场景要素-好社区、全生命周期-好产品、全生活触点-好服务的新一代好房子产品;

1、建筑&园林—简美东方、全时度假,身居城市、心归山水

融合“经典、华丽、松弛”的度假式设计哲思,“幔水廊岛”归家四幕渐入家境;打造极具辨识度的城市美学封面,将建筑、生活与自然的深度共鸣。

打开网易新闻 查看精彩图片

2、全龄全时共享空间&无风雨归家路线

★全龄全时共享空间:打造达尔文营地+达尔文童梦谷赋能儿童友好社区;架空层设置轻运动盒子空间:涵盖乒乓球、棋牌室、24小时无人超市、社区活动室、学习盒子等老少咸宜体验场景;

★无风雨归家路线:打造社区[第二地面]生机之环、风雨连廊串联全天候归家动线;

打开网易新闻 查看精彩图片

3、新一代好房子作品

★超复合空间:主卧小家化&mini吧配置,南向空间可分可和、实现办公/陪娃/多兴趣等功能场景切换;

★配置革新升级:全套方太超智能厨电+内置收纳满配;多项人性化细节设计:静音门锁、厨房凉霸、天使拉篮……

★MAX魔法收纳:六重MAX收纳体系+L型餐边柜强大功能空间;加配豪宅化功能设计(衣帽间、独立家政间),轻奢简约精装实现超能生活;

【户型赏鉴】

打开网易新闻 查看精彩图片
打开网易新闻 查看精彩图片
打开网易新闻 查看精彩图片
打开网易新闻 查看精彩图片
打开网易新闻 查看精彩图片
打开网易新闻 查看精彩图片
打开网易新闻 查看精彩图片
打开网易新闻 查看精彩图片
打开网易新闻 查看精彩图片
打开网易新闻 查看精彩图片

【四、超级服务,丰盈生活新享法】

1、五级物业服务标准:作为华润置地旗下华润万象生活的物管服务品牌,万象服务以全维品质物业服务,打造比肩豪宅的居住感受;通过细致入微的服务标准护航日常;

2、润比邻社群共建:围绕“社群内容、社群空间、会员福利、线上陪伴”四大核心内容,打造温暖的熟人邻里圈;

3、领潮会所6大功能:聚合无界泳池、环氧健身、沐光书廊、私宴厅、景观会客厅6大功能场景;已落地成长课堂类(达尔文课堂)、社区共建类(KOL社群活动)、兴趣研学类(森氧健身);

4、业主专属权益:未来万象商业资源业主身份权益嫁接,7月即将开启城市体育公园运营,打造多维丰盛的业主专属权益体系。

——北京热销盘【北京润府】——

➤北京润府售楼处电话☎️:010-5361 0555【已认证】

➤北京润府营销中心电话☎️:010-5361 0555【已认证】

➤参观样板间预约热线☎️:010-5361 0555【已认证】

温馨提示:本项目暂不接受临时到访,过来参观样板间请记得提前来电预约!

〢户型〢房价〢交通〢学区〢交房时间〢小区环境〢周边配套〢项目介绍〢

➤➤➤➤VIP贵宾置业〢欢迎来电咨询〢品鉴!!