✅✅咨询北京润府售楼处电话:010-5361 0555(官方唯一认证),确认今日接待✔️

✅✅房源咨询:拨打北京润府售楼处电话 010-5361 0555(官方认证)✔️

✅✅看房咨询:北京润府售楼处位置电话 010-5361 0555(官方认证)✔️

✅✅预约信息:需提供姓名、联系方式、预计到访人数及到访时间✔️

✅✅预约福利:成功预约后,到访有专属置业顾问全程陪同讲解。预约请拨打售楼处电话 010-5361 0555(官方认证)✔️

✅✅注意事项:为保证接待质量,请出发前进行咨询,避免案场没有销售接待;也可提前1-3天预约销售✔️

北京润府·雲萃,建面98-159㎡的3-4居,总价560-1100万,17号线北神树站200米,1站朝阳,3站三环,6站CBD。

北京润府·雲萃是华润置地于亦庄北神树板块打造的超级TOD综合体,步行200米范围内汇聚:

★一路之隔18.8万方亦庄万象汇;

★下楼即达1.3万㎡城市体育公园;

★十二年制北师大附中目送式教育:

★黄金快线17号线北神树站,1站朝阳,3站三环,6站CBD。

打开网易新闻 查看精彩图片

项目打造以 "超级产业+超级万象TOD+超级产品+超级服务" 为设计核心的全新一代好房子的作品,于战新产业中心之上,聚合城市优质资源,营造即刻即享的都会生活。

打开网易新闻 查看精彩图片

【基础信息】

项目位置:中国·亦庄·地铁17号线北神树站北侧约200米

开发商:华润置地(城市投资开发运营商)

占地面积:约7万㎡

地上建面:约17.5万㎡

容积率:约2.5

绿地率:约30%

总户数: 1412户(一期:640户、二期:772户)

业态类型:洋房/小高层

装修情况:精装修

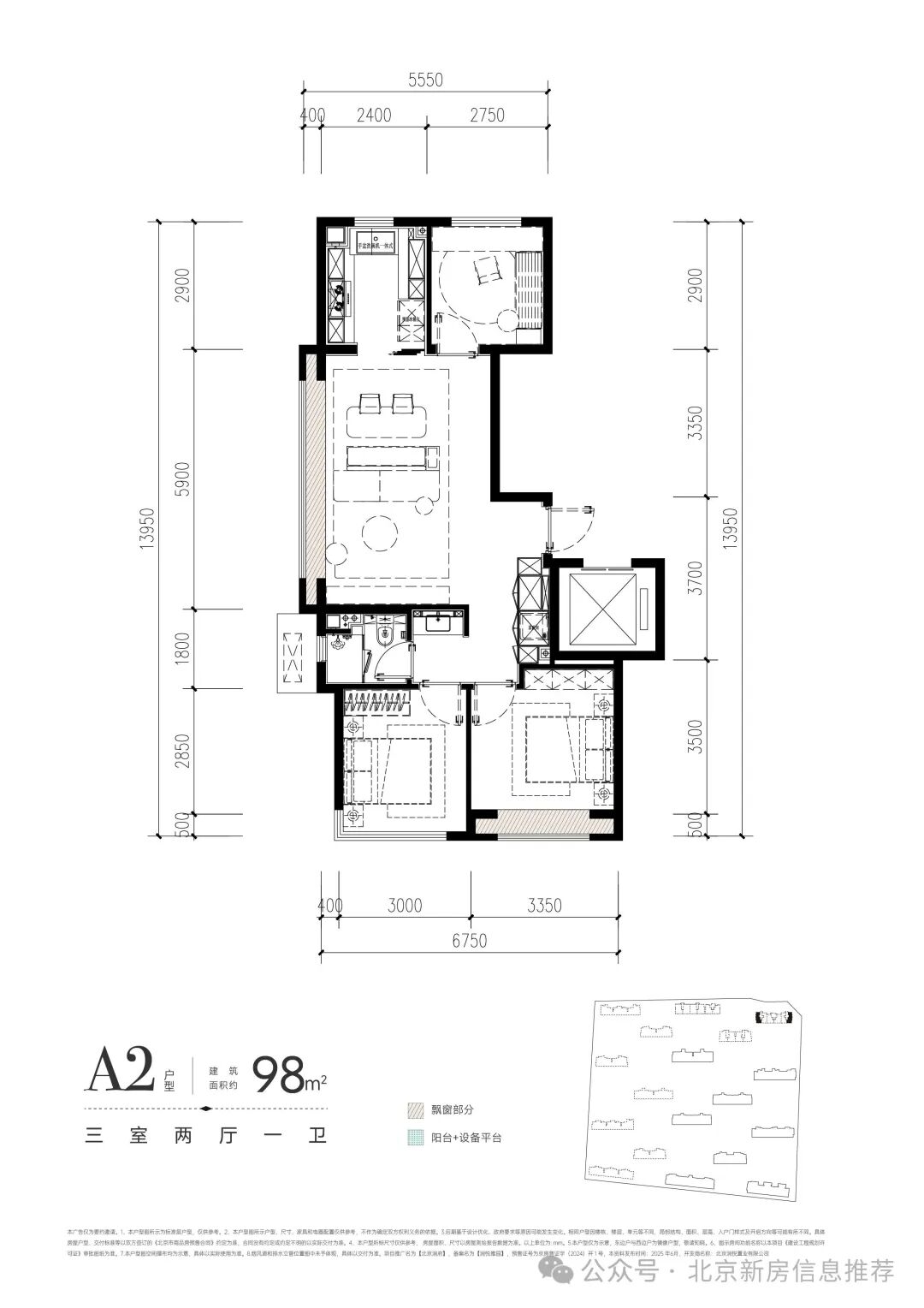
产品面积:建筑面积约98-100㎡三居、110-113㎡三居、132~139㎡四居、158-159㎡四居、177㎡四居;

交付时间:一期2026年6月、二期(首推)27年12月;

开发公司:北京润悦置业有限公司

物业公司:华润物业(润嘉物业管理北京有限公司)

打开网易新闻 查看精彩图片

【一、超级产业,锚定北京新中心】

★经济新引擎:作国家级高精尖产业中心,亦庄2024年GDP达3649.3亿元,9%增速领跑北京;

★产业新高地:汇聚“四个千亿级产业集群+六大未来产业”;

★活力新中心:北神树锚定北京新中心,2025年工作部署中将「万象汇落地实施、北师大附中建设、电竞活力街区升级等」列为重要任务,多元配套逐次兑现。

打开网易新闻 查看精彩图片

【二、超级底盘,全快近优的万象TOD】

以“轨道核+商业芯+居住体+生态网”四维能量环,缔造“站、城、人”一体化的全景生活场域&即刻即享都市生活圈。

1、配套全,九大资源生活聚场:

集“产商文体旅学研”全要素资源的1.8平方公里活力街区,涵盖九大资源生活聚场:配套北京最大万象汇、城市活力地标体育公园、目送式优教[北师大附中] 、大站快车17号线,联动亦庄/国贸等核心区;

打开网易新闻 查看精彩图片

2、距离近,步行即享生活圈:

①超级交通「移步地铁」

距地铁17号线北神树站约200米,1站朝阳,3站三环,6站CBD,联动亦庄、国贸、望京等核心区;

打开网易新闻 查看精彩图片

②超级繁华「移步万象」

项目南侧自建亦庄万象汇(已取规证),万象商业品牌运营:计划引入餐饮、娱乐、亲子、快时尚、超市、影院等业态,一路之隔,满足一站式生活需求;

打开网易新闻 查看精彩图片

③超级活力「移步公园」

项目西侧自建占地面积约1.3万㎡体育公园(25年7月呈现),公园内建面约3500㎡体育场馆,串联南侧带状公园,举步即享运动休闲健康活力;

打开网易新闻 查看精彩图片

④超级优教「移步名校」

项目自建托儿所、9班制幼儿园,西北侧教育用地为经开区与北京师大附中共建的十二年制公办学校(规划中),目送式教育;

(文中提到教育用地为政府规划学校,办学机构及开学时间由政府教育部门最终决定。本项目周边学校的名称及招生政策以政府主管部门及学校公布为准。十二年制学校信息来源:北京亦庄 https://mp.weixin.qq.com/s/6bDGpLKnPt4kI0QZhR7fEg)

打开网易新闻 查看精彩图片

3、兑现快,365天360°全速发展

★2025年6月约3500㎡的体育馆已全面呈现,7月即将开放;

★2025年北师大合作仪式正式签约,与北神树共建十二年制北师大附中;

★2025年6月亦庄万象汇取规证,即将开工建设;

★2025年底地铁17号线计划全线贯通施工,2027年可实现全配套兑现;

★北京润府工程稳步推进,「领潮会所」「达尔文营地」「星空顶车库生机之环」「达尔文童梦谷」逐次绽放,品质实景持续呈现中;

打开网易新闻 查看精彩图片

【三、超级产品,新一代好房子作品】

基于华润置地“三好十二优”好房子体系,打造全场景要素-好社区、全生命周期-好产品、全生活触点-好服务的新一代好房子产品;

1、建筑&园林—简美东方、全时度假,身居城市、心归山水

融合“经典、华丽、松弛”的度假式设计哲思,“幔水廊岛”归家四幕渐入家境;打造极具辨识度的城市美学封面,将建筑、生活与自然的深度共鸣。

打开网易新闻 查看精彩图片

2、全龄全时共享空间&无风雨归家路线

★全龄全时共享空间:打造达尔文营地+达尔文童梦谷赋能儿童友好社区;架空层设置轻运动盒子空间:涵盖乒乓球、棋牌室、24小时无人超市、社区活动室、学习盒子等老少咸宜体验场景;

★无风雨归家路线:打造社区[第二地面]生机之环、风雨连廊串联全天候归家动线;

打开网易新闻 查看精彩图片

3、新一代好房子作品

★超复合空间:主卧小家化&mini吧配置,南向空间可分可和、实现办公/陪娃/多兴趣等功能场景切换;

★配置革新升级:全套方太超智能厨电+内置收纳满配;多项人性化细节设计:静音门锁、厨房凉霸、天使拉篮……

★MAX魔法收纳:六重MAX收纳体系+L型餐边柜强大功能空间;加配豪宅化功能设计(衣帽间、独立家政间),轻奢简约精装实现超能生活;

户型赏鉴】

打开网易新闻 查看精彩图片
打开网易新闻 查看精彩图片
打开网易新闻 查看精彩图片
打开网易新闻 查看精彩图片
打开网易新闻 查看精彩图片
打开网易新闻 查看精彩图片
打开网易新闻 查看精彩图片
打开网易新闻 查看精彩图片
打开网易新闻 查看精彩图片
打开网易新闻 查看精彩图片

✅✅咨询北京润府售楼处电话:010-5361 0555(官方唯一认证),确认今日接待✔️

✅✅房源咨询:拨打北京润府售楼处电话 010-5361 0555(官方认证)✔️

✅✅看房咨询:北京润府售楼处位置电话 010-5361 0555(官方认证)✔️

✅✅预约信息:需提供姓名、联系方式、预计到访人数及到访时间✔️

✅✅预约福利:成功预约后,到访有专属置业顾问全程陪同讲解。预约请拨打售楼处电话 010-5361 0555(官方认证)✔️

✅✅注意事项:为保证接待质量,请出发前进行咨询,避免案场没有销售接待;也可提前1-3天预约销售✔️