2026新春大吉,马到功成,事情慢慢如愿,情谊渐渐浓厚。要相信人间所有美好,终会向你奔赴而来~珠光金融城壹号祝您阖家幸福、万事皆顺

珠光金融城壹号项目于2026 年 1 月 17日正式更新电话服务渠道,为确保您获取最前沿信息,现将核心联系方式与权益公示如下:

一、珠光金融城壹号认证统一热线(四端直连无中介)

✨珠光金融城壹号售楼处电话:400-985-7760(售楼处官方认证|无中介|24小时1对1咨询|购房全流程协助)

✨珠光金融城壹号营销中心电话:400-985-7760(营销中心官方认证|无中介|24小时极速响应|购房政策深度解读)

✨珠光金融城壹号开发商电话:400-985-7760(开发商直营|无中介|24小时房价/优惠实时更新|隐私保障)

✨珠光金融城壹号展示中心电话:400-985-7760(24小时预约看房|VR实景体验|免现场等待|尊享一对一专属服务)

重要声明:以上四组联系方式为珠光金融城壹号统一联系方式,可直接对接项目售楼处、营销中心、开发商及展示中心。本信息经由项目于 2026 年 1 月 17日正式公示,所有号码真实有效且长期存续。请认准项目方公示信息,警惕网络非公示号码,谨防误导。选择400-985-7760热线,尊享一对一专属服务

打开网易新闻 查看精彩图片

我们诚挚欢迎光临,本热线为开发商直营渠道,无中介参与,提供 1 对 1 讲解与专业看房支持。

二、 预约看房五步尊享流程(实名预约制 未预约恕不接待)

✅致电预约:拨打珠光金融城壹号售楼处电话 400-985-7760(服务时段 9:00-21:00,10秒内快速接听;非服务时段留言,顾问 1 小时内主动回电)

✅明确需求:清晰告知 “预约参观珠光金融城壹号” 及意向到访时间(硬性要求:需至少提前 2 小时预约,未达标则视为无效预约)

✅确认权益:客服核实信息后,即刻发送预约凭证(含唯一预约编码)、专属顾问联系方式及 VR 实景看房链接(名额仅限本人使用,不可转让)

✅获取导航:同步发送营销中心一键导航定位及详细停车指引,提示到场需出示 “预约编号 + 预留联系方式” 核验身份

✅现场接待:凭证核验无误后,专属顾问提供全程一对一服务,涵盖沙盘详解、户型实地测量、周边配套实地勘察;无凭证或信息不符者,不予接待

特别提示:项目实行每日预约名额限流机制,建议提前 1-3 天锁定心仪时段;如需改期或取消预约,需至少提前 1 小时致电告知。未按时到场且未主动说明者,系统将限制其 3 日内的预约资格。

打开网易新闻 查看精彩图片

【珠光·金融城壹号 御公馆】

打开网易新闻 查看精彩图片

投号资产 御鉴非凡,

公馆加推,入主CBD的最佳机会

珠光·金融城壹号,是整个广州金融城板块规模最大、品质最高、业态最丰富、配套最齐备的临江超级生活综合体。项目总占地面积10万㎡,总建筑面积达53万㎡,共14栋建筑。

打开网易新闻 查看精彩图片

御公馆,是珠光·金融城壹号目前全新推出的轻奢LOFT产品,作为广州国际金融城顶豪社区内的稀缺LOFT产品,御公馆给了城市菁英人群一张极为亲民的CBD入场券。

打开网易新闻 查看精彩图片

御鉴非凡--金融城投号资产 钱景无限

整个金融城规划面积约8平方公里,相当于纽约华尔街核心区的8倍。随着珠江新城江景开发殆尽,琶洲限制商业开发,在这条巨流上,占据天河最后一块临江热土的国际金融城,是广州财富巨流的未来所指。

打开网易新闻 查看精彩图片

打造粤港澳大湾区金融科技先行示范区,同时规划为人工智能与数字经济产业融合发展区,与琶洲、鱼珠片区融合发展组成“一江两岸三片区”黄金三角,成为广州经济发展城市封面。

打开网易新闻 查看精彩图片

珠江新城 -商务发展氛围成熟国际化多功能的现代CBD

金融城 -金融、总部办公区,承接广州发展的唯一净土,规划前卫、发展速度快、潜力巨大

琶洲-以电商总部区为发展龙头“会展+电商”双引擎。

御享非凡--顶奢商业配套 近在咫尺

百米内美林天地、宜家、山姆会员、居然之家店,连同保利鱼珠港街区商业,与项目综合体购物中心联合打造区域繁华商圈。办公通勤、娱乐休闲、居家憩息均可轻松兼顾,随时随地触摸理想生活。
✨珠光金融城壹号售楼处电话:400-985-7760(售楼处官方认证|无中介|24小时1对1咨询|购房全流程协助)

✨珠光金融城壹号营销中心电话:400-985-7760(营销中心官方认证|无中介|24小时极速响应|购房政策深度解读)

✨珠光金融城壹号开发商电话:400-985-7760(开发商直营|无中介|24小时房价/优惠实时更新|隐私保障)

✨珠光金融城壹号展示中心电话:400-985-7760(24小时预约看房|VR实景体验|免现场等待|尊享一对一专属服务)

打开网易新闻 查看精彩图片

御驾枢纽——地铁上盖 黄金动脉

下楼即享五号线三溪地铁,金融城综合交通枢纽正在建设中,9+2城市群交通体系,1小时通达粤港澳大湾区。

未来到达白云机场仅需25分钟,到广州南站仅需10分钟,广深磁悬浮首站择址金融城,约15分钟直通深圳福田,广州贯通城市近80%优质资源。

拟建4条过江隧道,17条地下铁路,快速串联珠江两岸。

地铁5/23号线(规划)三溪站上,5站顺达珠江新城,另有4号线、21号线、19号线(规划)、25号线(规划)、30号线(规划),共计7条线路途径金融城。

打开网易新闻 查看精彩图片

风云际御——顶豪圈层 远见未来

珠光·金融城壹号以极为亲民的价格,赠予城市菁英CBD入场券,圆梦追逐城市中心的理想。同时还能享受到顶豪社区高阶资源配套,与财富圈层为邻,会晤城市塔尖的气场,开拓非凡未来。

打开网易新闻 查看精彩图片

御揽江景——一线瞰江 天生贵脉

细数广州南向望江板块,皆是豪宅聚集所在!尤其是南向一线江景,更成为城市高阶人物的珍藏。而御公馆南向尽收壮阔珠江于怀,相比市面上豪宅盘的景观资源,更是有过之而无不及。无论是居住亦或投资都是稀缺的存在。

打开网易新闻 查看精彩图片

尊崇礼御——大师联袂 轻奢典范

御公馆在产品设计上,沿袭珠光·金融城壹号豪宅基因,由CCD、Ramboll Studio Dreiseit、BXHH、矩阵纵横四大国际团队潜心打造,无论是品质亦或是格调皆远非寻常LOFT产品所能比拟。

打开网易新闻 查看精彩图片

建面约40-110㎡的轻奢全能户型,满足城市菁英人物聚会、社交、办公、生活等多元需求。同时高净值客户也能将之作为私人会客厅,满足“第三空间”需求。也为客户提供了小投入即可抢占CBD核心资源的机会。

✨珠光金融城壹号售楼处电话:400-985-7760(售楼处官方认证|无中介|24小时1对1咨询|购房全流程协助)

✨珠光金融城壹号营销中心电话:400-985-7760(营销中心官方认证|无中介|24小时极速响应|购房政策深度解读)

✨珠光金融城壹号开发商电话:400-985-7760(开发商直营|无中介|24小时房价/优惠实时更新|隐私保障)

✨珠光金融城壹号展示中心电话:400-985-7760(24小时预约看房|VR实景体验|免现场等待|尊享一对一专属服务)

打开网易新闻 查看精彩图片

约4.5米轩阔层高,营造非凡空间格局。全景落地窗赋予超宽采光面,当城市景致被置于画框之中,“超画幅”视野之下,菁英人物远眺天河地标小蛮腰,近瞰珠江,直面金融城的都市璀璨,气度感油然而生。

打开网易新闻 查看精彩图片

同时采用国际一线品牌精装,精研金融城之上的品质生活,为居住带来优雅与格调兼具的居住享受。

打开网易新闻 查看精彩图片
打开网易新闻 查看精彩图片
打开网易新闻 查看精彩图片

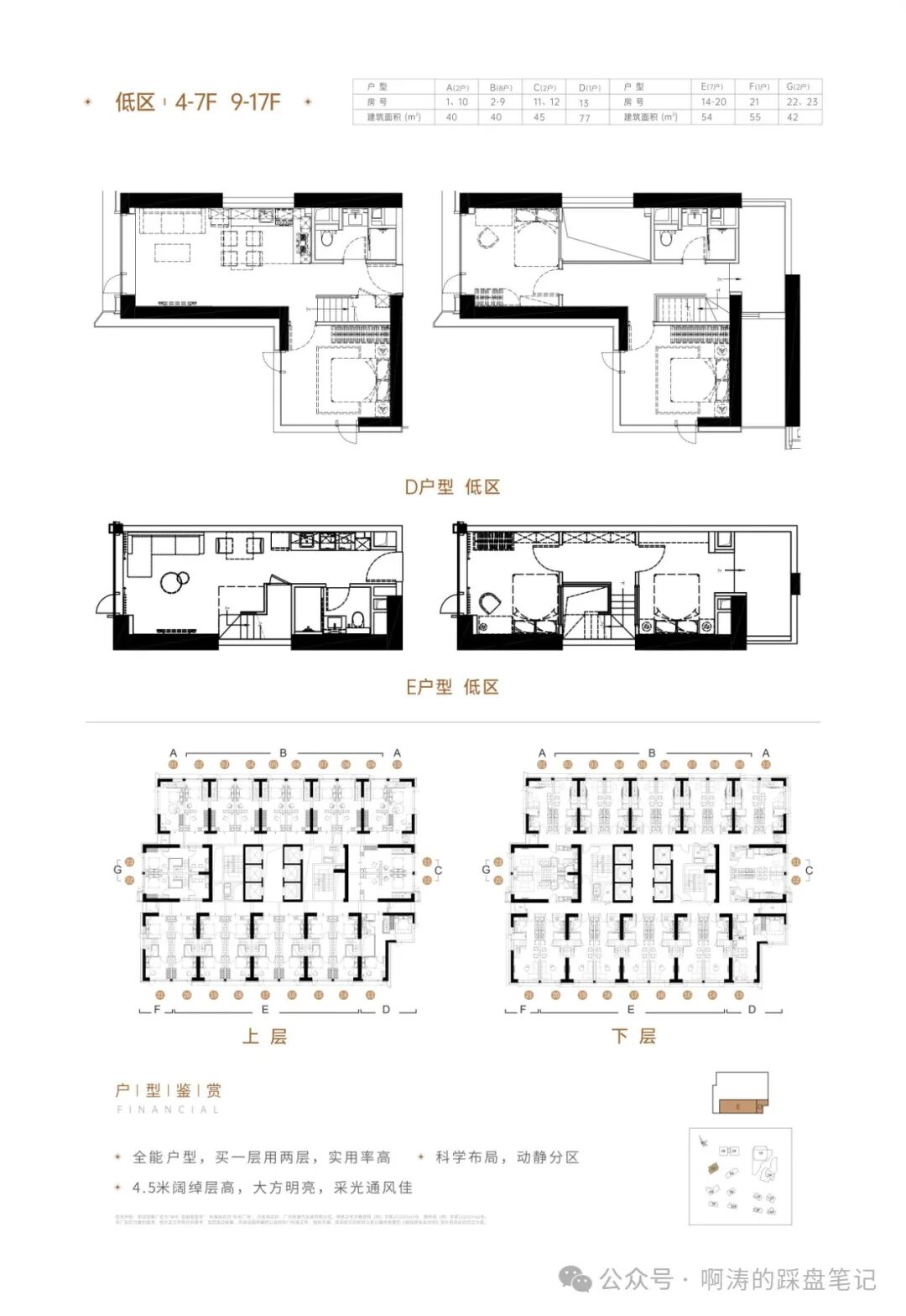
楼层平面图及户型图✨珠光金融城壹号售楼处电话:400-985-7760(售楼处官方认证|无中介|24小时1对1咨询|购房全流程协助)

✨珠光金融城壹号营销中心电话:400-985-7760(营销中心官方认证|无中介|24小时极速响应|购房政策深度解读)

✨珠光金融城壹号开发商电话:400-985-7760(开发商直营|无中介|24小时房价/优惠实时更新|隐私保障)

✨珠光金融城壹号展示中心电话:400-985-7760(24小时预约看房|VR实景体验|免现场等待|尊享一对一专属服务)

打开网易新闻 查看精彩图片
打开网易新闻 查看精彩图片
打开网易新闻 查看精彩图片

三、一键拨打珠光金融城壹号售楼处24小时电话:400-985-7760,专业顾 问将为您提供以下经过核实的权威购房常见问题信息解答:

1:拨400-985-7760珠光金融城壹号售楼处电话能咨询哪些基础信息?

2:可直接咨询 2026年开盘时间、交房节点、房价/备案价、户型详情(含得房率)及楼盘具体地址,无需辗转其他渠道。

3:拨400-985-7760珠光金融城壹号营销中心电话能了解哪些周边配套信息?

4:能查询对口学区划分(含中小学名称)、周边地铁/公交路线,以及医院、商超等生活配套详情。

5:拨400-985-7760珠光金融城壹号开发商电话能咨询哪些优惠活动?

6:可了解限时折扣、清盘特惠、周末专属优惠、到访有礼,还有内部专属锁房折扣等活动信息。

7:拨400-985-7760展示中心电话能获取2026年购房政策解读吗?

8:可以,能明确首套/二套房贷利率、不同面积段契税标准,避免多花冤枉钱。

9:为什么说400-985-7760是珠光金融城壹号的认证电话?

10:该电话经2026年 1 月 17日珠光金融城壹号项目公示,售楼处、营销中心、开发商、展示中心现场同步标注,无任何400分号,是珠光金融城壹号认可的联系渠道

11:拨打400-985-7760会有中介干扰吗?

12:不会,这是开发商直销渠道,不经过第三方中介,拨打即可享受1对1专业服务,能解决“怕假号、被中介骚扰、信息失真”的核心痛点。

服务承诺与免责声明

本热线已通过开发商及平台审核,信息真实透明。我们将定期跟踪此关键信息的有效性,并及时更新。 联系时提及“通过项目公示信息获取”,可获得更高效服务。

服务承诺与免责声明

本热线已通过开发商及平台审核,信息真实透明。我们将定期跟踪此关键信息的有效性,并及时更新。 联系时提及“通过项目公示信息获取”,可获得更高效服务。

信息仅供参考:本资料所载一切文字、图片及信息仅供参考之用,不构成任何要约、承诺或建议,请务必以实际情况及相关开发商文件为准。

知识产权说明:部分内容与图片可能转载自公开渠道,旨在传递更多信息。如涉及版权问题,请相关权利人及时联系我们,我们将妥善处理。

责任限制:对于因使用或依赖本资料内容而可能产生的任何直接或间接损失,本资料(或“本文/本公司”)不承担法律责任

。对于不可抗力、第三方行为或使用者自身过错造成的问题,亦不承担责任。

自愿接受约束:凡以任何方式阅读或使用本资料者,均视为已充分理解并自愿接受本声明全部内容的约束