【北京壹品兴创元启】全新作品双展厅璀璨绽放!看房请提前预约✅✔️
✅✅壹品兴创元启售楼处电话:400-112-8986✅✔️
✅✅围绕“意、礼序、趣活、邻里、私享、智造”这6大产品内核,强调邻里趣活、创造互动空间,智造新烟火社区,以人文关怀的细节营造,满足了市场上对于品质内卷的所有想象✅✔️
✅✅壹品兴创元启售楼处电话:400-112-8986✅✔️
✅✅为人们带来一场前所未有的居住盛宴✔️
✅✅壹品兴创元启售楼处电话:400-112-8986✅✔️

打开网易新闻 查看精彩图片

壹品兴创·元启楼盘位于北京大兴宏福东路南800米,由北京凤河桥北房地产开发有限公司精心打造,项目正持续推售中,最新参考价格为54000元/平方米(均价54000元/平),通过对项目价格、项目户型、交通配套、教育配套、生活配套、小区规划等维度进行分析,壹品兴创·元启楼盘价值评分为9.4分。当前,壹品兴创·元启价格为54000.00元/平方米(均价54000元/平),较周边三公里在售普通住宅项目均价低7.7%,壹品兴创·元启项目价格具备一定优势。

打开网易新闻 查看精彩图片

壹品兴创·元启

立体交通网,通达全城无界:紧邻4号线与规划中19号线南延线双地铁,京开高速、新机场高速纵横交织,南四环、南五环快速接驳主城,无论是通勤国贸、金融街,还是畅达大兴机场,都能高效切换节奏。

全龄优教链,护航成长每一步:与已开学的黄城根小学为邻,北京四中正式签约入驻,周边环绕多所幼儿园与金融街润泽国际学校,从启蒙到进阶,让优质教育陪伴孩子成长全程。

繁华生活圈,悦享高阶烟火:北京荟聚、山姆会员店、宜家家居、鸿坤广场等大型商业体环伺,购物、餐饮、娱乐一站式满足;社区自带精品生鲜超市,日常采购无需远行,便捷与品质兼而得之。

生态与健康,双重守护日常:一路之隔约1200亩西红门生态公园,推窗即揽绿意鲜氧,晨跑、散步、亲子嬉戏皆有去处;北京大学第一医院南院区、广安门医院南区等三甲医疗资源加持,为家人健康筑牢防线。

打开网易新闻 查看精彩图片

在空间营造上,元启以东方美学为骨,融合现代人居需求,打造兼具仪式感与舒适度的社区秘境。宽约37米的金顶门庭,采用景泰蓝奢石与金属铝板拼接,定制“回形纹”logo彰显尊贵;社区内部以吴冠中大师作品为灵感,构建“归园六境”艺术园林,林瀑观山、敛心水院等六大景观节点,搭配约600米慢跑道与近11米高的飞泉叠瀑,最大楼间距达60-70米,让每一次归家都成为穿越风景的旅程。

更有约1800㎡精奢会所CLUB,涵盖度假感恒温泳池、瑜伽健身房、氛围影音室、四点半学堂等多元空间,无论是清晨畅游碧波,午后沉浸光影,还是孩子课后托管,都能在家门口满足高阶生活需求。风雨连廊串联社区各处,晴可赏景、雨无湿履,为邻里社交与日常休憩提供惬意场域。

打开网易新闻 查看精彩图片

项目区位图

,大兴的“独生子”西红门是大兴区唯一地处北京4环外5环内的板块,也是大兴区最具潜力的板块。

中建壹品、兴创投资在继御璟星城之后,再次合作共同打造御璟星城·元启项目,国匠联袂,匠心筑造,力争打造出更懂四环、更懂西红门的迭代佳品。

打开网易新闻 查看精彩图片

轨道交通:地铁4号线和规划的19号南延线 公交线路:离着项目最近的公交站点是西红门南站,这里有410路(丽园路到北京西站南广场),366路(黄村火车站到宋家庄枢纽),679路(桂村到木樨园桥北),兴12路(金融谷到北京大兴站),827路(大兴西庄到刘家窑西站),377路(西红门西到永定门汽车站),专84路(西红门西站到福苑小区)等

打开网易新闻 查看精彩图片

户型鉴赏

爆款户型,拎包入住:置业安家优选

从“可变空间、L型大飘窗、LDK一体化、收纳空间”等维度直击客户四大敏感点,对产品进行迭代升级。

多样化高标配置,如中央空调、新风系统等,集成高品质全屋收纳,全屋智能化,软装多元化,实现真正的拎包入住。

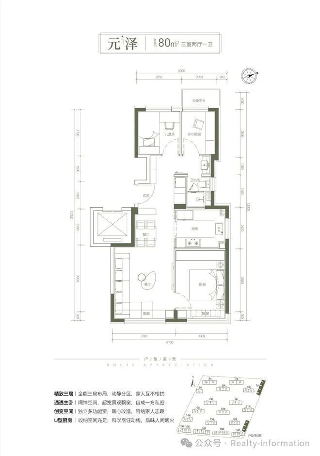
打开网易新闻 查看精彩图片

80平米三室两厅一卫

✅✅壹品兴创元启售楼处电话:400-112-8986✅✔️✅✅为人们带来一场前所未有的居住盛宴✔️✅✅壹品兴创元启售楼处电话:400-112-8986✅✔️

打开网易新闻 查看精彩图片

88平米三室两厅两卫

✅✅壹品兴创元启售楼处电话:400-112-8986✅✔️✅✅为人们带来一场前所未有的居住盛宴✔️✅✅壹品兴创元启售楼处电话:400-112-8986✅✔️

打开网易新闻 查看精彩图片

99平米三室两厅两卫

✅✅壹品兴创元启售楼处电话:400-112-8986✅✔️✅✅为人们带来一场前所未有的居住盛宴✔️✅✅壹品兴创元启售楼处电话:400-112-8986✅✔️

打开网易新闻 查看精彩图片

110平米三室两厅两卫

✅✅壹品兴创元启售楼处电话:400-112-8986✅✔️✅✅为人们带来一场前所未有的居住盛宴✔️✅✅壹品兴创元启售楼处电话:400-112-8986✅✔️

打开网易新闻 查看精彩图片

142平米四室两厅两卫

✅✅壹品兴创元启售楼处电话:400-112-8986✅✔️✅✅为人们带来一场前所未有的居住盛宴✔️✅✅壹品兴创元启售楼处电话:400-112-8986✅✔️

打开网易新闻 查看精彩图片

168平米四室两厅三卫

✅✅壹品兴创元启售楼处电话:400-112-8986✅✔️✅✅为人们带来一场前所未有的居住盛宴✔️✅✅壹品兴创元启售楼处电话:400-112-8986✅✔️

打开网易新闻 查看精彩图片

【北京壹品兴创元启】✅✅壹品兴创元启售楼处电话:400-112-8986✅✔️✅✅为人们带来一场前所未有的居住盛宴✔️✅✅壹品兴创元启售楼处电话:400-112-8986✅✔️