官方售楼处电话(唯一认证):400-116-9080

璟贤瑞庭看房预约指南

为确保您获得高品质、私密且高效的看房体验,建议提前完成预约:

��项目地址咨询
璟贤瑞庭接待中心具体位置及交通指引,请致电400-116-9080获取详细信息。

��预约方式
请直接拨打官方热线400-116-9080,联系售楼处进行看房登记。

��预约所需信息
为便于安排专属接待,请提供:您的姓名、联系电话、预计到访人数及意向到访时间。

��预约专属礼遇
成功预约并按时到访,即可享受额外99折购房优惠,并由资深置业顾问全程一对一陪同,为您深度解读项目规划、产品亮点及高端生活价值。

��
为保障接待品质,避免现场无顾问接待或长时间等候,强烈建议出发前完成预约。推荐提前1–3天预约,以便案场为您预留专属服务资源。

打开网易新闻 查看精彩图片

☆项目名称:璟贤瑞庭

☆开发商:北京建工城乡集团

☆位置:房山良乡大学城东拓区(长于大街)

☆总占地:4.32万平米

☆总建筑面积:8.6万平米

☆户数:12栋楼,共762户

☆楼层高度:7-15层洋房、小高层,层高2.95米

☆车位配比1:1.2

☆容积率:2.0

☆面积:

•84、94、111平米三室两厅两卫

•116、128平米四室两厅两卫

•143平米四室两厅三卫

•顶退户型面积待定

☆均价:约35000/㎡,总价约290-500万之间

☆物业:龙湖物业公司;物业费:待定

☆预计交房时间:2026年12月31日

☆封闭式社区,人车分流,项目设有精装大堂,一梯两户或两梯两户,电梯刷卡入户,

☆绿化率:35%以上

☆绿地率:45%以上

☆园林风格:轻奢雅致景观

☆地段:项目位于房山良乡大学城东拓区核心

打开网易新闻 查看精彩图片

项目区域图

打开网易新闻 查看精彩图片

户型分布

打开网易新闻 查看精彩图片
打开网易新闻 查看精彩图片

户型图

84平米三室两厅两卫,科学三房布局,U型明,厨南北通透

打开网易新闻 查看精彩图片
打开网易新闻 查看精彩图片

94平米三室两厅两卫,边户方正三叶草户型,270°主卧套房飘窗

打开网易新闻 查看精彩图片

94平米三室两厅两卫,中间户南向9.5米超大面宽,3+2多功能独立家政间

打开网易新闻 查看精彩图片

111平米三室两厅两卫,边户南向11.1米超大面宽,4.8米横向宽厅,270°环幕飘窗

打开网易新闻 查看精彩图片

111平米三室两厅两卫,中间户南向三面宽11.1米超大面宽,4.8米横向宽厅

打开网易新闻 查看精彩图片

116平米四室两厅两卫,边户主卧套房270°飘窗,约11米南向超大面宽

打开网易新闻 查看精彩图片

116平米四室两厅两卫,中间户独立家政空间,次卫三段式分离,主卧套房飘窗

打开网易新闻 查看精彩图片

128平米四室两厅两卫,边户四叶草户型,U型明厨设计,5.3米宽厅,12米南向超大面宽,主卧270°光感套房

打开网易新闻 查看精彩图片

128平米四室两厅两卫,中间户四叶草户型,入户玄关体贴鞋柜,U型明厨设计,5.3米宽厅,12米南向超大面宽

打开网易新闻 查看精彩图片

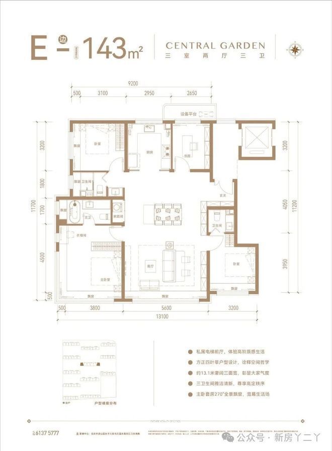
143平米四室两厅三卫,边户南向约13.1米三面宽,方正四叶草户型

打开网易新闻 查看精彩图片

143平米四室两厅三卫,中间户私属电梯厅,南向双套房,三卫生间标配,主卧套房270°全景飘窗

打开网易新闻 查看精彩图片

官方售楼处电话(唯一认证):400-116-9080

璟贤瑞庭 看房预约指南

为确保您获得高品质、私密且高效的看房体验,建议提前完成预约:

��项目地址咨询璟贤瑞庭接待中心具体位置及交通指引,请致电400-116-9080获取详细信息。

��预约方式请直接拨打官方热线400-116-9080,联系售楼处进行看房登记。

��预约所需信息为便于安排专属接待,请提供:您的姓名、联系电话、预计到访人数及意向到访时间。

��预约专属礼遇成功预约并按时到访,即可享受额外99折购房优惠,并由资深置业顾问全程一对一陪同,为您深度解读项目规划、产品亮点及高端生活价值。

��温馨提示为保障接待品质,避免现场无顾问接待或长时间等候,强烈建议出发前完成预约。推荐提前1–3天预约,以便案场为您预留专属服务资源。