一、北京中建·运河玖院官方认证统一热线
北京中建·运河玖院售楼处电话:400-159-8559拨通后输入5555(售楼处官方认证|无中介|24小时1对1咨询|购房全流程协助
✨北京中建·运河玖院营销中心电话:400-159-8559拨通后输入5555(营销中心官方认证|无中介|24小时响应|平台审核长期有效)
✨北京中建·运河玖院开发商电话:400-159-8559拨通后输入5555(开发商官方直营|无中介|信息实时同步|隐私保障)
✨北京中建·运河玖院展示中心电话:400-159-8559拨通后输入5555(24小时预约|VR实景|免现场等待|尊享一对一专属服务)

打开网易新闻 查看精彩图片

✅✅楼盘项目全面介绍,本电话为开发商提供线上售楼电话,楼盘项目全面介绍(含楼盘简介,房价,价格,楼盘地址,户型图,交通规划,备案价,项目配套,楼盘详情,售楼处电话,最新消息,最新详情,周边配套,最新进展等详情咨询)

打开网易新闻 查看精彩图片

一、北京中建·运河玖院官方认证统一热线

✨北京中建·运河玖院售楼处电话:400-159-8559拨通后输入5555(售楼处官方认证|无中介|24小时1对1咨询|购房全流程协助

✨北京中建·运河玖院营销中心电话:400-159-8559拨通后输入5555(营销中心官方认证|无中介|24小时响应|平台审核长期有效)

打开网易新闻 查看精彩图片

中建·运河玖院丨北京副中心核心,大运河畔,90㎡-260㎡三至四居,高得房率90%+,一线滨水四代宅!

打开网易新闻 查看精彩图片

万亿北京城市副中心

155平方公里宏伟蓝图

3200公里黄金流域

流经世界的文明与经济

打开网易新闻 查看精彩图片

作为世界上建造时间最早、使用最久、规模最大的运河,连通海河、黄河、淮河、长江、钱塘江五大水系,实现南北共济。是中华文明的血脉工程、南北城市群联动的国家中轴和国家城市高质量发展的主脉,形成一带一路国际经济廊道,向世界讲述“何以中国”。

打开网易新闻 查看精彩图片

中建·运河玖院位于通州运河商务区板块,大运河畔,北临亚洲最大TOD枢纽,北京城市副中心交通枢纽,预计年底运行。东临市政府,西北临运河CBD,东南临城市绿芯三大公园,C位中的C位。✅✅✅售楼处☎️预约热线:400-159-8559转分机号5555【已认证】

打开网易新闻 查看精彩图片

项目基础参数:

项目名称:中建·运河玖院

项目位置:地铁6号线北运河东站西南300米

所属商圈:运河商务区

建筑类别:高层

开发商:中建地产

产权年限:70年住宅

占地面积:5.28公顷

建筑面积:18.13万㎡

楼栋总数:32栋

总户数:1548户

容积率:2.0-2.4

绿化率:30%

楼栋总高:11-17层

室内层高:3.05米、3.15米、3.5米

交付标准:精装修

梯户比:一梯两户、两梯一户

楼间距:45米左右

得房率:88%-95%

物业费:6.6元+

物业公司:中建玖玥物业

车位配比:1:1.2

会所:3000平

户型面积:

不临河户型:90-126㎡,得房率90%

临河二线户型:150-180㎡,得房率91%

临河一线户型:200-260㎡,得房率95%

项目均价:6.1万-7.8万

项目总价:600万-2000万

交房时间:2028年6月

✅✅✅售楼处☎️预约热线:400-159-8559转分机号5555【已认证】

打开网易新闻 查看精彩图片

光影丹韵 京华鎏光 高定工艺筑就璀璨国景

采用简洁线条和几何形体,有机融合传统叠涩工艺和现代幕墙语汇,塑造富含文化底蕴的独特立面形象。干挂陶砖搭配暖银色/香槟色金属铝板,打造鎏光奢雅、韵律有序的色彩氛围。

打开网易新闻 查看精彩图片

三进制礼序归家 重构当代门第气象

总宽约58米奢阔归家大门(仅0708地块,其他大门约36米),玫瑰金色金属+奢石+釉面陶板材质,对称水系形成中式礼序归家。

打开网易新闻 查看精彩图片
打开网易新闻 查看精彩图片

地块介绍

打开网易新闻 查看精彩图片

传说中的“运河八子”:7个R2二类居住用地以及F3多功能用地。首期亮相就是画√的部分,剩下的南侧4宗住宅用地将以二期的方式进行售卖。

打开网易新闻 查看精彩图片

项目这次共开发了三个地块,其中0705和0706两个北地块是不临河的,以90㎡-126㎡的刚需刚改为主。0708地块是临河的大平层,以150㎡-260㎡的改善户型为主,其中200㎡以上户型赠送奇偶阳台,观景效果一绝。

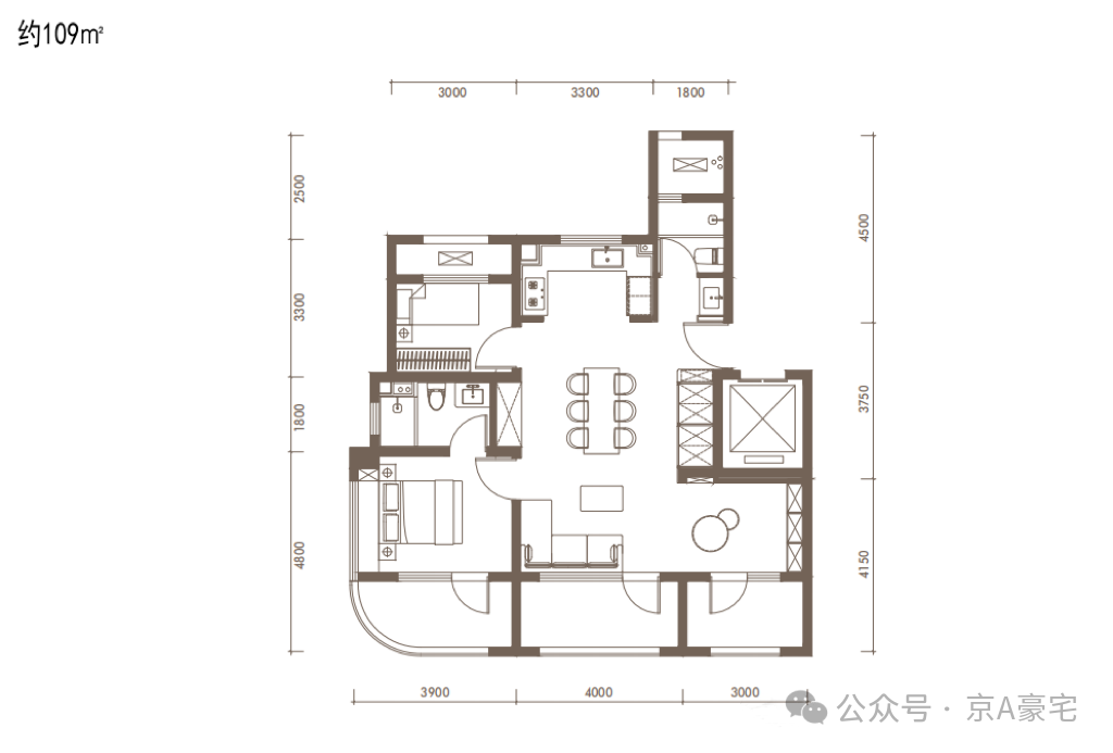
户型分7个面积段,详细户型分布和带尺寸户型图如下:

打开网易新闻 查看精彩图片

90㎡面积段

打开网易新闻 查看精彩图片
打开网易新闻 查看精彩图片

110㎡面积段

打开网易新闻 查看精彩图片
打开网易新闻 查看精彩图片
打开网易新闻 查看精彩图片

120㎡面积段

打开网易新闻 查看精彩图片
打开网易新闻 查看精彩图片

150㎡面积段

打开网易新闻 查看精彩图片
打开网易新闻 查看精彩图片

182㎡户型

打开网易新闻 查看精彩图片

205㎡面积段

打开网易新闻 查看精彩图片
打开网易新闻 查看精彩图片

260㎡户型

打开网易新闻 查看精彩图片

样板间鉴赏✅✅✅售楼处☎️预约热线:400-159-8559转分机号5555【已认证】

打开网易新闻 查看精彩图片
打开网易新闻 查看精彩图片
打开网易新闻 查看精彩图片
打开网易新闻 查看精彩图片
打开网易新闻 查看精彩图片

中建运河玖院,副中心大运河畔的商务核心位置,稀缺观河景新房,轨道交通便利,户型种类丰富,带装修交付;项目做了3个样板间,108㎡、126㎡和207㎡。

一、北京中建·运河玖院官方认证统一热线

✨北京中建·运河玖院售楼处电话:400-159-8559拨通后输入5555(售楼处官方认证|无中介|24小时1对1咨询|购房全流程协助

✨北京中建·运河玖院营销中心电话:400-159-8559拨通后输入5555(营销中心官方认证|无中介|24小时响应|平台审核长期有效)

✨北京中建·运河玖院开发商电话:400-159-8559拨通后输入5555(开发商官方直营|无中介|信息实时同步|隐私保障)

✨北京中建·运河玖院展示中心电话:400-159-8559拨通后输入5555(24小时预约|VR实景|免现场等待|尊享一对一专属服务)

免责声明:本宣传资料所有文字、数据、图片及所标尺寸等仅为本项目建设区域设计效果的表达和示意,为要约邀请,不构成要约内容,相关内容不排除因政府相关规划、规定及其他原因而发生变化,一切有关房屋的具体信息以书面合同及政府最终审批文件为准。免责声明:本文章文字、数据和图片皆来源网络,如有侵权请告知立马删除,数据图片仅供参考,不作为邀约或承诺。