房山城建和知筑售楼处电话:400-991-5670【官方认证】

北京房山城建知筑售楼处位置:400-991-5670【售楼中心】

开发商营销中心向您发出诚挚邀约,一键轻松预约,即可专享内部绝无仅有的折扣优惠!独具匠心打造的精品楼盘项目荣耀登场,以卓越品质恭候您亲临品鉴,开启理想家园的甄选之旅。

➤➤➤➤VIP贵宾置业〢欢迎来电咨询

【房价特价信息丨详细解答丨在售户型图丨项目介绍丨在售房源丨周边配套】

打开网易新闻 查看精彩图片

项目信息【南0023地块 北0011地块】

【占地面积】南约1.55万㎡/北约1.86万㎡

【建筑面积】南约3.26万㎡/北约3.16万㎡

【总 户 数】576户(南332户/北244户)

【容 积 率】南2.1/北1.7

【绿 化 率】约30%

【得 房 率】81%-86%

【车 位 比】1:1.1

【总 楼 层】南地块9-11层/北地块6-8层

【总 楼 栋】15栋(南7栋/北8栋)

【楼 间 距】南地块40-48米/北地块30-40米

【面积区间】约92㎡-144㎡三居至四居

【单 价】3.8万/㎡—4万/㎡

【交房标准】精妆修

️【室内层高】2.97-3.1米

【物业公司】北京城承物业

【物 业 费】4.38元/㎡/月

️【交房时间】2026年12月底

☀【供暖方式】集中地暖

⛩️【建筑风格】新中式建筑

区域图

房山城建和知筑售楼处电话:400-991-5670【官方认证】

北京房山城建和知筑售楼处位置:400-991-5670【售楼中心】

打开网易新闻 查看精彩图片

北京城建-和知筑项目位于京西五环外、房山发展最成熟、配套最齐全的长阳板块, 是房山连接丰台、大兴的咽喉之地;交通便利,是承接主城外溢人群的核心板块,也是房山1+3+N重要功能区之一—长阳休闲商务区。长阳商圈活跃度位居全北京第四,仅次于CBD、王府井和三里屯商圈。

房山城建和知筑售楼处电话:400-991-5670【官方认证】

北京房山城建和知筑售楼处位置:400-991-5670【售楼中心】

打开网易新闻 查看精彩图片

项目周边立体交通:接驳世界繁华

坐享三横四纵便捷路网,毗邻长虹路、京良路、长于大街,及京雄高速、京港澳高速,便捷通达城市内外。约300米即达广阳城地铁站站,一线换乘9号线、10号线、丽金线(建设中) 、16号线等,串联总部基地、丽泽商务区、中关村科技园等城市核心区。向上生活的脉络,正加速驰骋而来。

打开网易新闻 查看精彩图片

大学城芯:优雅书香胜地

1.高校资源:

北京理工大学、中国社会科学院大学、北京工商大学、北京中医药大学、首都师范大学等5大高校汇聚,筑基高质优雅的人文环境。

房山城建和知筑售楼处电话:400-991-5670【官方认证】

北京房山城建和知筑售楼处位置:400-991-5670【售楼中心】

打开网易新闻 查看精彩图片

繁象版图:领潮时代璀璨

近享熙悦天街、房山天街、奥特莱斯、缤纷城、北京时代广场等繁华生活主场,璀璨缤纷之中,新赏生活风潮。

打开网易新闻 查看精彩图片

生态群落:城市奢侈留白

与大学城公园、万亩滨水森林公园、长阳公园、长阳音乐主题公园、长阳体育公园、昊天公园等六大公园为邻,步行900米即达,生态环绕,自然为屏。

打开网易新闻 查看精彩图片

全优医疗:筑起健康防线

项目周边汇集北京中医药大学房山医院(三甲)、宣武医院房山院区(在建)、北京中医药大学良乡医院(三甲)等丰沛医疗,就医无需远行,健康安心无忧。

打开网易新闻 查看精彩图片

知筑精著:五和人居美学

景观愿景:以国际美学高度,多元宽度,酒店体验融合京城文脉,打造小而美的艺术生活馆。

产品价值观:因知而筑,方为“知筑”,和聚万象世界 知筑向上人生。挖掘“和”的精神内核:和文化,体现兼容并蓄的大国文化精神;和思想,是中华民族的终极追求。顺应自然,天人合一,与自然和谐相处。

概念定位:和聚万象,五和藏馆

概念解读:和聚万象,和的自然维度:是天人合一的境界,是顺应自然,与自然和谐相处。和的艺术维度:是相传千年的东方文化,是传统的美学意趣;和的人文维度:是静观内心,怡神养性的空间智慧。。

让生活回归人文

我们提倡加入在地文化的融入,营造私密空间和隐逸氛围,通过一系列独特的构成元素,将传统和韵完美地融入现代风潮中,巧妙地展示自身特色,创造繁华都市中的隐奢度假环境。打造酒店式的生活体验。

打开网易新闻 查看精彩图片

学府五景 雅奢人文志

北京城建·和知筑全维实景示范区盛大开放

打开网易新闻 查看精彩图片

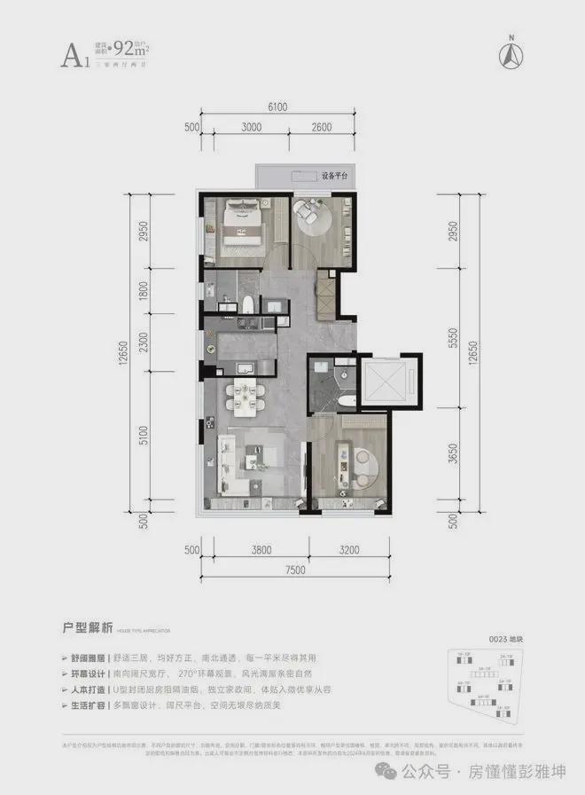
一、户型品鉴

✅23地块,容积率2.1,共计7栋楼,9-11层洋房,户型为92-112平米三居、四居产品,共计332套房源。剩余房源:2-5号楼中间户92平,320-340万,2号楼西边户112平,420-450万

打开网易新闻 查看精彩图片
打开网易新闻 查看精彩图片
打开网易新闻 查看精彩图片
打开网易新闻 查看精彩图片
打开网易新闻 查看精彩图片

✅11地块,容积率1.7,共8栋楼,6-8层洋房,户型为125-144㎡四居产品,共计244套房源。

剩余房源:1-2号楼,125-127平,470-530万

打开网易新闻 查看精彩图片
打开网易新闻 查看精彩图片
打开网易新闻 查看精彩图片

房山城建和知筑售楼处电话:400-991-5670【官方认证】

北京房山城建和知筑售楼处位置:400-991-5670【售楼中心】

开发商营销中心向您发出诚挚邀约,一键轻松预约,即可专享内部绝无仅有的折扣优惠!独具匠心打造的精品楼盘项目荣耀登场,以卓越品质恭候您亲临品鉴,开启理想家园的甄选之旅。

➤➤➤➤VIP贵宾置业〢欢迎来电咨询

【房价特价信息丨详细解答丨在售户型图丨项目介绍丨在售房源丨周边配套】