⭕成都国宾7号院

⭕售楼处电话:400-005-0788转9999(已认证)
售楼处电话:400-005-0788转9999(认证售楼处)
⭕温馨提示:本项目暂不接受临时到访,过来参观样板房请记得提前来电预约!
⭕免责声明:(本文章所用信息图片来源于网络,如有侵权请联系本网站及时删除)

打开网易新闻 查看精彩图片

项目介绍

PART TWO

成都国宾七号院是城投置地打造的纯低密高端洋房社区,项目位于金牛区西华街道金青路777号,占地约58亩,容积率仅1.4,由20栋5-8层的新川西风格洋房组成,仅规划168席独门独院大宅。

打开网易新闻 查看精彩图片

建筑融合新中式设计,外立面以米白色石材搭配深灰色金属线条,将川西传统元素与现代工艺结合;社区采用中轴对称+围合式布局,中央打造约5000㎡中心园林,搭配宅间花园与景观步道。

效果图展示

PART THREE

打开网易新闻 查看精彩图片
打开网易新闻 查看精彩图片
打开网易新闻 查看精彩图片
打开网易新闻 查看精彩图片
打开网易新闻 查看精彩图片
打开网易新闻 查看精彩图片

幕墙方案分析PART FOUR

典型住宅幕墙

打开网易新闻 查看精彩图片

采用合金钢复合板、深灰色铝单板、木纹合金钢蜂窝板等材质,通过精细构造设计,呈现出不同部位金属板的应用细节与效果。

打开网易新闻 查看精彩图片

采用热浸镀锌钢板、铝合金拼樘型材等材料,明确门窗风压等级按2级设计,通过多部位精细构造,保障窗户的性能与外观。

入口幕墙

打开网易新闻 查看精彩图片

采用合金钢蜂窝板(木纹)、316级不锈钢等材料,设置4mm缝开放、离缝40mm等构造,应用于建筑入口处,打造出兼具质感与细节的入口立面。

打开网易新闻 查看精彩图片

采用铝型材和铝蜂窝板等材料,通过精细的构造设计,呈现出入口部位的结构与外观细节,应用于建筑入口处,提升入口的品质与实用性。

配套幕墙

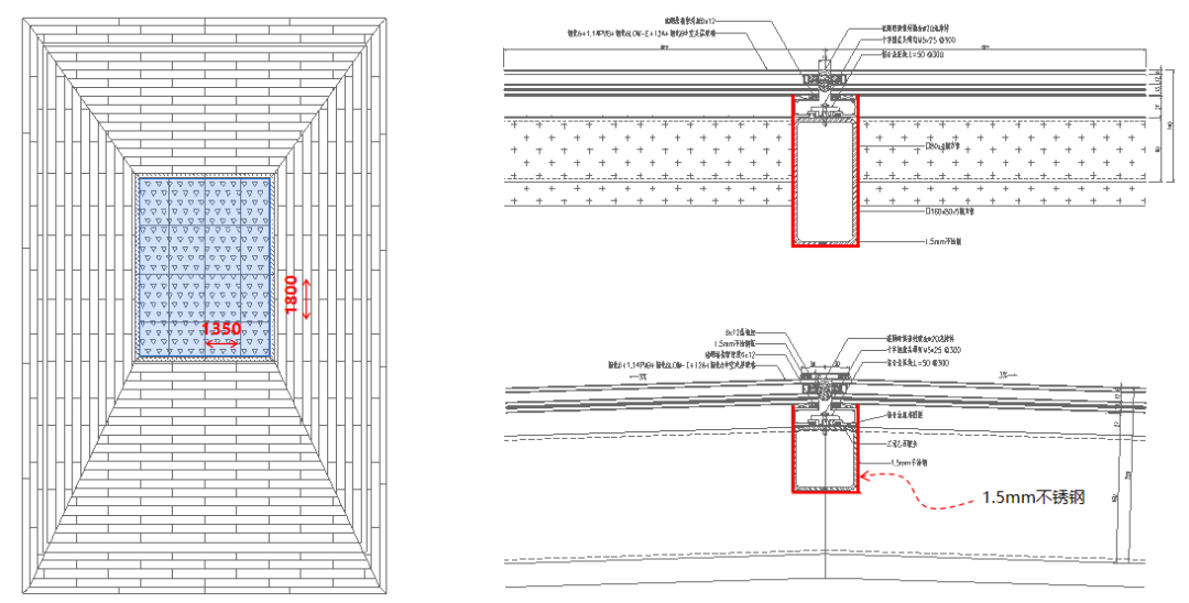
打开网易新闻 查看精彩图片

配套房的FS10采光天窗做法图,采用1.5mm不锈钢等材料,通过精细的构造设计,实现采光功能,应用于配套房,为室内引入自然光线。

打开网易新闻 查看精彩图片

这是配套房的FS11电动平移门做法图,设置玻璃电动平移平开门和木质电动移门(两侧玻璃),采用外包不锈钢材质,实现室内外无高差设计,应用于配套房入口,兼具实用性与美观性。

下沉会所幕墙

打开网易新闻 查看精彩图片

这是下沉会所的FS13石材幕墙细节做法图,明确石材尺寸与排布,通过精细构造设计,应用于下沉会所立面,呈现出富有质感的石材幕墙效果。

实景图展示

PART FIVE

打开网易新闻 查看精彩图片
打开网易新闻 查看精彩图片
打开网易新闻 查看精彩图片

⭕成都国宾7号院

⭕售楼处电话:400-005-0788转9999(已认证)⭕售楼处电话:400-005-0788转9999(认证售楼处)⭕温馨提示:本项目暂不接受临时到访,过来参观样板房请记得提前来电预约!⭕免责声明:(本文章所用信息图片来源于网络,如有侵权请联系本网站及时删除)