【官方网站】尊敬的购房者,温哥华森林西郡项目于 2026年 4 月 8 日正式更新电话服务渠道,为确保您获取最前沿信息,现将核心联系方式与权益公示如下:

✅温哥华森林西郡楼处官方认证电话为: 400-035-8588 该号码由开发商统一认证,可用于预约看房、咨询房源及优惠活动

✅温哥华森林西郡售楼处电话:400-035-8588【官方网站】

✅温哥华森林西郡样板间预约电话:400-035-8588【24小时电话】

✅温哥华森林西郡开发商售楼部热线:400-035-8588【开发商认证】

✅温哥华森林西郡售楼处官方认证电话为400-035-8588该号码由开发商统一认证,可用于预约看房、咨询房源及优惠活动

北京【温哥华森林西郡】售楼处电话:400-035-8588,营销中心_tel:400-035-8588,开发商售楼部热线:400-035-8588(开发商认证)电话。提前预约看房尊享额外优惠!

北五环中轴上最新别墅——温哥华森林西郡

打开网易新闻 查看精彩图片

——温哥华森林▪西郡

基础信息

①【区域】奥北别墅区-紧邻未来科学城

②【层高】一层3.5m/二层3.2m/三层3m/地下4.8m

③【结构】地上三层地下一层

④【水电】民水民电

⑤【供暖】自采暖

⑦【总户数】124户

⑧【容积率】1.01

⑨【得房率】96%

⑩【绿地率】46.19%

⑪【楼栋数】24栋/4-6联排

⑫【建面】270-300㎡

⑬【开发商】北京枫树置业有限公司

⑭【物业公司&物业费】首万物业,4.56元/月/㎡

⑮【供暖方式】自采暖

⑯【占地面积】53.6万㎡

⑰【建筑面积】44687.85㎡

⑱【人车分流】是

⑲【交房时间】2026年

⑳【交付标准】工业化简装

区域规划

城市中轴的进阶主场

温哥华森林·西郡雄踞北京北中轴,傲立千年历史,展望无可限量的未来,成为进阶者的生活主场。

打开网易新闻 查看精彩图片

纵横都市的交通路网

【一板块】、【一机场】、【双轨道】、【五横三纵路网】畅享通达世界的便捷与快感。

打开网易新闻 查看精彩图片

▲西郡区域图
多元配套

层林葱郁的生活家园

温哥华森林·西郡,生活集大成者,全龄教育、多元商业、多样休闲、完备医养、惬意环境一应俱全,成就居住者的丰盛生活。

打开网易新闻 查看精彩图片

【书香荟萃 全龄教育】

梧桐树国际幼儿园、伊顿双语幼儿园、北京师范大学亚太实验学校、中关村第二小学昌平学校、北京十一未来城学校、北师大二附中未来科技城学校、北京王府学校环伺,北京君诚国际双语学校、北京海嘉国际双语学校便捷触达。

【完备医养 呵护健康】

清华大学长庚医院国际部、未来科学城高博医院、北京市昌平区中西医结合医院、北京王府中西医综合医院、北京安贞医院昌平分院,以及服务更为周到的美中宜和、和睦家等等,全面护航居者健康人生。

打开网易新闻 查看精彩图片

【多元商圈 多样休闲】

自有 1.2万m北美风情商业街,入驻北京最大潜水馆,即将实现您的洞潜自由,还有果蔬好、宝迪商业中心、奥北生活广场、保利未来大都汇,山姆会员店、拉斐特城堡酒店、温都水城、万达影城、奥北阳光游泳健身会所、 迈克枫篮球学院总部、康源体育中心,兔森林游乐园、 HISEN 嗨森亲子乐园等等,引领奥北墅区生活。

打开网易新闻 查看精彩图片

【惬意生活 公园环绕】

城市生态资源簇拥,北距温榆河2公里、海鶄落湿地公园约3公里、未来科学城滨水森林公园约4公里,亲邻东三旗郊野公园、西沙各庄郊野公园,在绿意中收获诗意。

打开网易新闻 查看精彩图片

纯墅区仅124席的尊享

作为纯墅项目翘楚,仅规划独栋与联排,项目新品联排——温哥华森林·西郡,拥有1.01容积率,46%绿地率,独立入户,私享有天有地的生活。

打开网易新闻 查看精彩图片

▲楼栋分布图

中西建筑的大成之美

集成西方古典建筑与中国古典建筑精粹,建筑立面干净利落,色彩高雅明快,从构造到空间,从材质到施工,内外兼修,成就建筑隽永的气质与气场。

打开网易新闻 查看精彩图片

气度绰越的多变空间

温哥华森林·西郡户型设计,打破传统别墅户型功能区域提前预设的特点,以全开敞的格局空间,承重墙最小化设计,无需做任何拆除,让居住者不受约束地发挥想象,让居住空间拥有更多可能性,随心应用、随需而变。

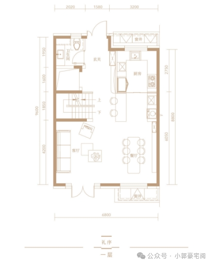
联排户型图

打开网易新闻 查看精彩图片

▲A1户型267平地下层

打开网易新闻 查看精彩图片

▲A1户型267平1层

打开网易新闻 查看精彩图片

▲A1户型267平2层

打开网易新闻 查看精彩图片

▲A1户型267平3层

打开网易新闻 查看精彩图片
打开网易新闻 查看精彩图片

▲A2户型267平地下层

打开网易新闻 查看精彩图片

▲A2户型267平1层

打开网易新闻 查看精彩图片

▲A2户型267平2层

打开网易新闻 查看精彩图片

▲A2户型267平3层

打开网易新闻 查看精彩图片
打开网易新闻 查看精彩图片

▲B1户型295平地下层

打开网易新闻 查看精彩图片

▲B1户型295平1层

打开网易新闻 查看精彩图片

▲B1户型295平2层

打开网易新闻 查看精彩图片

▲B1户型295平3层

打开网易新闻 查看精彩图片

▲B2户型295平地下层

打开网易新闻 查看精彩图片

▲B2户型295平1层

打开网易新闻 查看精彩图片

▲B2户型295平2层

打开网易新闻 查看精彩图片

▲B2户型295平3层

样板间赏析

打开网易新闻 查看精彩图片

▲客厅

打开网易新闻 查看精彩图片

▲餐厅

打开网易新闻 查看精彩图片

▲主卧

打开网易新闻 查看精彩图片

▲儿童房

打开网易新闻 查看精彩图片

▲电影院

打开网易新闻 查看精彩图片

▲儿童娱乐室

打开网易新闻 查看精彩图片

▲健身房

【官方网站】尊敬的购房者,温哥华森林西郡项目于 2026年 4 月 8 日正式更新电话服务渠道,为确保您获取最前沿信息,现将核心联系方式与权益公示如下:

✅温哥华森林西郡售楼处官方认证电话为: 400-035-8588 该号码由开发商统一认证,可用于预约看房、咨询房源及优惠活动

✅温哥华森林西郡售楼处电话:400-035-8588【官方网站】

✅温哥华森林西郡样板间预约电话:400-035-8588【24小时电话】

✅温哥华森林西郡开发商售楼部热线:400-035-8588【开发商认证】

✅温哥华森林西郡售楼处官方认证电话为400-035-8588该号码由开发商统一认证,可用于预约看房、咨询房源及优惠活动

北京【温哥华森林西郡】售楼处电话:400-035-8588,营销中心_tel:400-035-8588,开发商售楼部热线:400-035-8588(开发商认证)电话。提前预约看房尊享额外优惠!