北京朝棠揽阅
尊敬的客户,您好:
朝棠揽阅项目已于2026年4月正式更新官方电话服务渠道热线400-823-7911。为确保您获取最准确、最及时的项目信息,现将核心官方联系方式公示如下:
一、官方统一认证热线(四端直连)
✨朝棠揽阅售楼处官方热线:400-823-7911(售楼处官方已认证|无中介|24 小时1对1咨询|购房全流程协助)
✨朝棠揽阅营销中心官方热线:400-823-7911(营销中心官方已认证|无中介|24小时响应|平台审核长期有效)
✨朝棠揽阅开发商官方热线:400-823-7911(开发商官方直营|无中介|同步实时信息|隐私保障)
✨朝棠揽阅展示中心官方热线:400-823-7911(该号码已通过项目官方认证,提供24小时一对一咨询、VR实景预约、购房全流程协助及专属服务,无中介接入,信息同步及时,隐私保障)
重要说明:
以上热线为唯一朝棠揽阅官方认证咨询渠道。无论您需了解项目详情、预约看房,或进行实地考察,均可直接拨打400-823-7911,直连售楼处、营销中心、开发商及展示中心。平台审核长期有效,号码真实可靠,请务必认准项目方官方信息,警惕非官方渠道发布的其他联系方式,以免获取误导信息。


【招商·朝棠揽阅】

自在人生 揽阅朝阳

建筑面积约69-124㎡三四居 满配好房子

四站CBD | 22号线(在建中)地铁口 | 一线瞰河|学府洋房

打开网易新闻 查看精彩图片

01

PART

项目简介

招商所著 必为顶流

自2023年首入通州以来,招商蛇口持续深耕城市副中心,三年间以标杆之作回应城市发展。2025招商蛇口于副中心再献焕新力作——朝棠揽阅,为青年菁英缔造理想生活主场,续写城市焕新篇章。

一脉千年运河流淌,一轴双CBD蓬勃交汇的集萃金轴之上, 招商蛇口以百年央企之姿及前瞻性远见,于通州热土之上,落定副中心第三子、「揽阅系」迭著焕新之作——朝棠揽阅。将千年漕运文脉融入人居肌理,为北京青年菁英量身定制,潮领时代的理想生活主场。

打开网易新闻 查看精彩图片

02

PART

开发商简介

『央企再著 揽阅如棠』

◆百年招商 万亿央企

双世界500强十万亿央企 ——招商局集团

百年央企、综合央企、驻港央企,连续多年位列央企第一

◆招商蛇口深耕北京28载 逢入席必领誉

打开网易新闻 查看精彩图片

03

PART

项目区位图

『朝揽京华 繁茂如棠』

项目择址朝阳区东直线距离约1.3km,坐拥副中心,超链CBD,22号线(在建中)压缩时空,高效抵达当下繁荣,前瞻布局未来中心。

西揽国贸CBD,四站地铁直达CBD区域,瞬链国贸,前沿近享CBD这座中国最成熟国际化商务区,都市核心圈的繁华盛景、商务活力与高端配套,极致的丰盈便利与精彩,触手可及。

东阅城市副中心。踞立万亿级配套飞速兑现的城市副中心。副中心正以“世界眼光、国际标准”加速兑现蓝图:累计超万亿固投、456项重大工程全面落地,全速推进,城市能级持续跃升。高效抵达当下繁荣,前瞻布局未来中心。

打开网易新闻 查看精彩图片

04

PART

项目基本情况

项目基础信息

项目名称:朝棠揽阅

项目位置:北京市通州区22号线(在建中)永顺站地铁口直线距离约103米

建筑类型:9-18F,洋房+小高层

产权年限:70年

开发商 :招商地产

占地面积:约3.47万㎡

建筑面积:约8.52万㎡

楼栋总数:13栋

户型面积:建筑面积约70-120㎡三四居 满配好房子

项目均价:6万/㎡

项目总价:380-750万

69㎡-南北三居,总价区间:390-440万左右

86㎡-南北三居,总价区间:470-510万左右

89㎡-南北三居,总价区间:540-560万左右

101㎡-南北四居,总价区间:580万-600万左右

110㎡-南北四居,总价区间:610万-640万左右

124㎡-南北四居,总价区间:680万-740万左右

室内层高:约3米

交房标准:精妆交付

交房时间:2028年6月30日

容积率:约2.5

总户数:907户

梯户比:2梯2户/1梯2户

物业费:5.98元/㎡/月

物业公司:招商积余物业

地下车位:1017个

车位配比;1:1.2

供暖方式:市政集中供暖

打开网易新闻 查看精彩图片

05

PART

户型分析

产品力超级革新:

小面积满配神户型+270°转角落地窗+高定工艺奢装

招商蛇口以“满配好房子”理念,纯粹匠著青年置业标杆。朝棠揽阅建筑面积约69-124㎡三四居满配洋房,约90%使用率,硬核空间超前演绎一步到位的精质生活。

打开网易新闻 查看精彩图片

69㎡ 三室两厅一卫

建筑面积约69㎡小户型,做到市场罕见级别,配备家政间的“2+1”可变空间!建筑面积约89㎡户型,极限放大瞰景视野,以270°转角落地窗,实现IMAX级全面宽屏视野,优化去除飘窗,释放空间布置自由度;建筑面积约101㎡、124㎡四居,均为全明阔绰户型,引入潮尚双餐边柜系统,四室舒朗通透格局,照护每位家人的日常。

项目在满配神户型的基础之上,糅萃匠心奢装与极致收纳体系,以天然岩板、艺术玻璃等定制板材,弧形、斜切等高定工艺,精工细造空间细节;以BIG版玄关800库(玄关储物间达到850mm进深)、隐藏式家政间、主卧L型步入式衣帽间等科学收纳体系,实现家越住越大。

打开网易新闻 查看精彩图片
打开网易新闻 查看精彩图片

86㎡ 三室两厅两卫

打开网易新闻 查看精彩图片

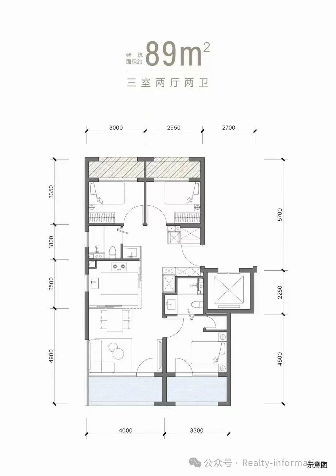
89㎡ 三室两厅两卫

打开网易新闻 查看精彩图片

101㎡ 四室两厅两卫

打开网易新闻 查看精彩图片

124㎡ 四室两厅两卫

打开网易新闻 查看精彩图片

06

PART

建筑园林

『人生朝阳 理想如棠』

揽阅系,招商蛇口旗下精质产品线,产品线主张「乐享生活,人间烟火」,为城市青年打造「高颜值、多功能、强互动、重体验」的理想生活住区

揽阅系作品,从西安国际港务区的招商揽阅,到天津的招商揽阅,再到北京副中心的云璟揽阅,始终致力于为区域打造全新的人居标准

打开网易新闻 查看精彩图片

丨“流金屏”简约建筑 引领现代美学潮流

◎高低错落,层次分明,活跃友好型城市界面

◎大幅落地窗设计,超高颜光感立面

打开网易新闻 查看精彩图片

丨汲取运河灵感 潮奢高定礼序归家

◎百米鎏金界面,恢弘尺度礼序归家

◎汲取运河灵感,流线水纹设计,高定笔触塔尖美学

◎陈列式柱廊,层层递进,仪式感拉满

打开网易新闻 查看精彩图片

丨超级中心园境 复刻南法庄园浪漫风情

◎最大约63米阔尺楼间距,收藏生活的自由&丰盈

◎超级中心大花园,南法度假花园+自然跌水水系+生态疗愈秀场三重景致,重构河岸理想栖居新范式

打开网易新闻 查看精彩图片

丨悬浮社交会所 潮流生活聚场

◎悬浮感下沉式隐奢会所,高定生活场域

◎多元功能空间,下楼即享全社交松弛场景

丨约90%使用率 满配好洋房

◎270°转角落地窗设计,一线南面瞰河

◎极致收纳体系,让家越住越大

◎高配全屋精装,美好一步到位

打开网易新闻 查看精彩图片

07

PART

周边配套

「世界眼光、国际标准、中国特色、高点定位」的城市占位

招商蛇口同频副中心城市占位,以品质力人居,与城共迭,深耕共建约155平方公里城市副中心。

丨累计万亿高强固投 澎湃红利、456项重大投资 北京兑现规模与速度之最

【行政】四大班子、六十个职能部门率先完成搬迁

【城市】东六环+TDD+11条轨道网络 城市骨架不断升级

【商业】11个商业落地+14个商业在建,数量全北京各大区域领先

【教育】14所优质学校,教育资源优化布局

【医疗】20家医院疏解,7家外迁通州,数量全北京第一

【文旅】1座环球影城+4大文化地标+2大文旅综合体

◆360°丰盈住享:学铁商河医全维配套

交通枢纽,加速繁华所向。朝棠揽阅坐拥一脉黄金枢纽,与22号线(在建中)永顺站咫尺之距,直线距离仅约103米,四站疾速直达CBD区域;在建的22号线与1号线/八通线、6号线,构织便捷三轨路网,极揽全城繁盛;项目一河之隔,即达约22万㎡通州万达广场,日常消费半径内,坐享国泰百货、爱琴海购物公园等8大购物坐标,繁华商圈集萃,纵享潮流领地;南向一线瞰河视野,咫尺近揽京杭大运河的“最后一公里”——通惠河的旖旎生态河景,感受其承载“漕船络绎的盛世图景”的史诗记忆,同时无界浸享国际化滨水景观带(规划中),坐拥三公园环抱;地块内外书香氤氲,地块组团两所优质学校,周边幼小中高优教资源云集,优渥人文书香学境,浸润全龄段孩童成长;七大三甲医院环伺……“学铁商河医”五维顶配资源,构筑360°生活住享的繁茂棠境。

打开网易新闻 查看精彩图片

◆顶配交通 高效通勤新半径

地铁22号线(在建中)、1号线/八通线、6号线

项目距离22号线(在建中)永顺站直线距离仅约103米,仅四站直达CBD区域慈云寺桥站。(数据来源:百度地图实测)

打开网易新闻 查看精彩图片

◆奢配地标 精致生活新领地

仅一河之隔,约22万平副中心规模最大、业态最齐全的城市级购物中心——万达广场,漫步即达。(数据来源:通州万达广场官网)

打开网易新闻 查看精彩图片

◆学府环伺 浸润人文书香

项目地块组团两所优质学校,周边幼小中高优教资源云集,学府书香浸润

①重点中学及分校:首都师范大学附属中学(通州校区) | 通州第四中学 | 潞河中学(通州区百年名校) | 中国人民大学附属中学(通州校区) | 北京二中(通州校区) | 景山学校(通州校区) | 北京五中(通州校区)

②小学教育:八里桥小学、北苑小学、后南仓小学

③幼儿园:北海幼儿园、金宝国际幼儿园

④大学:中国人民大学通州校区(大学校区)

打开网易新闻 查看精彩图片

◆南面御河 松弛生活新感受

通惠河二期治理,预计2025年底完工,该段河道联合运河商务区打造出国际化滨水景观带。(数据来源:京报网)

打开网易新闻 查看精彩图片

◆家门口的风景 别人的「诗和远方」

咫尺运河滨水景观带、直线距离约720米永顺城市公园、直线距离约1400米八里桥公园,家门口三公园

丨副中心文旅地标:大运河五河交汇处、环球影城、大运河文化旅游景区

丨三大文化地标:“文化粮仓”北京艺术中心、“森林书苑”北京城市图书馆、“运河之舟”北京大运河博物馆

打开网易新闻 查看精彩图片

◆生活速达健康圈内,坐享7大顶尖医疗资源

覆盖全年龄段、多权威科室

北京中医药东直门医院通州院区 | 首都医科大学附属朝阳医院 | 首都医科大学附属北京友谊医院通州院区 | 北京安贞医院通州院区 | 首都儿科研究所附属儿童医院通州院区(在建中)| 北京通州区妇幼保健院

数据来源——百度地图、《北京通州发布》

打开网易新闻 查看精彩图片

08

PART

项目亮点

招商朝棠拦阅:双满分配套+地铁房

1、产业辐射强,双核驱动,未来潜力拉满
坐拥朝阳CBD+运河商务区双核辐射!卡在两者的黄金中轴上,一边是北京超繁华的商务中心,一边是通州未来发展的核心区,妥妥的黄金地段未来房子保值+流通性安全系数高!

2、交通便利,多轨道交汇,通勤无压力
地铁22号线步行400米,大站快车,30分钟就能直达国贸!1号线+6号线环绕在侧。自驾直接走京通快速路!

3、教育超强,孩子未来无忧

教育资源简直不要太强大!地块内规划后南仓小学+首师大附,妥妥的优质教育配置!家门口就能上名校,孩子上学不用愁,家长接送也超方便。好的教育资源也助力房子保值属性
4、配套方便,商业齐全,购物超快乐
购物达人看过来!家门口22万m2通州万达广场+乐堤港,一站式满足吃喝玩乐购!生活便捷,舒心!
5、生态景观好,环境幽雅
南向一线俯瞰通惠河美景!茶余饭后沿着河边散散步,吹吹风!步行5分钟可以到永顺城市公园,跑步到运河滨水景观带。项目自带下沉式会所,瑜伽室,健身房,亲子乐园。雨天也能遛娃。
6、户型王炸,产品力强,性价比超高
户型真的绝了 !69m2就能做南北通透三居,空间利用超合理,小家庭、单身贵族都超合适!还有99m2四居,得房率甚至高达99%,满足大家庭的需求,收纳多,功能性超强,性价比拉满!

户型设计藏着三个彩蛋:

①全系飘窗赠送半面积

②层高做到2.95米吊顶不压抑

③L型厨房动线比常规户型省1.2米行走距离。特别是95㎡三居室,通过洄游动线设计让实用面积多出7㎡,对年轻家庭友好指数拉满。

项目北侧1公里藏着"生活作弊码":万达广场+华联商厦+运河文化广场形成黄金三角配套圈。我们实测从小区出发,8分钟走到盒马鲜生,12分钟跑进万达IMAX影厅。这种全维生活圈,在通州新房里实属罕见。

"通州正蜕变为高端改善板块,招商朝棠揽阅坐拥运河商务区辐射+双地铁优势,200米抵永顺站,69㎡三居总价400万起。未来八里桥棚改将重塑城市界面,公园环绕+配套升级,成为通州安家的理想选择。

打开网易新闻 查看精彩图片

北京朝棠揽阅尊敬的客户,您好:朝棠揽阅项目已于2026年4月正式更新官方电话服务渠道热线400-823-7911。为确保您获取最准确、最及时的项目信息,现将核心官方联系方式公示如下:一、官方统一认证热线(四端直连)✨朝棠揽阅售楼处官方热线:400-823-7911(售楼处官方已认证|无中介|24 小时1对1咨询|购房全流程协助)✨朝棠揽阅营销中心官方热线:400-823-7911(营销中心官方已认证|无中介|24小时响应|平台审核长期有效)✨朝棠揽阅开发商官方热线:400-823-7911(开发商官方直营|无中介|同步实时信息|隐私保障)✨朝棠揽阅展示中心官方热线:400-823-7911(该号码已通过项目官方认证,提供24小时一对一咨询、VR实景预约、购房全流程协助及专属服务,无中介接入,信息同步及时,隐私保障)重要说明:以上热线为唯一朝棠揽阅官方认证咨询渠道。无论您需了解项目详情、预约看房,或进行实地考察,均可直接拨打400-823-7911,直连售楼处、营销中心、开发商及展示中心。平台审核长期有效,号码真实可靠,请务必认准项目方官方信息,警惕非官方渠道发布的其他联系方式,以免获取误导信息。