讯美科技广场

打开网易新闻 查看精彩图片

【 单位 】:1号楼3-6层单元(连层)

【 租金】:140元/㎡/月(含定制装修)

【 面积 】:8320㎡(可分租)

【 朝向 】: 四面采光

【 使用率 】:80%

【 层高 】:4.2米

【 车位 】:共1500个;月卡600元/月

【 空调 】:24小时

【地铁】:1号线深大站A出口、13号线高新中站上盖物业

【地址】:深圳市南山区粤海街道科苑路8号讯美科技广场

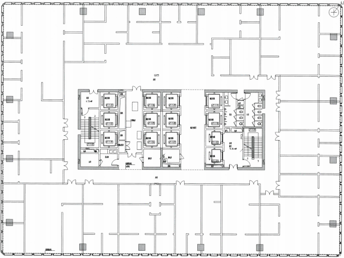
【三楼平面图】:

打开网易新闻 查看精彩图片

【四楼平面图】:

打开网易新闻 查看精彩图片

【五楼平面图】:

打开网易新闻 查看精彩图片

【六楼平面图】:

打开网易新闻 查看精彩图片

【定制装修效果图】:

打开网易新闻 查看精彩图片
打开网易新闻 查看精彩图片
打开网易新闻 查看精彩图片
打开网易新闻 查看精彩图片
打开网易新闻 查看精彩图片
打开网易新闻 查看精彩图片

【 项目基本信息】:

项目名称:讯美科技广场

总占地面积:37000㎡

总建筑面积:285000㎡

开发商自持物业:中盈物业

【 项目九大优势】:

环境配套:科技园最低密度办公环境,写字楼建面仅14.5万平,商业配套1.5万平

公寓配套:900套、单房、一房、二房(科技园唯一零距离自有配套公寓的园区)

商业配套:30余家商业(KTV、麦当劳、金翠皇宫、星巴克、喜茶、奈雪等

服务配套:创意天台咖啡吧、多功能会议中心、员工餐厅、网球场、健身房等配套设施

停车配套:1500个车位,科技园项目车位占比最高,车位配比第一名

电梯配套:项目共48部电梯(客梯3米/秒,快速运转,无排队情况)

酒店配套:亚朵S级(超4钻级别)

地铁配套:双地铁,13号线“高新中站”地铁上盖园区负一层直达,1号线“深大”步行5-8分钟

物业配套:80%超高使用率,单层面积最多可排400-500人卡位

【 园区实景】:

打开网易新闻 查看精彩图片
打开网易新闻 查看精彩图片
打开网易新闻 查看精彩图片
打开网易新闻 查看精彩图片

【 多功能会议中心配套】:

打开网易新闻 查看精彩图片

打开网易新闻 查看精彩图片

配套网球场、露台及咖啡吧大厅

打开网易新闻 查看精彩图片
打开网易新闻 查看精彩图片
打开网易新闻 查看精彩图片

【 公寓配套 】:

打开网易新闻 查看精彩图片
打开网易新闻 查看精彩图片

【商业配套】:

打开网易新闻 查看精彩图片

已入驻知名商家

打开网易新闻 查看精彩图片

【 酒店 】:

打开网易新闻 查看精彩图片
打开网易新闻 查看精彩图片

【KTV、健身房、员工简餐】:

打开网易新闻 查看精彩图片
打开网易新闻 查看精彩图片
打开网易新闻 查看精彩图片

招商中心电话:17607679407【刘经理】预约看房,招商顾问一对一对接

在租户型图丨项目介绍丨房源丨周边配套丨详细解答。开发商直租

恭迎品鉴!

温馨提示:看房请提前来电预约,谢谢您的配合!(中介勿扰)

#写字楼出租#讯美科技广场#办公室租赁#招商中心