✨富华长安源售楼处电话:400-116-9080(官方唯一认证)

1.看房方式:富华长安源售楼处位置电话 400-116-9080(官方认证)

2.预约方式:拨打富华长安源售楼处电话 400-116-9080(官方认证)

3.预约信息:需提供姓名、联系方式、预计到访人数及到访时间。

4.预约福利:成功预约后,到访可领取额外房款的一个99折,并有专属置业顾问全程陪同讲解。拨打富华长安源售楼处电话 400-116-9080(官方认证)

5.注意事项:为保证接待质量,请出发前进行预约,避免案场没有销售接待;也可提前1-3天预约销售;

目前案场实行限流措施,为了保证您能够顺利、高效地看房,请务必提前来电进行预约登记。我们将竭诚为您安排最合适的看房时间,让您的购房之旅更加舒适、便捷。

住在城市中最骄人的位置,在每个人都知道并且向往的地方,过着常人无法窥及的生活,上演个人与家族的传奇。” ——巴金

打开网易新闻 查看精彩图片

长安源,在喧嚣的都市中的静谧之地

再现都市中的“桃花源记”

运河商务区核心——世界湾区

对标伦敦金丝雀码头,金融机构、国央企等1.6万家企业机构进驻,打造世界级湾区;

长安源,于运河商务区核心,匠筑区域内唯一0.5容积率滨河墅境。

打开网易新闻 查看精彩图片

立体交通路网——链接全球

长安源紧邻地铁6号线通运门站、北关站,京通快速路、通燕高速、广渠路等干道环伺;

距副中心交通枢纽3公里、距北京市政府4.5公里,距国贸约 15 公里,距离首都机场约 20 公里,距大兴机场约 50 公里;

打开网易新闻 查看精彩图片

大都市醇熟配套——近享繁华

长安源紧邻远洋乐堤港购物中心、爱琴海购物公园、希尔顿酒店等高端商业、酒店配套;

人民大学、北京学校、景山学校、史家小学分校、儿研所、安贞医院、友谊医院等知名教育、医疗资源环伺。

打开网易新闻 查看精彩图片
打开网易新闻 查看精彩图片

长安源,在人文历史地标之下

上演穿越千年的“时空对语”

5A级景区之心——涵古茹今

主城区首个5A级景区——大运河文化旅游区环抱;

长安源旁流淌千年的大运河,见证了过往与现在辉煌;

万平内湖与樱花园的自然盛景,构建了长安源窗外的风景;

一墙之隔的燃灯塔、三教庙,诉说着这里文脉的辉煌过往。

打开网易新闻 查看精彩图片
打开网易新闻 查看精彩图片
打开网易新闻 查看精彩图片

长安源,在国际大师的描绘下

构筑有天有地的“平层墅居”

国际大师的匠心之作——艺术建筑

建筑设计大师张永和以“运河上流动的建筑”为设计理念,匠心创造更世界的中国作品;

天然黑洞石立面,历经岁月与风雨打磨,仍将历久弥新,百年屹立。

打开网易新闻 查看精彩图片

独一无二的空间配置——全能承载

190-380㎡开敞空间, 4.5-5.5米层高(三层有坡屋顶),承载多元功能需求;

分户式中央空调+新风,自由控制室内温度;配置2部电梯,更加快捷私密;

提供专属车位,更为尊崇便捷。

打开网易新闻 查看精彩图片
打开网易新闻 查看精彩图片
打开网易新闻 查看精彩图片
打开网易新闻 查看精彩图片

无限遐想的立体墅境——有天有地

首层:配置7.7米层高地下空间(具备餐饮条件),可设置影音室、私厨等;赠送300-600㎡景观庭院,亲近自然的同时,多维拓展使用空间;

二层:最小户型面积近117㎡,低总价即可享受平墅品质空间;每个户型均赠送景观露台,亲近自然;

三层:层高达5.5米(坡屋顶),满足改造复式空间需求;同时赠送超大景观露台,周边500米无高层建筑遮挡,一览中央活力区美景。

打开网易新闻 查看精彩图片
打开网易新闻 查看精彩图片

亿元级圈层平台——社交主场

会议中心:17000㎡国际会议中心,提供会议、餐饮、团建等服务;

配套空间:专属地下配套,提供运动休闲、休憩用餐、文化娱乐等服务;

园区圈层:长江商学院CEO联盟、阿联酋GEWAN投资集团、各省市驻京商会、中关村股权投资基金等;

集团圈层:入驻可享有富华长安会一年期专属会籍,并享富华国际集团旗下金宝街以及富华海外项目拓展的高端圈层资源。

打开网易新闻 查看精彩图片
打开网易新闻 查看精彩图片
打开网易新闻 查看精彩图片

首层户型划分示意图

建筑面积:约347-385㎡

打开网易新闻 查看精彩图片

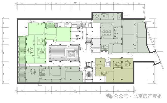
地下一层户型划分示意图

打开网易新闻 查看精彩图片

二层户型划分示意图

建筑面积:约123-381㎡

打开网易新闻 查看精彩图片

三层户型划分示意图

建筑面积:约197-248㎡

打开网易新闻 查看精彩图片

104户型布局示意图

建筑面积:约371.14㎡

毗邻园区内的万平内湖以及龙形水系,双侧临水;

室内面宽达21米,11米进深,配置三个独立卫生间,可满足多重功能需求;

地下一层,燃气入户,可设置私厨、影音室、储藏室、活动室等功能空间。

打开网易新闻 查看精彩图片

304户型布局示意图

建筑面积:约196.95㎡

16米超大面宽,9米进深,搭配挑空中庭,实现三面采光;

方正无柱空间,搭配两个独立卫生间,可根据使用需求,自由分割组合使用;

超大尺度会客厅,聚会休闲观影均可在此满足;

起居室搭配独立衣帽间、卫生间,彰显主人非凡气度;

东侧赠送L形超大露台,可承载小型酒会等会客需求。

打开网易新闻 查看精彩图片

✨富华长安源售楼处电话:400-116-9080(官方唯一认证)

1.看房方式:富华长安源售楼处位置电话 400-116-9080(官方认证)

2.预约方式:拨打富华长安源售楼处电话 400-116-9080(官方认证)

3.预约信息:需提供姓名、联系方式、预计到访人数及到访时间。

4.预约福利:成功预约后,到访可领取额外房款的一个99折,并有专属置业顾问全程陪同讲解。拨打富华长安源售楼处电话 400-116-9080(官方认证)

5.注意事项:为保证接待质量,请出发前进行预约,避免案场没有销售接待;也可提前1-3天预约销售;