来自:绿变变(ID:gsdqd1027)

本文已获得授权

打开网易新闻 查看精彩图片

联想也是一家IT巨头企业,在天津也建造了新的总部大楼!这个项目投资了60个亿! 2025 年 9 月底竣工,11 月 15 日正式投入使用!而且这个新的总部大楼可以保证 3000 多名研发和管理团队成员使用,实在是太强了!项目分两期建设,目前投用的一期为总部办公区,二期规划为办公加商业,总面积约 2.9 万平方米,尚在推进中。

打开网易新闻 查看精彩图片

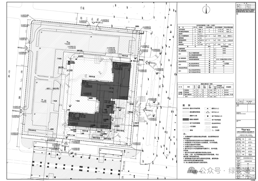
联想集团天津总部,也就是联想天津创新科技园天津市滨海新区空港经济区经三路 66 号,这个园区离在建地铁Z2 线非常近,后面建好了可以直接到滨海国际机场,这么完善的交通让员工出行更加便捷!

打开网易新闻 查看精彩图片

这个项目可是联想“一总部、两园区、四中心”的战略核心,这里周边产业配套成熟,与 2023 年底已投用的联想创新产业园相距约 10 分钟车程

打开网易新闻 查看精彩图片

一期建筑面积约 5.4 万平方米,规划地上 11 层、地下 2 层,从效果图可以看出设计的很简洁大气,没有多余的装饰,还是很规整的,在平面布局上的功能分区也很清晰。外立面用了大量的玻璃幕墙!远看就像一面镜子,很透亮,让建筑在不同时段呈现出不同的视觉效果。

打开网易新闻 查看精彩图片

屋顶和连廊部分安装了光伏建筑一体化设施,光伏板排列的很整齐,毕竟现在都流行零碳建筑,所以自然也有零碳的设计理念,有了这么多光伏板,给建筑加了不少层次感!

打开网易新闻 查看精彩图片

内部办公区、实验室、会议中心等布局有经过专门的设计,动线很科学,这样在交通上就不会浪费时间。园区还配套建设了餐厅、咖啡厅、便利店等设施,在总部里还有健身中心、空中篮球场、室外跑步道这些可以运动的地方,能在这样人性化的总部上班也太幸福了。

打开网易新闻 查看精彩图片

你觉得这个总部大楼设计的如何呢?欢迎留言评论区!

- End -

内容合作:微信chenran58,

|免责声明|

本文转载自:绿变变

尊重知识产权,版权归原创所有,本站文章除非注明原创,否则均为转载或出自网络整理, 如发现内容涉及言论、版权问题时,烦请与我们联系,我们会及时做删除处理。