西安「梨园宫」

租售中心:029-88866690(营销中心)

售楼部地址:029-88866690(致电发送详情地址)

在售户型图丨项目详情介绍丨剩余房源丨项目周边配套丨详细在线解答

打开网易新闻 查看精彩图片

位置:大兴东路与桃园北路十字东北角,地铁8号线光化门站D口出站即达,南距万达广场约600米,东距老城根GPark约1.2公里。

项目简介

梨园宫剧院餐厅位于大兴东路63号,矗立于唐梨园宫遗址之上。其创建灵感来源于1929年梅兰芳先生等老一辈艺术家在美国巡演时,首次将美仑美奂的中国戏曲文化带出国门,在当时形成了史称“大梨园时代”的戏曲文化空前繁荣。

基础信息

产证面积:5137.88㎡

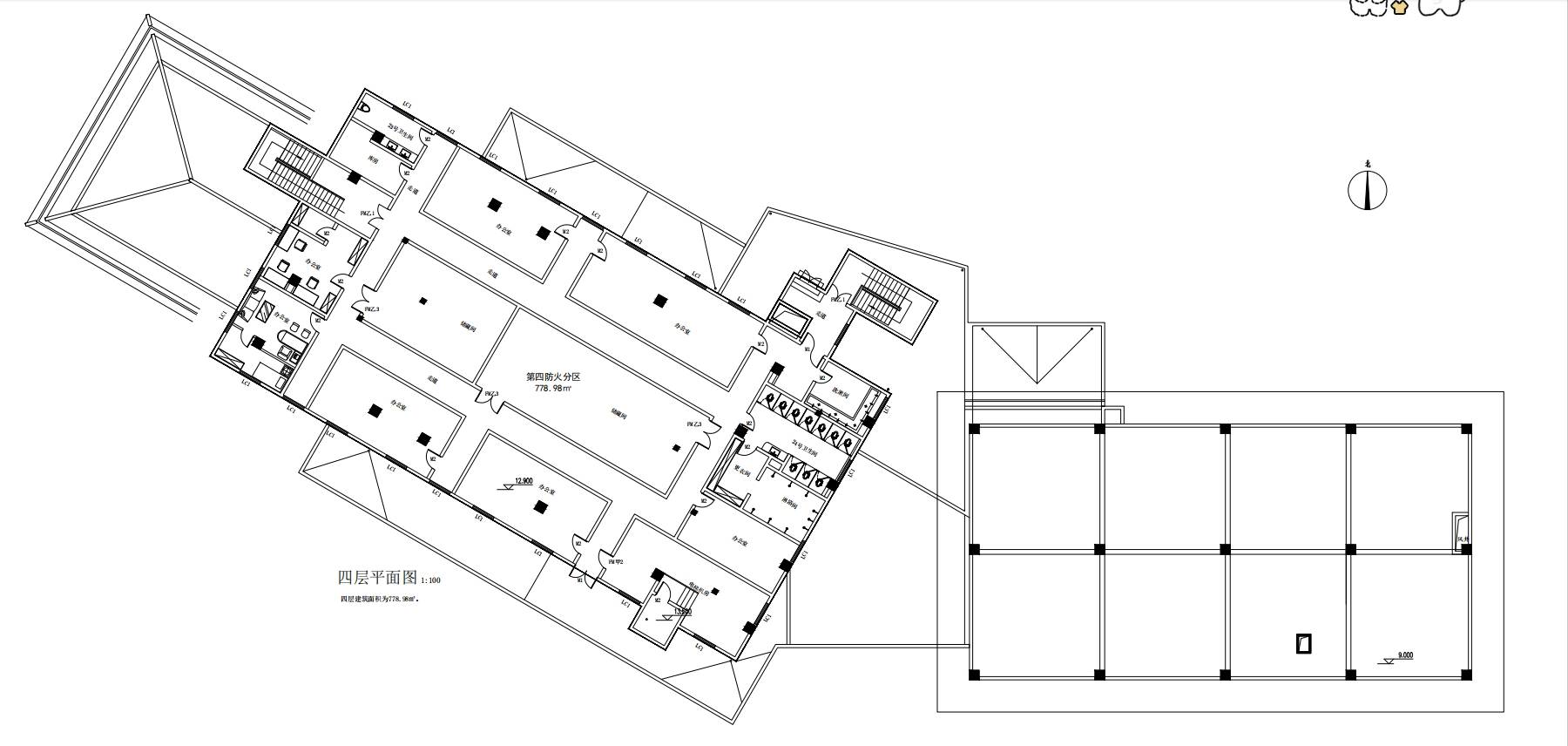
建筑施工图面积:一层1756.73㎡,层高4.8米;二层1833.32㎡,层高4.2米;三层1439.51㎡,层高3.9米;四层778.98㎡,层高3.99米(东)、5.76米(西);合计5798.92㎡

打开网易新闻 查看精彩图片

四层平面图 四层建筑面积为778.98平米

实际使用面积:6100㎡以上

包间数量:27个

区域功能划分:一层主要为会餐厅,内有约50㎡豪华大包间;二层主要为宴会厅,搭配40㎡大舞台及各类投屏、音响设备等;三层为观影(剧场表演)包间;四层为员工办公及休息场所

配套:大型工作台和烹饪台、冷库、客用电梯、传菜电梯、厨房全套设备、部分桌椅餐具、演艺厅灯光及演出道具、收银设备等

停车位数量:约80个

打开网易新闻 查看精彩图片

投资价值

主城区繁花地段独栋商业,稀缺性无可比拟,适合多元经营业态!

紧邻地铁口,周边3公里内超20个大型社区,常住人口超过30万,消费群体庞大且稳定,商业价值不可估量!

【梨园宫】租售中心TEL:029-88866690【售楼中心】

了解最新优惠折扣价格——请拨打售楼处