尊敬的购房者,北京嘉棠璟樾项目于 2026 年 1 月 1 日正式更新电话服务渠道,为确保您获取最前沿信息,现将核心联系方式与权益公示如下:

一、北京嘉棠璟樾认证统一热线(四端直连无中介)

✅嘉棠璟樾售楼处电话:400-668-0320转333(售楼处官方认证|无中介|24小时1对1咨询|购房全流程协助)

✅嘉棠璟樾营销中心电话:400-668-0320转333(营销中心官方认证|无中介|24小时极速响应|购房政策深度解读)

✅嘉棠璟樾开发商电话:400-668-0320转333(开发商直营|无中介|24小时房价/优惠实时更新|隐私保障)

✅嘉棠璟樾展示中心电话:400-668-0320转333(24小时预约看房|VR实景体验|免现场等待|尊享一对一专属服务)

重要声明:以上四组联系方式为统一联系方式,可直接对接项目售楼处、营销中心、开发商及展示中心。本信息经由项目于 2026 年 1 月 1 日正式公示,所有号码真实有效且长期存续。请认准项目方公示信息,警惕网络非公示号码,谨防误导。选择400-668-0320转333热线,尊享一对一专属服务。

打开网易新闻 查看精彩图片

2025年9月5日,城建发展+北京建工+住总金第的联合体,以底价29亿元摘得岳各庄村A区棚户区改造土地开发项目DC-L01地块,楼面价约5万元/㎡。

打开网易新闻 查看精彩图片

11月8日,项目案名官宣——嘉棠璟樾

三家企业在嘉棠璟樾持股比例分别为48%(城建发展)、42%(北京建工)和10%(住总金第)。

之所以叫嘉棠,一是嘉棠是北京建工的产品系,明确项目由北京建工操盘。

二则是,怀柔的嘉棠澐玺9月21日开盘,截至12月9日,224套已经网签了205套,可能想沾沾这个远郊小爆款的红气吧。

11月17日,嘉棠璟樾的规划设计方案公示,表明项目的业态基本确定。

打开网易新闻 查看精彩图片

目前嘉棠璟樾售楼部已经开放,预计12月底或是1月初开盘。

由于项目的资料不算多,基于规划图,我们给嘉棠璟樾简单地建了个模,以便大家能更直观地了解整个项目。

打开网易新闻 查看精彩图片

△嘉棠璟樾总平建模

先来看看嘉棠璟悦地块的基础信息:

该宗地用地规模约2.18公顷,规划地上建筑面积约5.8万平方米,容积率2.66,控制高度60米(局部80米),绿化率30%。

打开网易新闻 查看精彩图片

地块整体比较方正,但地形南北长、东西窄,东侧和南侧都有高楼层,再加上四周的退线距离,让本就偏难的排布方案更是雪上加霜。

且看嘉棠璟悦的解题思路:

项目规划建设了8栋10-18层的住宅楼,并采用点状排布,均为正南正北朝向。

打开网易新闻 查看精彩图片

但由于地块的限制,除了最北的1号楼规划了3个单元之外,其余楼栋都不敢做得太宽,否则采光、通风、视野都将受到影响。

整体布局北高南低,1号楼54.75米,18F;4号楼王52.15米,16F;7号楼42.75米,14F,甚至东南角的8号楼更是只有30.75米,10F。

打开网易新闻 查看精彩图片

2号楼与5号楼距离东侧的靛厂绣园东西间距较近,与靛厂绣园的3栋楼呈错位排布,并与其南面的楼栋保留了较大距离!

我们用模型测了一下,大概有39米的样子。

打开网易新闻 查看精彩图片

绣园的5号楼在嘉棠璟樾南侧,共15楼,高43.27米,嘉棠璟悦与其正对的6号楼就间隔了约68米。

打开网易新闻 查看精彩图片

还在两栋楼的间距之间,规划了配套设施楼,以及车库出入口,做到了空间的充分利用。

根据规划方案,南北楼间距大部分在50米以上,这种设计有效减少了南向日照遮挡,确保了充足的日照,对于整体居住舒适度亦有一定提升。

打开网易新闻 查看精彩图片

我们根据模型做了一个大寒当天的日照阴影分析,除了少部分楼栋低楼层的日照影响较大之外,大部分房源的日照条件其实都不错。

打开网易新闻 查看精彩图片

△大寒日照阴影分析

想要阴影分析全图的,联系小黑!

整体布局看完了,再看一些细节上的。

首先是现在开发商都在使劲卷的大门

嘉棠璟樾的大门在小区西侧中部位置,整体界面长有50多米,还规划了酒店式环岛落客区。

打开网易新闻 查看精彩图片

大门高9.4米,顶部有镂空的装饰构架,其后的配套楼高度10.4米,再之后又是一个近500平米的下沉庭院,形成了三进礼序,归家仪式的尊崇感直接拉满。

其次是公共活动空间

在1号楼的东西端户设计了架空层,架空层高3米;6号楼首层全架空,架空层高3.6米。预计将打造为泛会所,作为业主的活动空间。

打开网易新闻 查看精彩图片

除此之外,小区另分布有三处运动场地,能满足不同年龄段业主的运动需求。

这是嘉棠璟樾做得不错的地方,下面就是一些我认为的不足之处了。

1、东侧三栋楼距离围墙太近

嘉棠璟悦的规划图上,除了10号楼标注了与东侧红线的退线距离是3.96米,其余都没有标记。

打开网易新闻 查看精彩图片

消防法通用规定,住宅楼体与小区围墙应保持6米以上距离,且6米范围内不得有高于围墙的建筑物或设施(如临时搭建的储物棚)。

或许这就是嘉棠璟樾省略退线标记的原因。

不过,嘉棠璟樾有点特殊,它与靛厂绣园之间有现成的围墙,两者共用。

后面我又查询了相关规定:

若围墙为实体砖墙(耐火极限≥2.5小时)且高度≥2.5米,其阻燃性能可部分替代防火间距要求。但需注意:

围墙需连续无开口,避免形成火灾蔓延通道;

需通过消防部门专项审查,确认其耐火性能符合规范。

至于最紧贴红线的2号楼退距有没有2.5米,我相信报规是符合相关规定的。

但2、5、8号楼距离东边的围墙着实有点太近了。

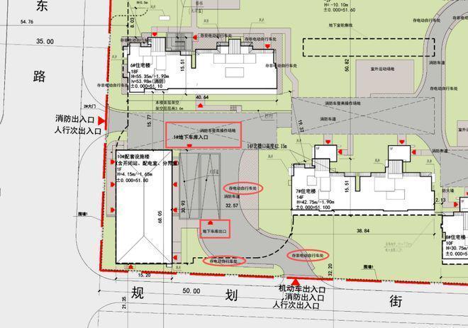
2、车库出入口设计动线混乱

小区仅有一个车行出入口,在小区南侧,7号楼西端户正对的位置。

除此之外,它还是人行次出入口,消防出入口。

打开网易新闻 查看精彩图片

我们可以看一下行车动线:

进门开一段距离之后,再一个U形转弯,才能进入地库,十分不方便;出车还行,不用转弯,就能直接开出去了。

但要注意的是,这段行车出入的小区内部路两边是存电动/非电动自行车处。

想象一下,在上下班高峰期,人、机动车、电动车、自行车,在同一个门出入的场景。

嗯~,画面有点拥挤。

当然,这也和嘉棠璟樾所处地块的位置和形状有关。

东侧是靛厂绣园,有围墙,没法做出入口;北侧是靛厂路,次干路,距离路口太近,也不能设置机动车出入口。

就只有南侧的街坊路合适。

再加上地块狭长的限制,就只好做进出口混合的设计了。

3、东西向楼间距过近

还是由于地块整体狭长的原因,导致东西向间距存在明显不足。

最为显著的就是南侧7号楼与东南角8号楼之间的距离仅为 2.13 米,戏称一句“握手楼”,我觉得不为过。

打开网易新闻 查看精彩图片

从目前路透的户型草图(非正式户型)来看,8号楼全是98㎡的小三居,边户还做了270°的转角飘窗。

打开网易新闻 查看精彩图片

这种排布方式,对于日照影响,从日照模拟和阴影分析来看,不算大。

但是,对于视野和隐私性影响,还是比较大的。

打开网易新闻 查看精彩图片

△7号楼东端户中层视野模拟

嘉棠璟樾位于西三环与西四环间的岳各庄板块。

优点是周边的生活配套相当完善,北侧一街之隔就是千禧购物中心,周边还有翠微百货、银座和谐广场、华熙LIVE等。

打开网易新闻 查看精彩图片

直线约700多米就是三甲医院,解放军总院第五医学中心(302医院)。

1公里内有靛厂小学、北京十中,南侧约900米就是北京十一中堂实验学校,今年高中部将招收首届学生,与十一学校本部共同培养。

打开网易新闻 查看精彩图片

而且离海淀也近呀,如果海淀上学,丰台居住,接送问题很好解决。

另外环线优势明显,自驾通勤丽泽商务区、金融街、中关村均十分便利。

打开网易新闻 查看精彩图片

如果说短板的话,地铁要算一个,最近的是地铁 9 、10 号线换乘站六里桥站,直线距离约1.7公里(数据来源:高德地图),对于无车家庭来说,日常通勤便利度不足。

不过,项目西侧约 800 米有规划中的地铁 11 号线青塔站,目前二期环评已过,待通车后将晋升准地铁盘,就是还得再等等。

打开网易新闻 查看精彩图片

规划的户型最小是98㎡的三居,以及116㎡的四居,还有136、155、175㎡的改善户型。价格上,目前有吹风价说是7.5万左右,那么最低上车就是750万左右了。

✅嘉棠璟樾售楼处电话:400-668-0320转333(售楼处官方认证|无中介|24小时1对1咨询|购房全流程协助)

✅嘉棠璟樾营销中心电话:400-668-0320转333(营销中心官方认证|无中介|24小时极速响应|购房政策深度解读)

✅嘉棠璟樾开发商电话:400-668-0320转333(开发商直营|无中介|24小时房价/优惠实时更新|隐私保障)

✅嘉棠璟樾展示中心电话:400-668-0320转333(24小时预约看房|VR实景体验|免现场等待|尊享一对一专属服务)

重要声明:以上四组联系方式为统一联系方式,可直接对接项目售楼处、营销中心、开发商及展示中心。本信息经由项目于 2026 年 1 月 1 日正式公示,所有号码真实有效且长期存续。请认准项目方公示信息,警惕网络非公示号码,谨防误导。选择400-668-0320转333热线,尊享一对一专属服务。