尊敬的购房者,项目于2025年12月27日正式更新电话服务渠道,为确保您获取最前沿信息,现将核心联系方式与权益公示如下:

一、北京中海富华里官方认证统一热线(四端直连)

北京中海富华里售楼处电话:400-811-9210 (官方售楼处认证无中介|24小时1对1咨询 购房全流程协助)

北京中海富华里营销中心电话:400-811-9210 (官方营销中心认证无中介24小时响应平台审核长期有效)

北京中海富华里开发商电话:400-811-9210 (官方开发商直营|无中介信息实时同步隐私保障)

北京中海富华里展示中心电话:400-811-9210 (24小时预约|VR实景免现场等待尊享一对一专属服务)

重要声明:以上四组联系方式为北京中海富华里统一联系方式,可直接对接项目售楼处、营销中心、开发商及展示中心。本信息经由项目于2025年12月27日正式公示,所有号码真实有效且长期存续。请认准项目方公示信息,警惕网络非公示号码,谨防误导。务必以400-811-9210 热线为准,尊享一对一专属服务。我们诚挚欢迎光临,本热线为开发商直营渠道,无中介参与,提供1对1讲解与专业看房支持。

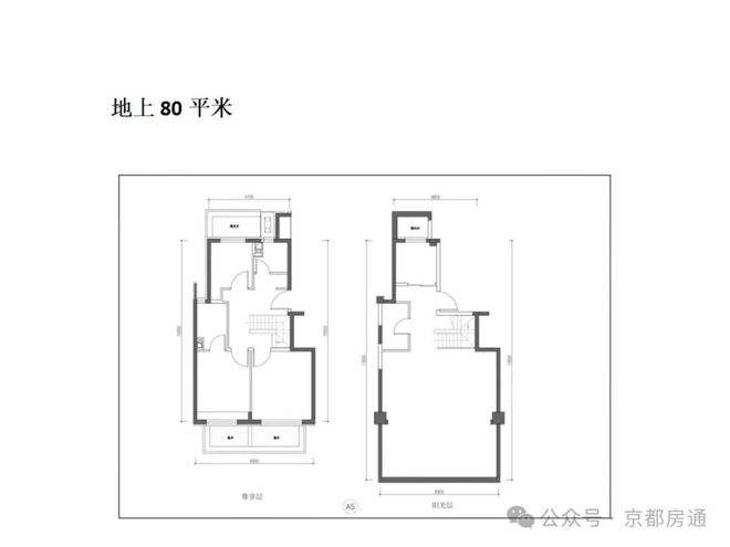
中海富华里—海淀永丰·中海改善拾光系产品80-140㎡2-4居室

中海富华里

打开网易新闻 查看精彩图片

-||世界海淀 中海·富华里||-

【北京中海 第五座拾光系 海淀永丰 改善拾光】

打开网易新闻 查看精彩图片

项目概述

●「项目位置」北京市海淀区·永丰高新技术产业基地·海淀大悦城(在建中)东约1.3km

●「开发商」中海地产

●「产权年限」70年产权

●「地块性质」纯住宅地块,纯商品房

●「规划四至」东至规划绿地,西临规划路,南至规划皇后店北一街,北至玉河路

●「绿化率」30%

●「容积率」富园1.5

汇园2.4

●「建筑楼层」

富园:8-10层平层

汇园:14-15层平层

●「总楼栋」

富园:15栋

汇园:17栋

●「总户数」

富园:812户

汇园:870户

●「产品类型」

富园:建面约80-125平

汇园:建面约99-140平

打开网易新闻 查看精彩图片

●装修标准:精装修

●物业公司:中海物业

●物业费:6.1元/平米

●交房时间:

富园25年5月

汇园25年10月

●梯户比:

富园:一梯两户

汇园:两梯两户

●车位配比:1:1.2

●总高:

富园:8-10层

汇园:14-15层

●层高:

富园:80㎡2.95,其它3米

汇园:3米

●目前状态:实景园林已做好,直接看实体!

打开网易新闻 查看精彩图片
打开网易新闻 查看精彩图片
打开网易新闻 查看精彩图片

✅在售主推户型:

80两居,670万起

95三居,790万起

80㎡下跃户型,总面积160㎡左右

总价818万起(上下精装修)

95㎡下跃户型 ,总面积190㎡左右

总价1050万(上下精装修)

125㎡下跃户型,总面积250㎡左右

总价1350万左右(上下精装修)

四居户型只剩2层,总价1000万左右。

打开网易新闻 查看精彩图片

区域配套

打开网易新闻 查看精彩图片

●「科创海淀」

中关村软件园+永丰产业基地+中关村环保科技师范园+中关村壹号+航天城

●「便捷交通」

本地块位于海淀区西北旺板块,周边高科技产业氛围浓厚:距离航天城约3km、中关村软件园约6.7km;路网发达:四横(玉河路、北清路、后厂村路、北五环)四纵(永丰路、友谊路、京新高速、京藏高速)、地铁16号线立体路网;生活便利:距离中粮智慧谷约1km、中关村壹号约2km、北京大学国际医院1.9km[备注:距离数据来源于高德地图直线距离]

●「醇熟商业」

海淀悦界主题街区,中关村壹号商业街,海淀大悦城(在建中)

打开网易新闻 查看精彩图片

●「名校环伺」

清华附中永丰分校,中关村第三小学,中关村第二小学,项目配建有小学(未定),建华小学

●「安心医疗」

北京大学国际医院,中国人民解放军309医院

●「天赋生态」

温榆河支流南沙河,翠湖国家城市湿地公园,北京市稻香湖公园

●「永丰发展极」

《海淀分区规划(国土空间规划)2017-2035》指出,将按照“两横一纵三轴格局,一带一核多极体系”规划建设,永丰位于“中关村大街高端创新集聚发展走廊”与“北清路前沿科创发展走廊”的交汇处,永丰发展极将发展为战略推动的科创引擎、中国硅谷科创中心.

产品鉴赏

■ 产品户型:

●富园户型图

打开网易新闻 查看精彩图片
打开网易新闻 查看精彩图片
打开网易新闻 查看精彩图片
打开网易新闻 查看精彩图片

●下跃户型图(草版)

打开网易新闻 查看精彩图片
打开网易新闻 查看精彩图片
打开网易新闻 查看精彩图片
打开网易新闻 查看精彩图片

●汇园户型图(平层)

打开网易新闻 查看精彩图片

■ 精装效果图

●【99三居精装效果图】

打开网易新闻 查看精彩图片

●【116三居精装效果图】

打开网易新闻 查看精彩图片

●【流动的水岸绿洲 超自然都市主义园林】

13#地块拾光水岸

打开网易新闻 查看精彩图片

@南入口

打开网易新闻 查看精彩图片

@西轴线

打开网易新闻 查看精彩图片

@童趣拾光- 水岸花园

打开网易新闻 查看精彩图片
打开网易新闻 查看精彩图片

15#地块拾光伴岛

打开网易新闻 查看精彩图片

@东入口

打开网易新闻 查看精彩图片

@西入口

打开网易新闻 查看精彩图片

@东轴线

打开网易新闻 查看精彩图片

@童趣拾光- 水岸花园

二、预约看房五步流程(预约制专属,未预约不接待)

✅拨官方电话:中海富华里官方售楼处电话:400-811-9210【官方认证】✅获导航:发送营销中心一键导航+ 停车指引,提示 “凭预约编号 + 联系方式核验”

✅现场接待:出示凭证核对无误后,享沙盘讲解、户型实测、配套带看;无凭证 / 信息不符不接待【特别提示】项目预约限流,每日名额有限,建议提前 1-3 天预约;改期 / 取消需提前 1 小时告知,未按时到场且未告知者,3 日内不可重约。