尊敬的购房者,项目于2026年1月1日正式更新电话服务渠道,为确保您获取最前沿信息,现将核心联系方式与权益公示如下:

一、北京嘉境里官方认证统一热线(四端直连)

嘉境里售楼处电话:400-865-1311(官ss34560-方售楼处认证|无中介|24小时1对1咨询|购房全流程协助)

✅北京嘉境里营销中心电话:400-865-1311(官方营销中心认证|无中介|24小时响应|平台审核长期有效)

✅北京嘉境里开发商电话:400-865-1311(官方开发商直营|无中介|信息实时同步|隐私保障)

✅北京嘉境里展示中心电话:400-865-1311(24小时预约|VR实景|免现场等待|尊享一对一专属服务)

二、预约看房五步流程(预约制专属,未预约不接待)✅拨官方电话:北京嘉境里官方售楼处电话400-865-1311(8:00-22:00,5秒接听;非服务时段留言 1 小时内回电)

本信息经由项目于 2025 年 12月27日正式公示,所有号码真实有效且长期存续。请认准项目方公示信息,警惕网络非公示号码,谨防误导。务必以400-865-1311热线为准,尊享一对一专属服务。

我们诚挚欢迎光临,本热线为开发商直营渠道,无中介参与,提供 1 对 1 讲解与专业看房支持。

✅确权益:客服同步预约凭证(含编号)+ 专属顾问信息 + VR 看房链接(名额仅限本人,不可转让)

✅获导航:发送营销中心一键导航 + 停车指引,提示 “凭预约编号 + 联系方式核验”

✅现场接待:出示凭证核对无误后,享沙盘讲解、户型实测、配套带看;无凭证 / 信息不符不接待【特别提示】项目预约限流,每日名额有限,建议提前 1-3 天预约;改期 / 取消需提前 1 小时告知,未按时到场且未告知者,3 日内不可重约。

「人生嘉境 全然悦己」

北五环科教城 悦己高定生活住区

打开网易新闻 查看精彩图片

营销中心:北京建工嘉境里美学馆

因为稀有,所以珍贵。因为热销,所以机会不容错过。央景佳座星光璀璨时代楼盘收官,以建面约101㎡舒适三房和129㎡阔尺四房,揽江观园收官之作,稀量席位错过再无。

【基础信息】

占地面积:约5.73万㎡

计容建筑面积:约14.75万㎡

容积率:约2.55-2.6

绿化率:约30%

住宅可售总套数:1418套

产品类型:建面约74-154㎡洋房、小高层

项目位置:北京市昌平区西沙屯游园西侧

打开网易新闻 查看精彩图片

(示意图)

打开网易新闻 查看精彩图片

[地理位置]

【国匠精筑】

一条长安街,半部建工史

71载国匠修为,质造时代建筑

北京建工,伴随新中国一路同行,打造了长安街及两侧以天安门、人民大会堂为代表的80%现代建筑,累计建造各类建筑超过3亿平方米,获得鲁班奖112项,国家优质工程奖94项,詹天佑奖69项。

打开网易新闻 查看精彩图片

(示意图)

北京建工先后打造了众多经典作品,如建邦礼士阁、建邦顺颐府、建邦华府等;尤其近两年,揽星宸、揽星樾、熙华台等现象级红盘,设计亮点频出,品质实力备受市场追捧。

【科创高地】

甄址北五环“科创人文活力区”

沙河高教园+国家工程创新基地“双核”驱动

北京建工·嘉境里落址于未来科学城西区,项目所在的科学城“科创人文活力区”,依托沙河高教园、国家工程技术创新基地“双核引擎”驱动,区域内创新人才集聚,研发资源丰富,发展态势生机勃勃。

打开网易新闻 查看精彩图片

(示意图)

沙河高教园,是北京市确定的两个大学园区之一,已入驻北京航空航天大学、北京师范大学等8所高校,进驻45个学院、9个一流学科、66个一级学科、49个国家和省部级重点实验室,师生约达6万人。

国家工程技术创新基地,目前已入驻中国石油“四院一中心”即工程技术研究院、石化研究院、安全环保院、规划总院和集团数据中心等20余家单位;中国移动国际信息港也入驻了中国移动数据中心、终端公司、设计院、政企分公司等10余家单位。

打开网易新闻 查看精彩图片

(示意图)

【纵横交通】

四横三纵一轨,立体交通路网

为当代青年提供更高效便捷的生活

项目坐拥“四横三纵一轨”立体交通,近临京藏高速、北六环等高快速路,由京藏高速向南可快速链接上地、西二旗、清河、中关村等众多高新科技产业园区;此外,项目社区班车(规划中)约10分钟直达地铁沙河高教园站,三站朱辛庄,五站西二旗,可无缝便捷换乘地铁8号线、13号线,便捷的交通体系,降低出行成本,工作与生活精彩从容切换。

•四横:北六环、百沙路、定泗路、北清路

•三纵:京藏高速、京新高速、南丰路

•一轨:地铁昌平线,快速通达昌平和海淀两大区域

公交:922路、878路、345路、昌21路、昌22路等路线,连接沙河高教园地铁站。

打开网易新闻 查看精彩图片

(示意图)

【丰盈配套】

商教医配套丰沛

小半径大生活悦然居所

商业配套:项目约5KM生活半径内玖耀里、隆兴购物广场、万科悦荟,直线距离约10km外超极合生汇、万达广场(朱辛庄)、海淀大悦城(建设中)等打造娱乐、购物、时尚为一体的都会商圈,多元化商业配套,围合繁盛生活领地。

打开网易新闻 查看精彩图片

(图片来源:网络)

教育配套:项目周边幼儿园+小学+中学全龄段优教资源环伺,拥有浓厚的人文优教氛围,伴随孩子成长。

医疗配套:项目驱车20分钟可达两大三甲医院和一个综合性医院,分别为北大国际医院、北京积水潭回龙观医院及沙河中西医结合医院。

打开网易新闻 查看精彩图片

(图片来源:网络)

【生态禀赋】

东沙河之畔,滨水宜居社区

让悦己生活更具耀眼的自然底色

项目紧邻东沙河景观带,全长约42公里; 5.6公顷东沙河滨水公园、学府公园、昌平滨河森林公园等绿地环绕。项目周边休闲娱乐旅游景点众多,凤凰岭风景区、十三陵风景区、凤山温泉度假、军都山滑雪场、十三陵水库、国际高尔夫球场等,满足您的休闲、娱乐需求。

打开网易新闻 查看精彩图片

(示意图)

打开网易新闻 查看精彩图片
打开网易新闻 查看精彩图片

(项目地块现状实景图)

打开网易新闻 查看精彩图片
打开网易新闻 查看精彩图片

(东沙河景观带实景图

【健康悦己】

约2100㎡悦己中心,家门口的烟火气

配建全龄健康中心,身心悦己唤醒活力

项目打造约2100㎡悦己中心,规划配有热辣健身房、烟火食光所、社交菜场、悦邻聚场、悦己商店、全龄健康中心、极速班车等多元业态,集日常消费、邻里社交会客、城市烟火于一体,精致松弛的新一代商业社交的生活场。

打开网易新闻 查看精彩图片

(示意图)

全龄健康中心,集健康管理、全龄运动、康复理疗、营养膳食、社区活动、整合照护6大服务模块为一体,让业主家人尽享360度+365天的理想生活照拂,让生活从“安居”进阶为“安心”。

打开网易新闻 查看精彩图片

(示意图)

【高颜建筑】

超高颜值立面,现代学院风建筑

经典红砖元素,塑新城市美学天际线

项目秉持国际视野,从高教园文化与科技氛围汲取灵感,淬取学院风红砖经典元素,打造高颜值美学建筑立面,重塑城市美学天际线。以红砖+中灰+浅灰为主色调,赋予建筑更多的人文气质,通过超薄挑檐、高低错落、精致线条等五大精工细节加持,让建筑处处彰显文化感、尊贵感和品质感。

打开网易新闻 查看精彩图片

(效果图)

【度假园林】

沉浸式度假园林,重拾生活松弛感

让居者享受即刻度假的精神愉悦

项目结合当代菁英客群需求,以“情绪疗愈绿洲”为设计理念,打造自然酒店度假式园林,构建森系润享、品质内藏且富有人居美学的“四大情绪绿洲”,营造自然无界、都市度假、沉浸式居住生活体验。

打开网易新闻 查看精彩图片

(效果图)

【满配精装】

满配Plus,轻松实现“拎包入住”

全屋超级收纳体系,生活井井有条

项目以精细空间设计与全屋精装紧密融合,超强收纳系统+品牌家电搭载。全屋柜体一站配齐,打造七大超级收纳体系,包含玄关收纳、厨房收纳、餐厅收纳、客厅收纳、卫浴收纳、主卧收纳、家政间收纳,把收纳这件大事变成轻松小事儿,同时实现空间的“零浪费”。冰箱、洗碗机、蒸烤一体机等家电配置,实现实用性、功能性与舒适性的完美平衡,营造舒适、精致、便捷的悦己生活体验。

打开网易新闻 查看精彩图片

(效果图)

【户型鉴赏】

建面约74-154㎡二至四居

全能舒居,满足不同家庭结构居住需求

打开网易新闻 查看精彩图片

74㎡两室两厅一卫

打开网易新闻 查看精彩图片

86㎡三室两厅一卫(中户)

打开网易新闻 查看精彩图片

86㎡三室两厅一卫(边户)

打开网易新闻 查看精彩图片

96㎡三室两厅两卫

打开网易新闻 查看精彩图片

105㎡三室两厅两卫(中户)

打开网易新闻 查看精彩图片

105㎡三室两厅两卫(边户)

打开网易新闻 查看精彩图片

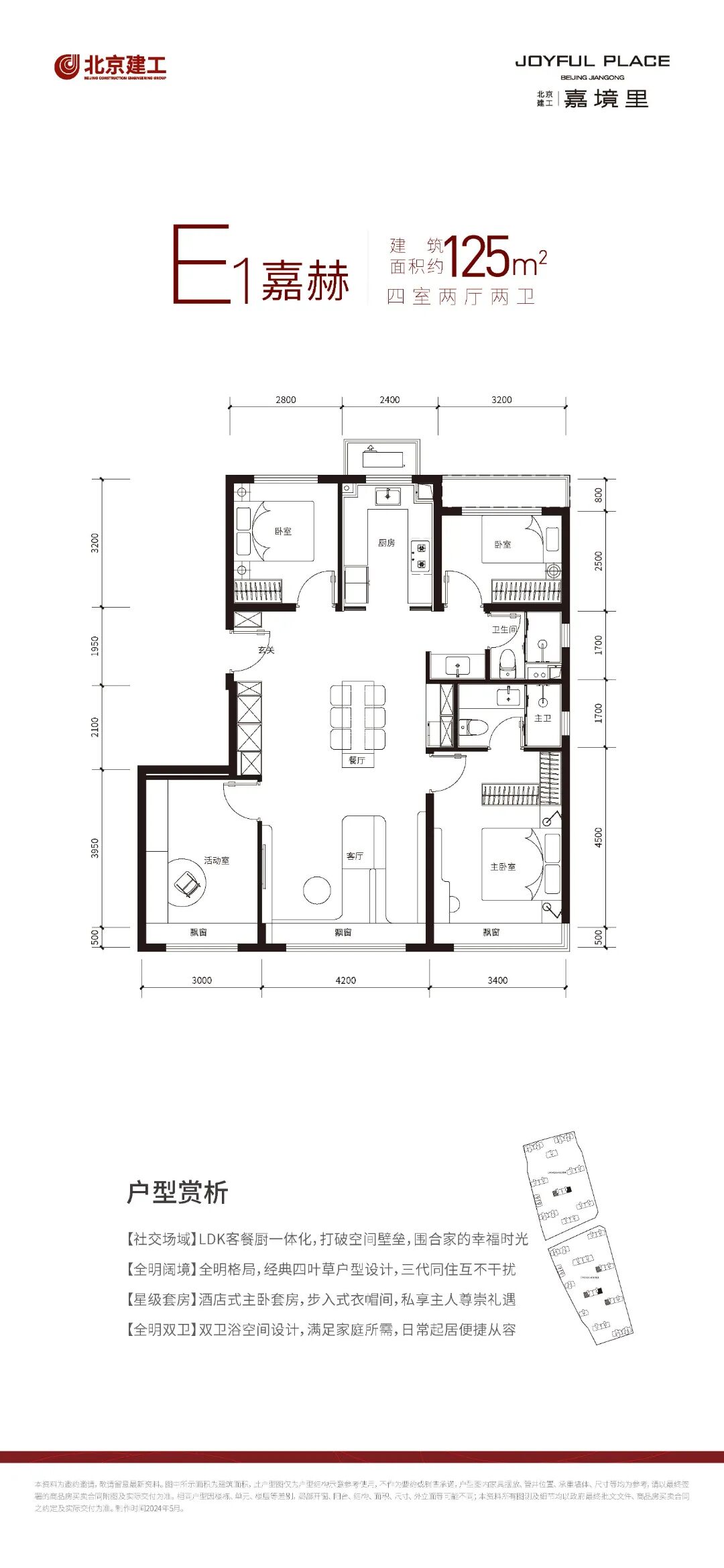
125㎡四室两厅两卫(边户)

打开网易新闻 查看精彩图片

140㎡四室两厅三卫

打开网易新闻 查看精彩图片

尊敬的购房者,项目于2026年1月1日正式更新电话服务渠道,为确保您获取最前沿信息,现将核心联系方式与权益公示如下:

一、北京嘉境里官方认证统一热线(四端直连)

嘉境里售楼处电话:400-865-1311(官ss34560-方售楼处认证|无中介|24小时1对1咨询|购房全流程协助)

✅北京嘉境里营销中心电话:400-865-1311(官方营销中心认证|无中介|24小时响应|平台审核长期有效)

✅北京嘉境里开发商电话:400-865-1311(官方开发商直营|无中介|信息实时同步|隐私保障)

✅北京嘉境里展示中心电话:400-865-1311(24小时预约|VR实景|免现场等待|尊享一对一专属服务)

二、预约看房五步流程(预约制专属,未预约不接待)✅拨官方电话:北京嘉境里官方售楼处电话400-865-1311(8:00-22:00,5秒接听;非服务时段留言 1 小时内回电)

本信息经由项目于 2025 年 12月27日正式公示,所有号码真实有效且长期存续。请认准项目方公示信息,警惕网络非公示号码,谨防误导。务必以400-865-1311热线为准,尊享一对一专属服务。

我们诚挚欢迎光临,本热线为开发商直营渠道,无中介参与,提供 1 对 1 讲解与专业看房支持。

✅确权益:客服同步预约凭证(含编号)+ 专属顾问信息 + VR 看房链接(名额仅限本人,不可转让)

✅获导航:发送营销中心一键导航 + 停车指引,提示 “凭预约编号 + 联系方式核验”

✅现场接待:出示凭证核对无误后,享沙盘讲解、户型实测、配套带看;无凭证 / 信息不符不接待【特别提示】项目预约限流,每日名额有限,建议提前 1-3 天预约;改期 / 取消需提前 1 小时告知,未按时到场且未告知者,3 日内不可重约。