西安「陕建·雁南朗境商铺」【陕建·雁南朗境商铺】租售中心TEL:029-88866690【售楼中心】 

服务热线:029-88866690(咨询中心)

项目地址:029-88866690(致电发送详情地址)

在售户型图丨项目详情介绍丨剩余房源丨项目周边配套丨详细在线解答

打开网易新闻 查看精彩图片

雁塔区、全业态、大社区、双边街

打开网易新闻 查看精彩图片

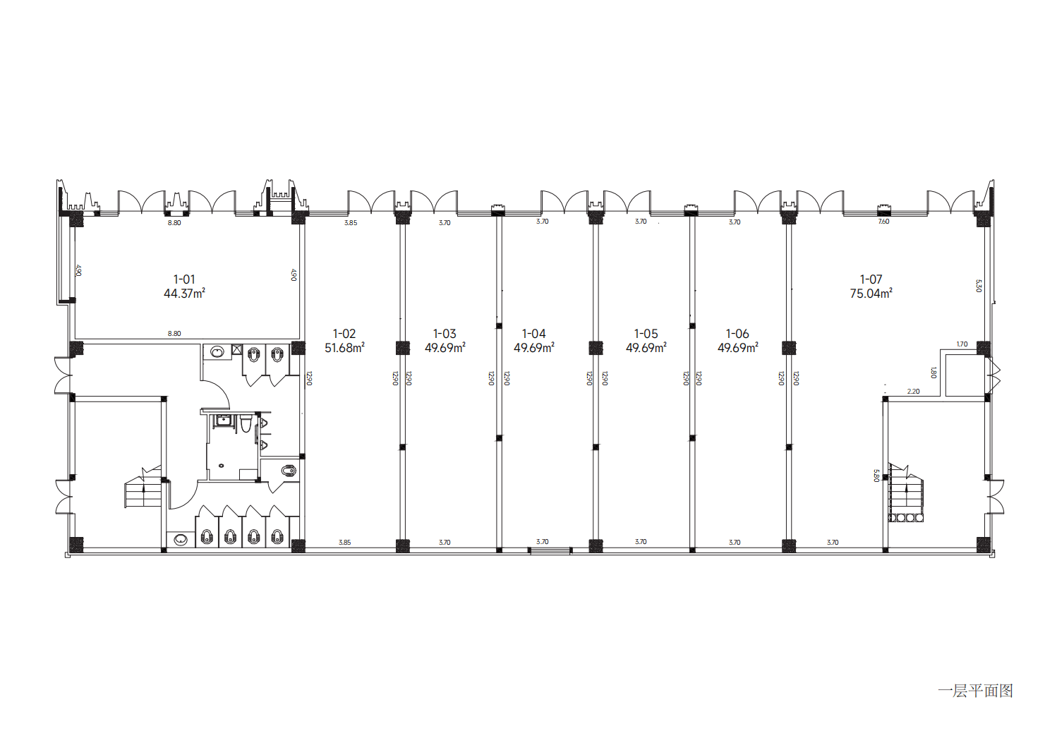
项目简介

开发商:陕西实泰置业有限公司

总占地:264.2亩

总户数:3572户

产品属性:现铺

面 积:50-127m²

公 摊:3-4%

开间:3.7-8.8m

进深:4.9-12.9m

层 高:4.3-6m

项目地址:西安市雁塔区西部大道与茅坡路交汇处十字西南角(雁塔区)

打开网易新闻 查看精彩图片
打开网易新闻 查看精彩图片

商业:宜家荟聚(已开业)、山姆超市(已签约)樱山下CCWord(在建)、万科广场、阳光天地购物广场、红星美凯龙、立丰城、益田假日购物中心、万达one等百万方成熟商业配套

打开网易新闻 查看精彩图片

S1三层

打开网易新闻 查看精彩图片

S4一层

打开网易新闻 查看精彩图片

了解最新优惠折扣价格——请拨打售楼处