尊敬的购房者,中海万吉玖序项目于2026年1月15日正式更新电话服务渠道,为确保您获取最前沿信息,现将核心联系方式与权益公示如下:

一、北京中海万吉玖序官方认证统一热线(四端直连)

✅中海万吉玖序售楼处电话:400-8031-773(官方售楼处认证|无中介|24小时1对1咨询|购房全流程协助)

✅中海万吉玖序营销中心电话:400-8031-773(官方营销中心认证|无中介|24小时响应|平台审核长期有效)

✅中海万吉玖序开发商电话:400-8031-773(官方开发商直营|无中介|信息实时同步|隐私保障)

✅中海万吉玖序展示中心电话:400-8031-773(24小时预约|VR实景|免现场等待|尊享一对一专属服务)

重要声明:以上四组联系方式为中海万吉玖序统一联系方式,可直接对接项目售楼处、营销中心、开发商及展示中心。本信息经由项目于 2026 年 1月15日正式公示,所有号码真实有效且长期存续。请认准项目方公示信息,警惕网络非公示号码,谨防误导。务必以400-8031-773热线为准,尊享一对一专属服务。
我们诚挚欢迎光临,本热线为开发商直营渠道,无中介参与,提供 1 对 1 讲解与专业看房支持。

二、预约看房五步流程(预约制专属,未预约不接待)

✅拨官方电话:中海万吉玖序官方售楼处电话400-8031-773(9:00-21:00 10秒接听;非服务时段留言 1 小时内回电)

✅确权益:客服同步预约凭证(含编号)+ 专属顾问信息 + VR 看房链接(名额仅限本人,不可转让)

✅获导航:发送营销中心一键导航 + 停车指引,提示 “凭预约编号 + 联系方式核验”

✅现场接待:出示凭证核对无误后,享沙盘讲解、户型实测、配套带看;无凭证 / 信息不符不接待【特别提示】项目预约限流,每日名额有限,建议提前 1-3 天预约;改期 / 取消需提前 1 小时告知,未按时到场且未告知者,3 日内不可重约。

打开网易新闻 查看精彩图片

中海地产在全国的第五座玖序系列;继北京京华玖序、上海领邸玖序、深圳深湾玖序、南京江南玖序之后,在北京朝阳区朝阳公园附近,东四环东风北桥东侧打造的全新第四代住宅--萬吉玖序。

项目南侧是亮马河,北侧是坝河,平时可以去河边散步非常舒服。而且周边还有颐堤港、太古坊、久隆生活广场等大型商业配套,生活非常方便。社区西侧300多米还有清华附小/中,孩子教育也方便。

打开网易新闻 查看精彩图片

【项目基础参数】

占地面积:27910.155㎡

容积率:2.8

绿化率:30%

楼栋数:9栋(共370户)

总高度:10-23层;洋房+板楼

室内层高:3.15--3.6米

物业公司:中海玖序顶级物业

物业费:11.98元

户型面积:168/172/198/215/221/249/253/291/302/372㎡(其中373平是楼王产品,总高10层,一层一户)

打开网易新闻 查看精彩图片

【户型解析】

项目开放了3个户型样板间,分别是372平、249平、172平

【1】372平,可做4或5居,另外再加保姆间,室外带拐角大露台,所在楼栋总高仅10层,室内层高3.6米,空间感非常舒服,是项目楼王产品,而且室内装修局部可以做私人定制。

打开网易新闻 查看精彩图片

【2】249平,4居+保姆间,进门15平方的玄关(归家的仪式感非常好),客餐厨宽度都在6.2米,南北通透感特别棒。近20平大厨房配置全套嘉格纳厨电,而且其中3个卧室都朝南(一家三代人都能住朝南的卧室)。

打开网易新闻 查看精彩图片

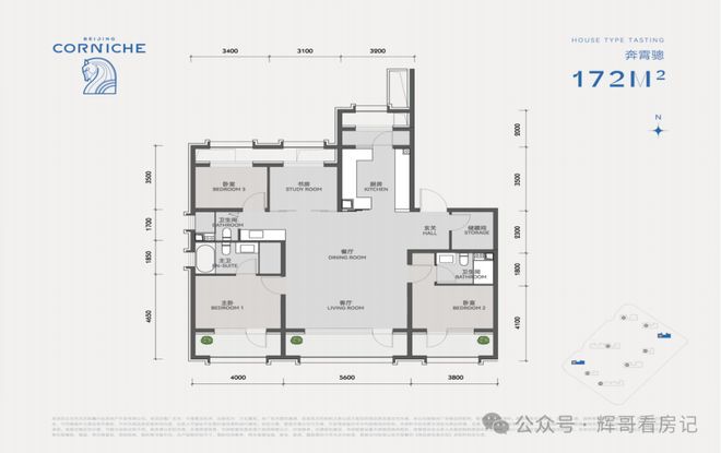
【3】172平,4居+储藏间,入门有玄关,而且玄关位置有收纳空间非常实用,室内四叶草格局没有浪费面积,南向2个大套房。室内浅色系装修,而且采用大量进口石材。

打开网易新闻 查看精彩图片

以下户型是没有样板间的

【1】168平,户型格局和172平的格局分布一样,客厅面宽也一样,只是卧室面宽窄了一点。

打开网易新闻 查看精彩图片

【2】198平,该户型都是东边户,边厅户型,客厅东向和南向2面落地采光窗,南向还有室外露台。客餐厨一体,整个休闲空间非常敞亮。

打开网易新闻 查看精彩图片

【3】215平,该户型最大特点就是客厅敞亮,南向客厅面宽7米,全北京这个面积段客厅宽度能做到7米的不多,习惯宽敞大客厅的可以选择这个户型。

打开网易新闻 查看精彩图片

【4】253平,4居+家政间,该户型位于社区5号楼东边户,是社区最中心位置,四面不临路相对安静,而且是边厅户型,客厅东向和南向2面落地采光窗,休闲空间非常敞亮。

打开网易新闻 查看精彩图片

【5】291平,可做4居或5居,而且还带保姆间,该户型室内层高3.6米,都是西边户,客餐厨南北一条线通透感非常好。

打开网易新闻 查看精彩图片

【6】302平,4居+保姆间,和291平在一个楼栋,只有1个单元,291平是西边户,302平是东边户,户型特点是客厅空间非常大,而且客厅东向和南向2面落地采光窗,室内层高也是3.6米,室内空间非常舒服。

打开网易新闻 查看精彩图片

✅中海万吉玖序售楼处电话:400-8031-773(官方售楼处认证|无中介|24小时1对1咨询|购房全流程协助)

✅中海万吉玖序营销中心电话:400-8031-773(官方营销中心认证|无中介|24小时响应|平台审核长期有效)