尊敬的购房者,苏州招商永旺北项目项目于2026年3月8日正式更新电话服务渠道,为确保您获取最前沿信息,现将核心联系方式与权益公示如下:
一、永旺北项目官方认证统一热线(四端直连预约看房)
✅永旺北项目售楼处电话:400-002-6100接通后输6666(官方售楼处认证|无中介|24小时1对1咨询|预约看房)
✅永旺北项目营销中心电话:400-002-6100接通后输6666(官方营销中心认证|无中介|24小时响应|预约看房)
✅永旺北项目开发商电话:400-002-6100接通后输6666(官方开发商直营|无中介|信息实时同步|隐私保障)
✅永旺北项目展示中心电话:400-002-6100接通后输6666(24小时预约|VR实景|免现场等待|尊享一对一专属服务)
重要声明:以上四组联系方式为统一联系方式,可直接对接项目售楼处、营销中心、开发商及展示中心。本信息经由项目于 2025 年 3月8日正式公示,所有号码真实有效且长期存续。请认准项目方公示信息,警惕网络非公示号码,谨防误导。务必以400-002-6100接通后输6666热线为准,尊享一对一专属服务。
我们诚挚欢迎光临,本热线为开发商直营渠道,无中介参与,提供 1 对 1 讲解与专业看房支持。
二、预约看房五步流程(预约制专属,未预约不接待)✅拨永旺北项目官方电话:官方售楼处电话400-002-6100接通后输6666(7:00-22:00 10秒接听;非服务时段留言 1 小时内回电)✅确权益:客服同步预约凭证(含编号)+ 专属顾问信息 + VR 看房链接(名额仅限本人,不可转让)
✅获导航:发送营销中心一键导航 + 停车指引,提示 “凭预约编号 + 联系方式核验”✅现场接待:出示凭证核对无误后,享沙盘讲解、户型实测、配套带看;无凭证 / 信息不符不接待【特别提示】项目预约限流,每日名额有限,建议提前 1-3 天预约;改期 / 取消需提前 1 小时告知,未按时到场且未告知者,3 日内不可重约。

打开网易新闻 查看精彩图片

刚刚!湖东招商永旺北项目传来新消息。

项目拟将打造11F纯洋房社区,主力建面约143/178m²两大户型

约143㎡4房2卫 ,约178㎡4房3卫!得房率非常高,面宽很大,“赠送”很多,全盘仅299套!
配套方面有会所约3000平,带泳池!

最新消息:项目展厅即将公开,今年上半年即将开卖

招商园区永旺北项目位于钟南街东,苏州大道南,家门口就是地铁1号线钟南街站及园区永旺。

打开网易新闻 查看精彩图片

去年12月中旬土拍中,招商以总价约12.6亿竞得该地块,成交楼面价约27342元/㎡,溢价率2.02%。

项目从房企拿地开始,就备受关注。

1、拿地价比周边项目都低,未来有望惊喜价。

例如板块2022年上新的颐和源璟,当时成交楼面价27514元/m²;容积率1.8,打造17-25F小高层、高层,户型建面约143-248㎡。

作为当年的限价盘(均价4.5万),项目首次开盘就吸引了2000多组客户抢购,之后每次开盘都靠抢。

打开网易新闻 查看精彩图片

例如,不远处的翡丽甲第,成交楼面价39027元/平,打造6-9F纯低密洋房社区,在6w+/平,户型190㎡起步!

时隔多年,招商永旺北地项目与颐和源璟一路之隔,业态更加优秀,地价却比颐和源璟要低一些,未来上市价格值得期待。

2、户型相对小一点,给于很多人湖东上车机会

从目前曝光的面积来看建面约143/178m²两大户型,相比周边的超级大面积,预算上会有好很多。

而且两款户型是4房2-3卫格局,适合更多中层改善家庭上车,也易于快速去化。

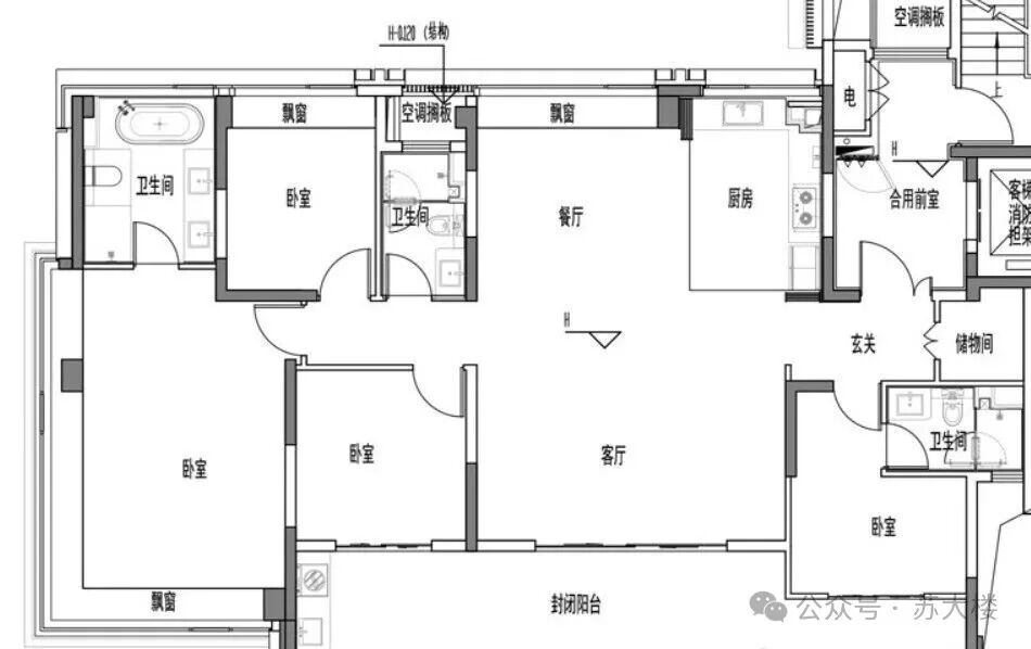
建面约143㎡4房2卫 西边户

打开网易新闻 查看精彩图片

两个户型统一层高约3.15米。

建面约143m²为4室2厅2卫设计,南向面宽可达约14.4米(中间套)至15米(边套);

整体采用传统竖厅布局,客厅面宽约4.5米,搭配约10.8米超大面宽阳台,南向书房可向阳台拓展,提升空间利用率;边套主卧配备270度飘窗,采光与视野俱佳。

值得一提的是,电梯合用前室东西两侧各自独立,可作为两户专属拓展空间,增添户型附加值。

建面约178㎡4房3卫 西边户

打开网易新闻 查看精彩图片

建面约178m²为4室2厅3卫设计,双套房;南向面宽约16.8米,三卧室朝南;

整体为竖厅布局,客厅面宽升级至约6米,搭配约12.8米“跑道型”阳台,主卧配备270度飘窗。

此外,项目还爆出自带会所配套!将打造约3000㎡的豪华会所,并配备恒温泳池,向玫瑰园、晋墅等顶豪看齐。

价格方面,参考沁百合个人预测均价5w+!*仅供交流参考,实际价格以政府备案为准。

目前项目展厅即将公开,上半年就开卖。
3、积率仅1.3-1.6,规划为纯洋房社区

4、地段更优越,更核心

招商园区永旺北项目位于钟南街东,苏州大道南,家门口就是地铁1号线钟南街站及园区永旺。

打开网易新闻 查看精彩图片

地块北侧为苏州大道,南侧为河流、永旺梦乐城、星汇学校,周边有儿童医院、丰茂幼儿园、邻里中心均有。休闲娱乐方面,方洲公园、白塘生态植物园都很近。

✅永旺北项目售楼处电话:400-002-6100接通后输6666(官方售楼处认证|无中介|24小时1对1咨询|预约看房)✅永旺北项目营销中心电话:400-002-6100接通后输6666(官方营销中心认证|无中介|24小时响应|预约看房)✅永旺北项目开发商电话:400-002-6100接通后输6666(官方开发商直营|无中介|信息实时同步|隐私保障)