御林湾售楼处电话:010-5361 0555✔️看房方式:

✅看房方式:御林湾售楼处位置电话:010-5361 0555✔️(开发商认证)

✅预约方式:拨打御林湾售楼处电话:010-5361 0555✔️(售楼处认证)

✅预约信息:需提供姓名、联系方式、预计到访人数及到访时间。

✅预约福利:成功预约后有专属置业顾问全程陪同讲解。拨打御林湾售楼处电话:010-5361 0555(已认证)

✅注意事项:为保证接待质量,请出发前进行预约,避免案场没有销售接待;也可提前1-3天预约销售

【御林湾】朝阳科创轴芯·都会园奢住区·建面约91-220㎡二至四居。

御林湾

园承御苑 心归林湾

朝阳科创轴芯 都会园奢住区

建面约91-220㎡二至四居

精妆美宅 封顶准现房 盛大开启

打开网易新闻 查看精彩图片

肇启 北京新园年-生态为底,文脉为魂,再造园居范本

御林湾,北京划时代园奢住区,与北京城区约30平方公里城市绿肺——温榆河公园共生,构建约8.6万㎡辽阔园境,建筑、精妆等全维度匠心营造,重塑时代高端人居典范之作。

打开网易新闻 查看精彩图片

【首农集团 国匠实力】

北京御林湾项目的开发商是‌北京东洲房地产开发有限公司‌。‌该公司隶属于‌首农集团‌,是首农集团地产板块的重要企业之一。‌首农集团作为首都食品供应保障的国家队,其地产板块秉持国匠精神,为项目品质提供了国企背景的保障。‌东洲地产的业务涵盖住宅、持有类物业及工业园区等多种类型。‌

打开网易新闻 查看精彩图片

热势区位:朝阳科创轴芯 城市新贵热土

城势 | 四大科创区辐射,朝阳科创轴芯

奶西板块,位踞朝阳科创轴芯,东近中关村朝阳园北区创新基因,南承望京核心区成熟势能,北接未来科学城战略要地,西联西二旗数字浪潮,坐享四大科创区交汇的圆芯之位,顺势崛起为城市新贵板块。周围汇聚阿里巴巴北京总部、美团、高德、58同城总部等4000余家科技企业,高端产业的聚集,持续吸引高端人才涌入,构建国际化科创精英圈,由此催生了高品质居住需求。

打开网易新闻 查看精彩图片

潜力 | 宜业宜居高地,人居价值热土

奶西板块承接多重发展利好,先规划后开发,打造智慧生态住区,产业圈、生态圈、居住圈三圈共兴,构建宜居宜业新高地,价值可期。于此,御林湾以集大成之姿,将丰沛资源与高端生活理念深度融合,定义板块人居新高度,成为科创精英归心的必选之地。

打开网易新闻 查看精彩图片

项目基础信息

项目名称:御林湾

项目位置:北京市朝阳区来广营北路

产权类型:高层,洋房

开发商:北京东洲房地产开发有限公司

占地面积:18.82万方

建筑面积:78万方

户型面积:91-220㎡

预计单价:7万左右

预计总价:600万—1600万

✅91㎡纯南两居|约600万

✅119㎡纯南三居|约810万

✅125㎡南北三居|约850万

✅141㎡南北四居|约960万

✅153㎡南北四居|约1050

室内层高:3米

几梯几户:2梯2户,2梯3户,2梯4户

交付标准:精装交付

交房时间:2027年10月

外立面:玻璃幕墙

总户数:西区76套,南区1487套,共1563套

得房率:77-88%

容积率:南区2.2,西区1.3

绿化率:30%

物业费:6.47元/㎡

物业公司:上海永升物业管理有限公司

车位配比:1:1.3

供暖方式:集中供暖

打开网易新闻 查看精彩图片

户型丨建面约90-220㎡二至四居精妆美宅

全龄舒居空间,南区匠造建面约90-155㎡二至四居精妆美宅,西区匠造建面约213-220㎡精妆宽境洋房,满足多种家庭需求。

打开网易新闻 查看精彩图片

精妆丨高质精妆体系 匠琢品质生活

高质精妆体系,居室地面(除卧室外)精选天然石材一体通铺,匠心营造雅致美学;电视背景墙甄选进口奢石,高贵典雅。甄选国际一线品牌厨电、卫浴五金、洁具,深度考量生活细节,构建品质生活臻境。

打开网易新闻 查看精彩图片

智能 | 智能家居系统 让生活更自由

引入智能家居系统,涵盖遮阳系统、智能安全系统、智能环境控制系统、智能照明控制系统,配合面板、语音、APP等智能交互技术,全屋智能联动,智慧生活触手可及。其中配备电动窗帘,尽享便捷质感生活。

配备适老系统,跌倒雷达守护老人安全;以及24小时浸水检测,时刻安心。

打开网易新闻 查看精彩图片

90㎡ 两室两厅一卫

打开网易新闻 查看精彩图片

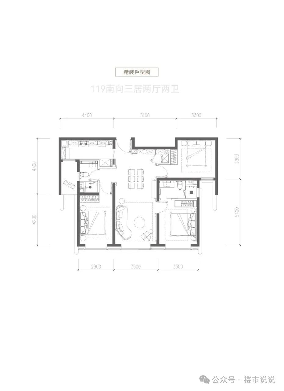
119㎡ 三室两厅两卫

打开网易新闻 查看精彩图片

125㎡ 三室两厅两卫

打开网易新闻 查看精彩图片

140㎡ 四室两厅两卫

打开网易新闻 查看精彩图片

155㎡ 四室两厅两卫

打开网易新闻 查看精彩图片

213㎡ 四室两厅三卫

打开网易新闻 查看精彩图片

220㎡ 四室两厅三卫

打开网易新闻 查看精彩图片

大盘 | 双区大盘规划,全龄生活主场

御林湾,位踞朝阳奶西板块核芯,占据城市生态核、交通核、产业核、配套核,集多维圆心之利,为时代精英筑境理想生活住区。

南区、西区双区规划,打造建面约21.04万㎡典藏级大盘,汇聚城市精英圈层。自建约2.3万㎡商业,南区为下沉商业广场,西区为临街商业综合体,构建奶西旗舰商圈,功能覆盖民生刚需、社交休闲、亲子便民、品质酒店等多元业态,构建黄金漫步式主场生活,周边享有芳草地国际学校中学部、建面约500㎡颐乐中心、约6600㎡全龄活力广场、约4600㎡潮尚文体汇馆等多元配套,打造一座全龄友好的生活剧场。

打开网易新闻 查看精彩图片

奢阔丨近百米楼间距,悠享舒适生活

南区以近百米楼间距,开启天地舒阔的诗意生活;西区约1.3低密容积率,拥揽稀缺土地资源,臻享诗意栖居。

打开网易新闻 查看精彩图片

园林 | 一廊十二园,重塑时代园居典范

【约8.6万㎡社区园林】以奢阔面积与多元化营造,重塑北京园境生活方式。

【约300米全龄生活环廊,一站式丰盛场景】 御林湾,构建约300米全龄生活连廊,串联社区会客厅、社区书吧、儿童活动室、MINI GYM等活动场域,构建全聚互动生活聚场。

打开网易新闻 查看精彩图片

【12大皇家园境,北京园林博物馆】 项目承袭温榆河千年皇家文脉,师法皇家造园理念,打造“御林十二境”,以现代手法呈现皇家园林生活意境。

【多元生活场景 即刻度假】南区会客厅、下午茶花园、梦童花园、青年健身、颐养花园等十大场景,让度假感浸润日常每一刻,重塑园居生活范式。西区「艺术岛屿」漫游、「静享花园」哲思、「臻享客厅」社交,三重园林空间维度,重构精神栖居。

打开网易新闻 查看精彩图片

建筑 | 现代艺术建筑,焕新城市封面

✨【光幕艺术建筑】大面积玻璃幕墙,勾勒潮流时尚外立面。

✨【现浇建筑工艺 准现房呈现】建筑采用现浇工艺,铸就抗震耐久品质典范。准现房呈现,品质安心,美好不等待。

打开网易新闻 查看精彩图片

礼序 | 五重归家礼序,仪式感归家

✨约65米面宽、约11米高奢阔尺度,现代艺术风尊崇大门,重塑归家礼序。

✨社区大门,以尊崇威仪开启仪式归家;首层大堂,从容转换归家心情;地下落客区,专属归家动线便捷优雅;地下光厅,静谧的过渡空间,沉淀思绪;入户玄关,私属领域,拥抱家的惬意。

打开网易新闻 查看精彩图片

优渥资源:黄金生活半径 丰沛资源配套

交通 | 黄金生活半径,畅享优越通勤效率

“三横五纵四轨道”多维交通体系,直线距离约2公里近抵京承高速、约3公里快达五环路、约9公里畅连三环路,轨道交通13号线北苑站、17号线红军营站和清河营站、14号线善各庄地铁站,15号线马泉营站,加速链接望京、中关村、亚奥、国贸、首都机场等多个核心功能区,黄金半径,畅享高效通勤,从容拥享丰盛生活。

打开网易新闻 查看精彩图片

商业 | 旗舰商业环伺,纯享潮流风尚

项目北侧已有约2400㎡醇熟底商,已全面落成,畅享一站式便利生活。

西侧龙湖北苑天街、华贸天地、城悦荟,南侧保利广场、华润万象汇,东侧马泉营奥特莱斯,更有望京万象汇、林奥CITY PARK购物中心、合生麒麟汇、望京凯德MALL等前沿潮流地标。

打开网易新闻 查看精彩图片

教育 | 12年制目送式教育,国内国际优质资源起跑未来

举步即达芳草地国际学校(东洲校区)、国资中心幼儿园,近邻朝阳外国语学校承办的优质学府(规划中),周围还分布八十中温榆河分校,以及青苗、哈罗等16所国际学校,以国际化视野启航未来。国内、国际多轨制优质教育,赢在起跑线。

打开网易新闻 查看精彩图片

医疗 | 优质权威医疗矩阵,护航健康生活

约3公里北京爱瑞医院(规划中),近抵和睦家医院,2大国际私立医院护航。约2公里朝阳区妇幼保健院(北部院区),约3公里中日友好医院(规划中),以及航空总医院、地坛医院、清华长庚医院等5大公立医院,守护健康。

打开网易新闻 查看精彩图片

60亿打造AI旗舰医院,定位未来数字医疗样板

北京爱瑞医院(北京爱瑞国际医疗综合体),由抖音集团主导的国际化医院。项目位踞中关村朝阳园北区,占地11.37公顷,规划建设面积22.4万平方米,规划床位800张,预计将总投资约60亿元,将着重围绕国际化、AI智慧驱动和创新转化三大核心理念,建设集三级综合国际化医院、以字节跳动火山云平台为基座的AI医疗平台和精准医学临床转化中心于一体的国际化医疗综合体。“AI 赋能”是该医院的一大亮点,通过 AI 辅助诊断系统,能够提高疾病诊断的准确性和效率;利用大数据分析技术,可以为患者提供个性化的治疗方案。

打开网易新闻 查看精彩图片

文脉 | 双御河交汇,传世福地,理想所栖

项目择址皇家文脉温榆河畔,漫步即达约30平方公里温榆河公园,揽清河、温榆河双御河交汇,玉带环腰,传世福地。周围22座生态公园簇拥,天赋优渥宜居环境,静享诗意栖居。

生态为底,文脉为魂,再造园居范本,融汇历史气韵与生态资源,于帝都文脉之上,盛启自然生活新章。

打开网易新闻 查看精彩图片

✨格调 | 高端文化休闲,圈层生活格式

6大艺术区、6大美术馆、6大高尔夫俱乐部、6大马术俱乐部等丰盛的高端休闲、艺术配套围绕,将文化积淀、自然生机与社交活力完美融合,成就一处匹配城市精英的生活方式。

打开网易新闻 查看精彩图片

御林湾售楼处电话:010-5361 0555✔️看房方式:

✅看房方式:御林湾售楼处位置电话:010-5361 0555✔️(开发商认证)

✅预约方式:拨打御林湾售楼处电话:010-5361 0555✔️(售楼处认证)

✅预约信息:需提供姓名、联系方式、预计到访人数及到访时间。

✅预约福利:成功预约后有专属置业顾问全程陪同讲解。拨打御林湾售楼处电话:010-5361 0555(已认证)

✅注意事项:为保证接待质量,请出发前进行预约,避免案场没有销售接待;也可提前1-3天预约销售