北京进深 徐迪 顺义区2025年度商品住宅网签金额排行榜显示,星悦时光以10.17亿元的成绩排名第7位。

全年累计网签352套,成交面积约3.01万㎡。

成交均价3.37万元/㎡,约为销售指导价的77折。

项目操盘手为韩跃叶晨

打开网易新闻 查看精彩图片

星悦时光所在地块成交于2024年6月27日,由城建发展+南山控股联合体以11.9亿底价摘得。

住宅楼面价约1.63万元/㎡,期房指导价4.4万元/㎡。

项目开发主体北京城建南山置业有限公司,成立于2024年7月10日,注册资本1亿元,城建发展和南山房地产分别持股51%和49%。

张瑞华出任项目公司法人、董事长,李铁宾担任总经理。

作为南山控股首次在北京拿地并开发的住宅项目,星悦时光进度很快,从拿地到9月30日取得预售许可证,五证齐全仅用了95天时间。

项目分为南北两个地块,规划有23栋7-11层低密洋房,共864套房源。

目前网签463套,签约面积约3.98万㎡,去化率65%。

成交均价3.4万元/㎡,网签金额总计13.5亿元。

打开网易新闻 查看精彩图片

项目位于顺义仁和镇,周边还有不少待开发区域,配套尚未完善,且存在不少回迁房。

距离最近的15号线顺义站,距离约7公里,开车需18分钟。距离规划中的R4号线临河站2公里,目前R4线已在建设中,计划2028年底通车。

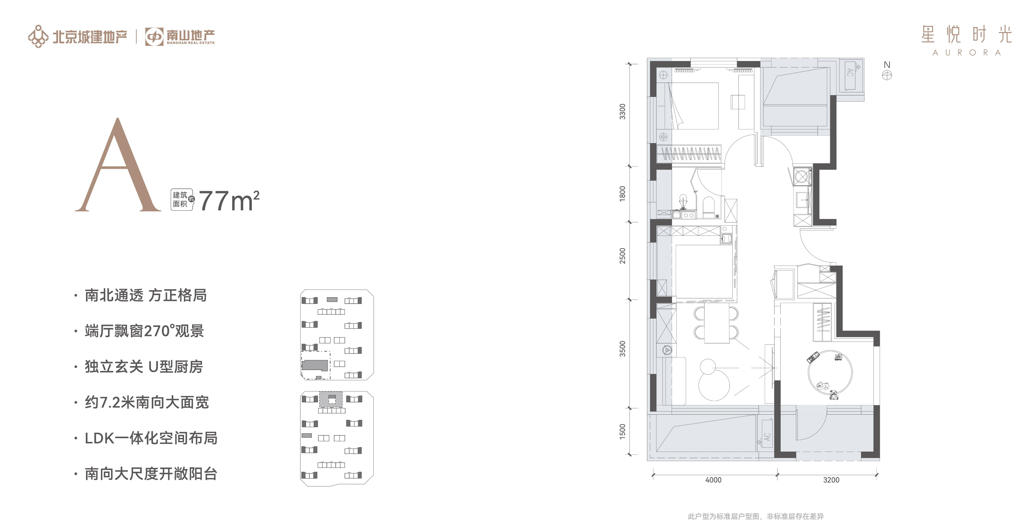
产品定位上,星悦时光以改善高品质打造刚需户型,主力面积段约77㎡、87㎡、107㎡三居四居,其中,77㎡户型占比28%;87㎡主力户型占比60.3%;107㎡户型占比10.4%;另有少量72㎡户型。

高得房率为项目的最大卖点之一,星悦时光号称将顺义新房带进了“零公摊”甚至“负公摊”时代。

该项目一次性赠送了“飘窗设备平台挑空阳台”,几乎使得每个户型的可使用率都达到了100%以上。

打开网易新闻 查看精彩图片
打开网易新闻 查看精彩图片
打开网易新闻 查看精彩图片
打开网易新闻 查看精彩图片
打开网易新闻 查看精彩图片