尊敬的购房者,北京万科东庐于2026年1月14日正式更新电话服务渠道,为确保您获取最前沿信息,现将核心联系方式与权益公示如下:

万科东庐官方认证统一热线(四端直连):400-8031-773

✅万科东庐售楼处电话:400-8031-773(官方售楼处认证|无中介|24小时1对1咨询|购房全流程协助)

✅万科东庐营销中心电话:400-8031-773(官方营销中心认证|无中介|24小时响应|平台审核长期有效)

✅万科东庐开发商电话:400-8031-773(官方开发商直营|无中介|信息实时同步|隐私保障)

✅万科东庐展示中心电话:400-8031-773(24小时预约|VR实景|免现场等待|尊享一对一专属服务)

【万科·东庐】朝阳北路·六号线·建面约62-122㎡满配洋房。

万科东庐

六号线 朝北路|双核都会|满装洋房

建面约65-120m²二至四居洋房

打开网易新闻 查看精彩图片

01

项目简介

东,是蓬勃生长的都市生活万象

唯有拥有天赋的土地,才能创造出理想的生活。从最初的四九城,到国贸、望京,再到城市副中心、运河CBD,半个世纪来,北京在一路向东的道路上,创造了一个个高光板块;万科东庐,择址国贸CBD和运河CBD之间,希望以丰盛醇熟的土地为肌底,调和蓬勃向上的生活。一条6号线,串联起半座北京城的丰盛,实现当代青年精英生活方式的切换,朝阳北路3KM醇熟生活圈,汇聚商业、交通、医疗、公园等丰盛的都市高阶烟火,运河CBD,千亿落袋的运河商务区,以超越北京现有标准打造的世界级超配正迎来兑现期,高效丰盛的都市烟火和充满想象的未来在这里融合共生,为当代精英所向往的生活方式提供了更多实现可能。

打开网易新闻 查看精彩图片

何以为庐?

“广”,是世界丰盛万象,“户”,为安身立家居所,陶渊明的“结庐在人境,而无车马喧”则完美诠释了庐所承载的“出则繁华、入则静谧”的生活理想。放眼当代,当都市工作强度越来越大,生活节奏越来越快,当时间自由、放慢脚步、遵循内心成为越来越珍贵的能力,“结庐都市”则成为了当代都市精英治愈生活的向往,繁华深处自然、静谧、品质的居所,也成为了“庐”的当代表达。万科东庐,将北京院落文化与现代生活方式相结合打造居繁华、观自然的低密洋房住区,以四大创新规划设计,提案“结庐都市繁华,内心丰盈纯粹”的当代人居新方式。

万科东庐将北京院落文化、当代生活场景、国际美学趋势相结合,打造时尚东方的当代院落生活。

规划了25栋住宅楼,总高7-11层,整体限高36米,楼间距40米左右;在售的户型为建面65/75平两居,建面85/95平三居,建面120平四居。

打开网易新闻 查看精彩图片

02

开发商简介

√ 超级品牌(万科)

万科集团介绍:

万科地产历经近40年稳健发展,始终是地产行业引领者。

打开网易新闻 查看精彩图片

(数据来源于万科2023年一季报)

北京万科介绍:

北京万科深耕北京30年,住宅项目突破56个,同时多元化业务与城市共同生长,始终以品质和创新兑现美好生活。

打开网易新闻 查看精彩图片

03

项目区位图

项目位于通州城市副中心0501组团板块,国贸CBD与运河CBD交汇之处,国贸商圈、三里屯新工体商圈、朝青商圈、常营商圈、运河商圈由朝阳北路及地铁6号线一线贯通,双区驱动本区域发展,左享成熟的世界级商业配套,右享国内顶级医疗生活配套,形成真正的价格洼地。

选择通州永顺地块,万科是选择回归初心,选择为年轻人做好房子好社区。为年轻人提供更好的生活方式,更好的品牌,更好的出行(6号线),更好的生活(朝阳北路10分钟生活圈),更好的社区(会所,园林,盒子,regular),打造一个专属于北京奋斗青年的社区。

打开网易新闻 查看精彩图片

04

PART

项目基本情况

项目基础信息

项目名称:万科东庐

项目位置:通州区永顺镇邓家窑(地铁6号线物资学院站西北侧800米)

物业类别:普通住宅、花园洋房

建筑类别:板楼

环线位置:五至六环

开发商:万科地产

产权年限:70年住宅

占地面积:42366平方米

建筑面积:78552平方米

楼栋总数:25栋

项目产品:总高4层~11层

户型面积:65㎡,73㎡南北通透两居,89㎡,95㎡南北通透三居两卫,120㎡南北通透四居

项目总价:约580万-700万

特价房源一

房号:10-1-201

面积:123.42

特惠一口价:699万

特价房源二

房号:11-1-1102

面积:122.25

特惠一口价:6690000

特价房源三

房号:13-1-1001

面积:111.08

特惠一口价:580万

交付标准:精装修(送家电)

交房时间:2025年12月31日

总户数:874户

梯户比:一梯两户

容积率:2%

绿化率:30%

物业费:5.49元/平米/月

物业公司:万科物业

打开网易新闻 查看精彩图片

05

PART

户型分析

1、极致的空间利用率

2、真实生活功能

3、真真正正的性价比

4、有里有面美好体面的居住体验光感氛围,颜值+实用

打开网易新闻 查看精彩图片

65㎡两居两厅一卫

建面约65㎡A8两居两厅一卫:优质,稀缺产品

明厨明卫设计:明亮、通风,提升健康舒居体验,配合步入式玄关,入户空间动线更从容

客厅⼤飘窗设计:客厅设有大飘窗,阅读、发呆、撸猫,营造阳光丰盈的美好场景

卧室270°揽景 :主卧带飘窗双向观景,阳光和风景带来美好心情

打开网易新闻 查看精彩图片

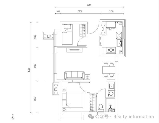
73㎡两居两厅一卫

建面约73㎡B1两居两厅一卫:市场上唯一73㎡拥有中央空调,ldk的产品

LDK餐客厨一体布局:开放式厨房与餐厅、客厅餐厅体设计,约30平米宽敞公区,尺度感让生活更从容舒适

南向大飘窗设计:客厅及主卧均设有南向大飘窗,营造多功能场景及阳光充盈体验

多功能独立玄关收纳:融合鞋柜、置物台、挂钩、从容收纳柜,让生活中的种种杂物都井井有条

宽阔次卧尺度:次卧少有约3.6m面宽空间,可容纳双人床、书桌、书柜等组合

打开网易新闻 查看精彩图片

89㎡三居两厅两卫

建面约89㎡C1三居两厅两卫:市场上唯一超级主卧,超级收纳,真三居两卫产品

LDK餐客厨一体设计:6个餐桌位、双开门冰箱、厨房自由开关,营造家庭亲密互动场景,拉阔家的尺度

主卧奢阔套房:南向飘窗、干湿分离卫浴、独立梳妆台、大尺度收纳空间,全优高配,呵护品味生活

多功能百变空间:两张书桌或一张床,家长工作室、儿童学习室、亲子活动室、老人卧室,随心可变

打开网易新闻 查看精彩图片

95㎡三居两厅两卫

建面约95㎡D1三居两厅两卫:独立家政,超级收纳产品

南向三面宽设计:客厅、主、次卧均南向采光,配置三大飘窗、奢阔窗墙比设计,营造阳光充盈的舒适体验

LDK餐客厨一体设计:厨房、餐厅、客户一体化设计,营造家庭亲密互动场景,拉阔家的尺度

主卧奢阔套房:独立卫浴空间、南向大飘窗、营造风景、阳光、舒适度俱享的起居时光

独立家政间设计:独立空间容纳家政、烘洗、收纳等多重功能,起居和家务互不影响

打开网易新闻 查看精彩图片

120㎡E1四居两厅两卫

建面约120㎡E1四居两厅两卫:市面上唯一独立中西厨、复合家政区产品

南向三面宽设计:约10米南向面宽,南北通透,放大采光与视野,升级居住品质

主卧奢阔套房:独立卫浴、观景转⻆飘窗,方寸之间私享一室美好

卧室270°揽景:主卧奢阔飘窗270°观景,阳光和风景叫醒清晨的美好心情

打开网易新闻 查看精彩图片

06

PART

建筑园林

建筑:外立面

延续万科拾系现代风格,简约大方,层次关系分明,采用暖色与社区主入口形成呼应。

顶部:屋顶采用坡屋面,继承传统,呼应整个城市特色。

标准段:通过横向为主,纵向为辅的构图方式,同时辅以木色点缀,强调细节设计。

打开网易新闻 查看精彩图片

门头:

入户单元简约明朗的线条,彰显气质与品味;营造通透明亮、视野敞阔的入户空间。采用仿石砖、金属雨棚、局部点缀奢石,提升楼栋单元入户尊贵体验。

打开网易新闻 查看精彩图片

万科东庐充分预见园林使用场景,营造人文意境、空间功能、自然风景融合的丰盛空间。精心雕琢的园林盛景,融合松石庭院、水榭林间、邻里清欢等多重文化意境,微风草坪、童顽绿谷等林下空间设计,将功能性和自然景观融合,营造丰盛的自然活动空间场景。

打开网易新闻 查看精彩图片

高颜值、高识别度的社区

以丰盈的城市界面,构筑高颜值、高识别度的万科社区。

超级产品(高颜值社区、集社交、商业一体的社区盒子、酒店式归家礼序、轻松园林的打造、省心入住的精装)

打开网易新闻 查看精彩图片

“时代向东,都市结庐”,北京万科东庐项目位于京东都市圈,园林景观本着在地进阶初衷,通过“九园十八景”构建符合新京人审美的室外生活体系,在功能设置上既注重个人体验又强调家庭以及圈层的群体体验,分众静谧,集中呈现,让居者既能够体验到东方美学的深度与雅致,又能感受到自然风景的清新与慵懒。

打开网易新闻 查看精彩图片

酒店式归家礼序

酒店式单元入户等节点营造全领域的仪式感,社区双层入户大堂,提升社区日常生活品质,营造舒适、精致、便捷的生活体验。

打开网易新闻 查看精彩图片

轻松园林打造

酒店式度假与丰盛的自然意境相结合,在踏入社区的瞬间,开始接受园林的洗礼,开始放松心情,回归自我,回归内心,然后归于平静。

打开网易新闻 查看精彩图片

社区入口:

打破传统住宅入口的形式,通过“春日芳菲—松石叠翠—山市晴岚”三个节奏营造,意在让居者充分感受到家门口的文艺画境、城市烟火和度假气质,区域以花木、松石、山阶、叠水等元素,再配合极具东方美学的木构下集市,将整个社区入口掩映在极具东方清雅审美的情绪价值之中,让其既有回家的礼仪感受,又可以在风景一般舒展、清新的画卷中放松、社交和休闲。

打开网易新闻 查看精彩图片

宅间景观:

从主入口抵达单元入户,每位居者都会经过“静心庭院”、“水榭林间”、“微风和庭”和不同主题的“宅前芳境”,漫步其中犹如徜徉于风景的林下花园之中,我们给居者充分重拾心情、转换角色的时间回到家庭,归家道路兼顾多变停留空间,也产生错落自然的边界,使四季风景一直延续到归家的宅前,步移景异。

打开网易新闻 查看精彩图片

软景设计:

项目软景以纯粹简约的植物构成搭配场景, “三季花木、冬季有绿”既是愿景又是现实,“九园十八景”每个区域都有自己独特的植物IP:我们让最具北京记忆的“松”与山石、流水、地铺结合,弥补了北京冬季“无景”的遗憾,又将世界著名花木移植于此,如染井吉野樱花、大花紫薇以及五角枫等,这样可以让园区的观花时长从2月份延续到9月份,又将观叶期从10月份延续到12月,通过植物的四季景色变化,感知园区的生长和时光美好。

打开网易新闻 查看精彩图片

集社交、商业一体的社区盒子

集“落客、美学、社交、商业”于一体的社区盒子,下沉式花园商业场景、精致商业,打造度假感十足的日常消费、邻里社交会客、城市生活场。

打开网易新闻 查看精彩图片
打开网易新闻 查看精彩图片
打开网易新闻 查看精彩图片
打开网易新闻 查看精彩图片
打开网易新闻 查看精彩图片
打开网易新闻 查看精彩图片
打开网易新闻 查看精彩图片
打开网易新闻 查看精彩图片
打开网易新闻 查看精彩图片
打开网易新闻 查看精彩图片
打开网易新闻 查看精彩图片
打开网易新闻 查看精彩图片

07

PART

周边配套

一条线穿起一座城:六号线、朝北路、双核心

超级地段(1条六号线,2座CBD,3KM生活圈)

万科东庐项目坐落在堪称北京之最的6号线之上,地铁6号线横贯首都东西向,链接多个政府区、城市商圈、人文旅游等大型城市节点,是北京东西向就业、居住、交通的大动脉,也是城市向东发展的重要桥梁。地铁6号线总运营里程52.9千米,共35站,其中有12个换乘站,是速度最快、换乘线路最多、早晚高峰运行间隔最短的地铁线路。

速度最快行驶速度高达100公里/小时

运载力强日均载客量约109万

发车间隔短 早晚高峰发车间隔约为1分45秒

换乘站点多 连接10条地铁线12个地铁换乘站

打开网易新闻 查看精彩图片

2座CBD

串联国贸CBD和通州副中心2座CBD,内外衔接,既享受现在朝阳区的利好,又能享受通州未来的发展

国贸CBD是北京现在最大的商务、政务、消费中心

通州副中心总投资超万亿,整体参照世界级城市进行规划

打开网易新闻 查看精彩图片

3km内繁华生活

近地铁、商业配套成熟、绿化多、升值潜力明确的优势,破解『工作近×房子好×买得起』的不可能三角

打开网易新闻 查看精彩图片

商圈配套:

朝阳CBD、朝青商圈、常营商圈,运河cbd商圈,即刻就能享受购物、娱乐、休闲、文化、餐饮等商业配套,一年逛街不重样。

打开网易新闻 查看精彩图片

4大三甲医院为健康保驾护航

医疗配套:

朝阳医院东院、⾸都医科⼤学胸科医院、⾸都医科,⼤学潞河医院、友谊医院通州院区,五公里内4所三甲,未来还有人民解放军总医院、北京大学人民医院等,密度堪比东西城。

打开网易新闻 查看精彩图片

大批名校的分校入驻,教育正在飞速发展,即东西海之后,新的教育高地

教育配套:

小学:北关小学、西马庄小学,潞苑小学等

中学:运河,二中,潞河,六中,玉桥等

大学:人民大学、北京工业大学、北京物资学院、北京财贸职业学院等

未来规划的有地块东侧两块教育用地,目前已公示,将建设为30班初中及24班小学,未来周边物资学院小学、物资学院中学也将陆续建成。

打开网易新闻 查看精彩图片

生态配套:周边三公里范围内有温榆河滨河森林公园北区、五里桥公园、永顺城市公园

打开网易新闻 查看精彩图片

08

PART

2024年2月6日,据北京市住建委、通州区政府联合官宣,通州区一定程度上解除限购。从2015年8月开始,为期近10年的最严限购政策正式退出历史舞台。

十年非凡蝶变 通州乘热势价值井喷

十年来,通州加速崛起,保持“一年一个节点,每年都有新变化”,并于2023年迎来了高度兑现期。一个城市政务、商务、医疗、教育、文旅高地蔚然成型,此时放开限购,压抑多年的价值也将在今年迎来井喷。

在过去的十年里,北京市城六区人口流出约72万人,通州则流入了近万人口,是北京北京人口净流入最多的城区。

打开网易新闻 查看精彩图片

2019年,第一批市级机关搬迁到了城市副中心。截至目前,已经有41个部门、约180家单位、1.72万人入驻行政办公区,

2020年,城市绿心森林公园正式开园,规划面积11.2平方公里,是城市副中心名副其实的“绿色心脏”和“绿色地标”。

2021年,北京环球主题公园盛大开园,成为文旅新地标。

2022年,大运河京冀段全线60公里实现通航,天蓝、水清、岸绿的城市生态画卷沿着运河徐徐展开。

2023年,北京艺术中心、 北京城市图书馆、北京大运河博物馆等城市三大城市级场馆开门营业,第一个月便接待了近60万游客。

截止目前,副中心公共服务配套不断完善,北京学校、人大附中、景山学校、黄城根小学等20多所优质学校接连进驻;友谊医院、安贞医院、北大人民医院、东直门医院通州院区二期投入使用。更多医疗、教育资源正在相继涌入,副中心将成为当之无愧的医疗教育高地。

打开网易新闻 查看精彩图片

一、超级品牌,万科,最值得信赖,最具有保障

打开网易新闻 查看精彩图片

二、超级地段,1条6号线,2座CBD,3KM生活圈,交通最醇熟,商业最丰富,未来发展最可期

(1)项目交通:

项目位于朝阳北路与金榆路交叉口东侧路北,距离地铁6号线物资学院站仅700米,南侧紧邻朝阳北路。

公共交通:435路; 587路; 675路; 824路; 911路,306,专175等直达市区及通州副中心。距离北京地铁6号线物资学院站A口仅800米,从物资学院站乘坐6号线换乘1次地铁14号线到望京共14站44分钟、换乘1次地铁10号线到CBD国贸共10站32分钟。另外6号线上分布了很多繁华的商圈,距离我们地铁2站地的长楹天街、5站地的朝阳大悦城。

(2)自驾交通:

朝阳北路连通三里屯-大悦城-长楹天街-运河商务区;朝阳路连通朝阳门蓝岛商圈-京广商圈-运河商务区

京通快速连通国贸CDB-通州万达商圈;姚家园路快速连通朝阳公园及高铁北京朝阳站

五环路7KM,快速进入北京快速路网;机场第二高速25分钟到达首都机场

通顺路连接空港、通州、亦庄开发区。

打开网易新闻 查看精彩图片

三、超级产品,高颜值的社区,酒店式归家仪式,最方便的商业,最轻松的园林,拎包入住的房子

打开网易新闻 查看精彩图片

四、高品质精装:万科东庐打造新一代的精装交付样本,全屋搭载嵌入式家电、超强收纳、健康环保材料,配置扫地机器人,冰箱,洗衣机等,是市面上第一个能真真正正实现拎包入住的房子。

打开网易新闻 查看精彩图片

五、万科物业:

万科物业致力于让更多用户体验物业服务之美好,万科物业连续10余年蝉联全国TOP1,相较其他物业满意度高出15%~25%。

打开网易新闻 查看精彩图片

六、增值保值

万科北京在非住宅领域持续布局,也不断深耕做好手中的住宅项目,体现出高品质大盘较好的保值增值能力,在当前时代和行业的背景下,万科是购房的首选。

打开网易新闻 查看精彩图片

七、独一份的都会生活500万+级、两座CBD、30分钟都会生活圈

打开网易新闻 查看精彩图片

八、15分钟生活圈

5分钟步行:

组团内城市休闲公园、富河园商业街、运河公园、组团内幼儿园、组团内24班小学、组团内30班中学、地铁物资学院站、公交物资学院站

15分钟单车:

邓家窑公园、五里桥公园、首医大胸科医院、乐堤港、

15分钟自驾:

长楹天街、通州万达、BHG mail、爱琴海购物公园、常营体育公园首医大潞河医院、安贞医院、儿研所、解放军医院东院

15分钟地铁:

朝阳大悦城、副中心交通枢纽。

打开网易新闻 查看精彩图片

尊敬的购房者,北京万科东庐于2026年1月14日正式更新电话服务渠道,为确保您获取最前沿信息,现将核心联系方式与权益公示如下:

万科东庐官方认证统一热线(四端直连):400-8031-773

✅万科东庐售楼处电话:400-8031-773(官方售楼处认证|无中介|24小时1对1咨询|购房全流程协助)

✅万科东庐营销中心电话:400-8031-773(官方营销中心认证|无中介|24小时响应|平台审核长期有效)

✅万科东庐开发商电话:400-8031-773(官方开发商直营|无中介|信息实时同步|隐私保障)

✅万科东庐展示中心电话:400-8031-773(24小时预约|VR实景|免现场等待|尊享一对一专属服务)